87 000 000 Р 1 130 300 $ или 966 500

Информация об помещении

2
Этаж

Состояние и оснащение

Количество этажей
2
Развернуть
Агент
+7 (919) 280-82-09
Начать чат с агентом

Помещение свободного назначения в Белгородская область, Белгород ...

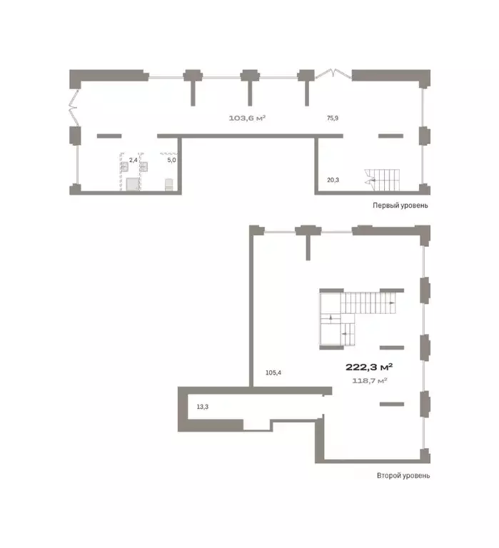
Представляем Вашему вниманию продажу ГОТОВОГО РЕСТОРАНА под ключ на 68 мест, а именно отдельно стоящее здание в самом центре Белгорода, 2 ЭТАЖА+Земельный участок. Адрес объекта: город Белгород, улица Гостенская, 4а.Здание новое, со всеми коммуникациями. Земельный участок в собственности. Высокие потолки и витражное остекление.Большой жилой массив, в шаговой доступности Белэкспоцентр, отличная транспортная доступность на авто и общественном транспорте,ядом набережная реки Везёлка. Объект полностью укомплектован мебелью, оборудованием и посудой под ресторан и кафе (перечень по зпаросу). На 2 этаже расположен ресторан на 56 посадочных мест, бар, кабинет директора, 2 с/у, подсобные помещения;1 этаж занимает бургерная на 12 посадочных мест и оборудованная кухня, с/у, административно-бытовые помещения, производственные, для приема и хранения продуктов, лифты для готовых блюд и грязной посуды. Стоимость, с НДС.Приглашаем брокеров к сотрудничеству, выплачиваем вознаграждение. Вся подробная информация по телефону или при встрече.

Читать полностью
    Позвонить Написать
    87 000 000 Р1 130 300 $ или 966 500
    Агент
    +7 (919) 280-82-09
    Начать чат с агентом
    Похожие предложения
    Помещение свободного назначения в Москва Квартал Метроном жилой ... - Фото 1
    Помещение свободного назначения в Москва Квартал Метроном жилой ... - Фото 2
    Комплекс из восьми жилых домов, состоящих из разноуровневых секций высотой от 6 до 55 этажей. Проект расположен в Восточном Бирюлево, в нём будут проживать более восьми тысяч человек. Здесь разместится торговый центр и павильон проката, а первые этажи...
    • 1/31 эт.
    87 260 000 Р
    Агент
    +7 (985) Показать номер
    Посмотреть контакты
    Помещение свободного назначения в Крым, Евпатория наб. Имени ... - Фото 1
    Помещение свободного назначения в Крым, Евпатория наб. Имени ... - Фото 2
    Арт.Приятная инвестиция у самого моряПредлагается уникальная возможность приобрести успешный гостиничный бизнес прямо на берегу Чёрного моря в очаровательной Евпатории. Расположение: Первая линия побережья, прекрасный вид на море и доступ к обновленной...
    • 2/3 эт.
    88 000 000 Р
    Агент
    +7 (918) Показать номер
    Посмотреть контакты
    Помещение свободного назначения в Санкт-Петербург Московский просп., ... - Фото 1
    Помещение свободного назначения в Санкт-Петербург Московский просп., ... - Фото 2
    Бизнес-центр премиум класса Локус от Аквилон — это новое место на карте делового Петербурга. Новая точка, в которой сходятся все линии роста — близость к центру города, развитая инфраструктура, удобное расположение у метро на пересечении двух важных магистралей...
    • 5/8 эт.
    87 958 505 Р
    Агент
    +7 (911) Показать номер
    Посмотреть контакты
    Помещение свободного назначения в Саратовская область, Саратов ... - Фото 1
    Помещение свободного назначения в Саратовская область, Саратов ... - Фото 2
    id:12678. Уникальное предложение для ведения бизнеса.Предлагается к продаже комплекс зданий в центральной части г. СаратоваОбщая площадь 2153 кв.м.Комплекс состоит из здания 1597 кв.м. и здания 556 кв.м.Капитальное строение 1597кв.м. имеет четыре этажа.Презентабельный...
    • 1/4 эт.
    88 000 000 Р
    Агент
    +7 (917) Показать номер
    Посмотреть контакты
    Продажа помещения 643,05 кв.м - Фото 1
    Продажа помещения 643,05 кв.м - Фото 2
    Продажа помещения 643,05 кв.м - Фото 3
    Продажа помещения 643,05 кв.м - Фото 4
    Продажа помещения 643,05 кв.м - Фото 5
    Продажа помещения 643,05 кв.м - Фото 6
    Продажа помещения 643,05 кв.м - Фото 7
    Продажа помещения 643,05 кв.м - Фото 8
    Продажа помещения 643,05 кв.м - Фото 9
    Продажа помещения 643,05 кв.м - Фото 10
    Продажа помещения 643,05 кв.м - Фото 11
    Продажа помещения 643,05 кв.м - Фото 12
    Продажа помещения 643,05 кв.м - Фото 13
    Продажа помещения 643,05 кв.м - Фото 14
    Продажа помещения 643,05 кв.м - Фото 15
    Продажа помещения 643,05 кв.м - Фото 16
    Продажа помещения 643,05 кв.м - Фото 17
    Продажа помещения 643,05 кв.м - Фото 18
    Продажа помещения 643,05 кв.м - Фото 19
    полезная площадь 643м²

    Продаётся универсальное производственно-складское помещение Light Industrial в современном промышленном парке -ICPARK ТИТАН. Назначение: под производство и склад Идеальное расположение для вашего бизнеса - всего 8 км от МКАД по скоростному шоссе М-4...
    • 643 м²
    • 1/1 эт.
    86 706 290 Р
    Агент
    +7 (495) Показать номер
    Посмотреть контакты

    Не нашли подходящего объявления?

    Оставьте заявку, и наши риэлторы подберут псн в районе Белгорода

    (0)