11 500 000 Р 136 900 $ или 118 200

Информация о коттедже

160 м2
Площадь
1
Этажность
10 cоток
Участок

Дополнительная информация

Дом продаётся вместе с участком
есть
Развернуть
Агент
+7 (919) 221-73-46
Начать чат с агентом

Дом в Белгородская область, Строитель Яковлевский городской округ, ...

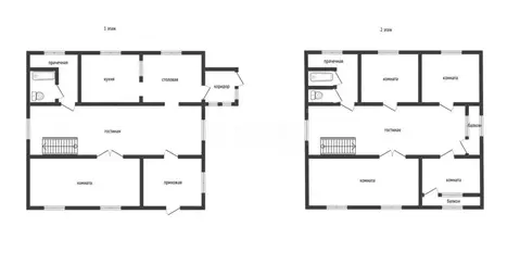
Арт.. Дом, подходит под спец.счет.Продается уютный одноэтажный дом 160 мИдеальный вариант для семьи Дом включает в себя просторную кухню-гостиную, 3 спальни (из них 2 детские). Участок правильной формы, огорожен с 4 сторон, ровный, с плодовыми деревьями и кустами.Преимущества:- Гараж 30 м с автоматическими воротами, находящийся под общей крышей с домом- Совмещенный санузел в кафеле- Теплый дом, в 2024 году проведен косметический ремонт- Дровяной камин для комфортных вечеров- Отдельное помещение под котел с вторым туалетом- Гарантия готовности к проживаниюНе упустите возможность приобрести уютное жилье в тихом районе. Звоните для уточнения деталей и организации просмотра

Читать полностью

    Для того, чтобы купить 1-этажный коттедж по адресу: Строитель, ул. Советская, 79, позвоните по телефону +7 (919) 221-73-46. Торопитесь! Объявление №50016687052 о продаже одноэтажного коттеджа опубликовано 08 марта 2026.

    Позвонить Написать
    11 500 000 Р136 900 $ или 118 200
    Агент
    +7 (919) 221-73-46
    Начать чат с агентом
    Похожие предложения
    Дом в Белгородская область, Строитель Яковлевский городской округ, ул. ... - Фото 1
    Дом в Белгородская область, Строитель Яковлевский городской округ, ул. ... - Фото 2
    1 этаж, общая площадь 108м², участок 25 соток

    Код объекта: 2067151.Уютный и просторный дом для вашей семьи ждёт новых хозяев Продаётся отличный дом площадью 108,7 кв. м на участке в 25 соток в городе Строитель Дом построен в 2015 году , конструктив газосиликатный блок 30см + утепление 10см + короед...
    • 1 эт.
    • 108 м²
    • 25 сот.
    12 850 000 Р
    Агент
    +7 (910) Показать номер
    Посмотреть контакты
    Дом в Белгородская область, Строитель Яковлевский городской округ, ... - Фото 1
    Дом в Белгородская область, Строитель Яковлевский городской округ, ... - Фото 2
    1 этаж, общая площадь 170м², участок 15 соток

    Продаётся дом вашей мечты в городе Строитель СТОИМОСТЬ ДОМА УКАЗАНА С УЧЕТОМ РЕМОНТА ПОД КЛЮЧ Забор и выложенная плиткой территория уже включены в проект Общая информация:- Площадь: 170 кв. м. - Комнаты: 3 спальни, кухня-гостиная, гардеробная, санузел....
    • 1 эт.
    • 170 м²
    • 15 сот.
    11 300 000 Р
    Агент
    +7 (919) Показать номер
    Посмотреть контакты
    Дом в Белгородская область, Строитель Яковлевский городской округ, ... - Фото 1
    Дом в Белгородская область, Строитель Яковлевский городской округ, ... - Фото 2
    2 этажа, общая площадь 245м², участок 23 сотки

    Вашему вниманию предлагается к продаже шикарный дом для большой семьи Домовладение расположено в тихом районе г. Строитель Белгородской области. Прекрасное местоположение дома позволяет жить в тишине и иметь доступ ко всей необходимой социальной сфере,...
    • 2 эт.
    • 245 м²
    • 23 сот.
    13 000 000 Р
    Агент
    +7 (919) Показать номер
    Посмотреть контакты
    Дом в Белгородская область, Строитель Яковлевский городской округ, ул. ... - Фото 1
    Дом в Белгородская область, Строитель Яковлевский городской округ, ул. ... - Фото 2
    1 этаж, общая площадь 77м², участок 15 соток

    Продается уютный дом в тихом и спокойном месте, недалеко от города Строитель - Участок 15 соток — достаточно пространства для отдыха и садоводства- Двор выложен плиткой — удобно и аккуратно- Есть хозяйственные постройки — дополнительное место для хранения-...
    • 1 эт.
    • 77 м²
    • 15 сот.
    12 400 000 Р
    Агент
    +7 (910) Показать номер
    Посмотреть контакты
    Дом в Белгородская область, Строитель Яковлевский городской округ, ... - Фото 1
    Дом в Белгородская область, Строитель Яковлевский городской округ, ... - Фото 2
    1 этаж, общая площадь 83м², участок 11 соток

    Дом-усадьба в самом сердце г. Строитель: комфорт, отдых и готовый бизнес Продается уникальное домовладение в черте города (частный сектор), где развитая городская инфраструктура встречается с приватностью и роскошью загородной жизни. ЛОКАЦИЯ — ЛУЧШЕ...
    • 1 эт.
    • 83 м²
    • 11 сот.
    11 300 000 Р
    Агент
    +7 (919) Показать номер
    Посмотреть контакты

    Не нашли подходящего объявления?

    Оставьте заявку, и наши риэлторы подберут купить дом в районе Строителя

    (0)