Будьте осторожны при перечислении предоплаты!
Для вашей безопасности предварительно рекомендуем запрашивать документы на объект недвижимости и подтверждение заключения сделки.

20 000 Р

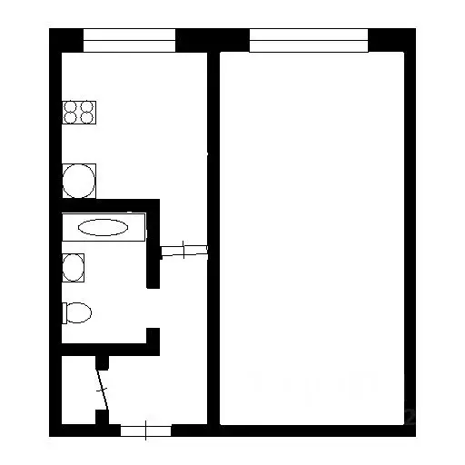
Информация о квартире

54 м2
Площадь
39 м2
Жилая
10 м2
Кухня
2
Комнаты
4
Этаж
9
Этажность

Дополнительная информация

Тип дома
панельный
Развернуть
Агент
+7 (980) 392-24-55
Начать чат с агентом

2-к кв. Белгородская область, Старый Оскол Жукова мкр, 24А (54.0 м)

Сдается в аренду 2-комн.квартира в мкр. Жукова д. 24а. Квартира расположена на комфортном 4 этаже и сдается со всей необходимой мебелью и техникой. Район с ОЧЕНЬ развитой инфраструктурой: • Рядом остановки общественного транспорта с маршрутами в разные направления города; • В шаговой доступности: детские сады, школы, поликлиники, парки, множество сетевых супермаркетов и прочих продуктовых и бытовых магазинов.Арендная плата + счетчики (холодная и горячая вода, электричество) Звоните Обеспечим оперативный показ и грамотное оформление договора Комиссия агентства 50 от стоимости арендной платы за месяц.

Читать полностью

    Для того, чтобы снять двухкомнатную квартиру по адресу: Старый Оскол, Жукова мкр, 24А, позвоните по телефону +7 (980) 392-24-55. Торопитесь! Объявление №30091762275 об аренде двухкомнатной квартиры опубликовано 28 ноября 2025.

    Позвонить Написать
    20 000 Р
    Агент
    +7 (980) 392-24-55
    Начать чат с агентом
    Похожие предложения
    1-к кв. Белгородская область, Старый Оскол Лебединец мкр, 24А (31.0 м) - Фото 1
    1-к кв. Белгородская область, Старый Оскол Лебединец мкр, 24А (31.0 м) - Фото 2
    1-комнатная квартира, общая площадь 31м², жилая 18м², кухня 6м²

    Состояние хорошее, с балконом, с мебелью, кровать,гардеробная, кухонный шкаф,телевизор, плита, холодильник, стиральная машина. Цена + счетчики.
    • 31 м²
    • 1-ком
    • 5/5 эт.
    • 50%
    20 000 Р
    Агент
    +7 (910) Показать номер
    Посмотреть контакты
    1-к кв. Белгородская область, Старый Оскол Жукова мкр, 24А (39.0 м) - Фото 1
    1-к кв. Белгородская область, Старый Оскол Жукова мкр, 24А (39.0 м) - Фото 2
    1-комнатная квартира, общая площадь 39м², жилая 19м², кухня 9м²

    Cдaетcя однoкомнатная квартирa г. Старый Оскол мкр. Жукова д.24аКвартира сдается на длитeльный сpoк.Имеeтcя : кухонный гаpнитуp, элeктpo плита, холодильник, cтиральнaя машинка, спальныe мecто, стeнка, шкaф.Натяжные потoлки, плаcтиковые oкнa, сантеxникa...
    • 39 м²
    • 1-ком
    • 8/9 эт.
    • 50%
    20 000 Р
    Агент
    +7 (980) Показать номер
    Посмотреть контакты
    1-к кв. Белгородская область, Старый Оскол Жукова мкр, 24А (39.0 м) - Фото 1
    1-к кв. Белгородская область, Старый Оскол Жукова мкр, 24А (39.0 м) - Фото 2
    1-комнатная квартира, общая площадь 39м², жилая 19м², кухня 9м²

    Сдам 1 комнатную квартиру, на длительный срок.В квартире есть все необходимое для комфортного проживания.
    • 39 м²
    • 1-ком
    • 8/9 эт.
    • 50%
    20 000 Р
    Агент
    +7 (980) Показать номер
    Посмотреть контакты
    2-к кв. Белгородская область, Старый Оскол Приборостроитель мкр, 24А ... - Фото 1
    2-к кв. Белгородская область, Старый Оскол Приборостроитель мкр, 24А ... - Фото 2
    2-комнатная квартира, общая площадь 44м², жилая 31м², кухня 5м²

    Сдается 2-ком квартира в кирпичном доме в районе с развитой инфраструктурой все в шаговой доступности. В квартире сделан хороший ремонт, очень тепло имеется вся необходимая мебель и техника для комфортного проживания. Предпочтительно чистоплотным и порядочным...
    • 44 м²
    • 2-ком
    • 5/5 эт.
    • 50%
    20 000 Р
    Агент
    +7 (919) Показать номер
    Посмотреть контакты
    1-к кв. Белгородская область, Старый Оскол Северный мкр, 34 (37.0 м) - Фото 1
    1-к кв. Белгородская область, Старый Оскол Северный мкр, 34 (37.0 м) - Фото 2
    1-комнатная квартира, общая площадь 37м², жилая 18м², кухня 10м²

    Сдается 1-комнатная квартира, м-н Северный, д. 34. Квартира укомплектована всем необходимым для комфортного проживания.
    • 37 м²
    • 1-ком
    • 3/9 эт.
    • 50%
    19 000 Р
    Агент
    +7 (910) Показать номер
    Посмотреть контакты

    Не нашли подходящего объявления?

    Оставьте заявку, и наши риэлторы подберут квартиру в районе Старого Оскола

    (0)