3 500 000 Р 43 730 $ или 37 130

Информация о квартире

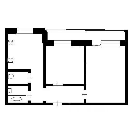
45 м2
Площадь
28 м2
Жилая
6 м2
Кухня
2
Комнаты
2
Этаж
5
Этажность

Дополнительная информация

Тип дома
панельный
Развернуть
Агент
+7 (980) 371-07-04
Начать чат с агентом

2-к кв. Белгородская область, Старый Оскол Приборостроитель мкр, 19 ...

Продается двухкомнатная квартира в отличном районе города Это идеальный выбор для тех, кто ценит комфорт и удобство. Квартира расположена на втором этаже, что обеспечивает отличный вид и доступность всех необходимых удобств.Дом недавно прошел капитальный ремонт, что гарантирует надежность и долговечность конструкции. Просторная и продуманная планировка с раздельными комнатами позволяет создать уютное и функциональное пространство для жизни. Окна ПВХ обеспечивают отличную тепло- и звукоизоляцию.Квартира требует ремонта, что дает вам возможность воплотить свои дизайнерские мечты и создать интерьер по своему вкусу. Большая парковка возле дома и новая детская площадка делают это место идеальным для семей с детьми.Расположение квартиры просто восхитительно Детский сад во дворе, школа рядом, автобусные остановки в любом направлении города все это в шаговой доступности. В непосредственной близости аптека и магазин Магнит, а также другие магазины, рынок Восточный для вашего удобства.Квартира принадлежит одному взрослому собственнику, и никто не прописан, что упрощает процесс покупки и оформления документов. Продается или меняется на трехкомнатную квартиру с доплатой.Обращаться в агентство Альтернатива по адресу: г. Старый Оскол, мкр. Олимпийский, д.52 (Рядом с Земским доктором). Помощь в оформление ипотеки.Не упустите свой шанс стать обладателем этой замечательной квартиры Звоните прямо сейчас

Читать полностью

    Для того, чтобы купить двухкомнатную квартиру по адресу: Старый Оскол, Приборостроитель мкр, 19, позвоните по телефону +7 (980) 371-07-04. Торопитесь! Объявление №30091671169 о продаже двухкомнатной квартиры опубликовано 11 декабря 2025.

    Позвонить Написать
    3 500 000 Р43 730 $ или 37 130
    Агент
    +7 (980) 371-07-04
    Начать чат с агентом
    Похожие предложения
    1-к кв. Белгородская область, Старый Оскол Жукова мкр, 19 (40.0 м) - Фото 1
    1-к кв. Белгородская область, Старый Оскол Жукова мкр, 19 (40.0 м) - Фото 2
    1-комнатная квартира, общая площадь 40м², жилая 19м², кухня 9м²

    Продаётся квартира, не стандартной планировки ( большой коридор) , в жилом состоянии, с мебелью, техника по договорённости. Удобное расположение, в шаговой доступности школа, д/сад, магазины, остановка.... Умеренный торг.
    • 40 м²
    • 1-ком
    • 1/9 эт.
    • панельный
    3 550 000 Р
    Агент
    +7 (952) Показать номер
    Посмотреть контакты
    2-к кв. Белгородская область, Старый Оскол Приборостроитель мкр, 19 ... - Фото 1
    2-к кв. Белгородская область, Старый Оскол Приборостроитель мкр, 19 ... - Фото 2
    2-комнатная квартира, общая площадь 45м², жилая 32м², кухня 6м²

    Код объекта: 1829891.Продаётся уютная 2-комнатная квартира в одном из самых удобных районов Старого Оскола Адрес: микрорайон Приборостроитель, д. 19, Старый Оскол, Белгородская область.Основные характеристики:- Год постройки: 1976.- Материал постройки:...
    • 45 м²
    • 2-ком
    • 5/5 эт.
    • панельный
    3 600 000 Р
    Агент
    +7 (980) Показать номер
    Посмотреть контакты
    2-к кв. Белгородская область, Старый Оскол Интернациональный мкр, 39 ... - Фото 1
    2-к кв. Белгородская область, Старый Оскол Интернациональный мкр, 39 ... - Фото 2
    2-комнатная квартира, общая площадь 44м², жилая 28м², кухня 6м²

    В продаже эксклюзивное предложение АН МультиДом Продается двухкомнатная квартира, общей площадью 44,4 кв.м.Ремонт в квартире косметический: окна ПВХ, санузел раздельный в плитке, пол деревянный, потолки выровнены, балкон остеклен. При продаже возможно...
    • 44 м²
    • 2-ком
    • 1/5 эт.
    • панельный
    3 550 000 Р
    Агент
    +7 (919) Показать номер
    Посмотреть контакты
    2-к кв. Белгородская область, Старый Оскол Лебединец мкр, 27 (35.3 м) - Фото 1
    2-к кв. Белгородская область, Старый Оскол Лебединец мкр, 27 (35.3 м) - Фото 2
    2-комнатная квартира, общая площадь 35м², жилая 22м², кухня 7м²

    ТОРГ при осмотре В продаже самое выгодное предложение для сдачи/покупки Квартира с ремонтом: окна ПВХ, санузел в плитке с теплым полом, ламинат по всей квартире, потолки натяжные, полностью заменена проводка. При продаже остается частично мебель.Описание...
    • 35 м²
    • 2-ком
    • 3/9 эт.
    • кирпичный
    3 500 000 Р
    Агент
    +7 (980) Показать номер
    Посмотреть контакты
    1-к кв. Белгородская область, Старый Оскол Приборостроитель мкр, 9 ... - Фото 1
    1-к кв. Белгородская область, Старый Оскол Приборостроитель мкр, 9 ... - Фото 2
    1-комнатная квартира, общая площадь 30м², жилая 19м², кухня 5м²

    Только в АН Адреса возможна покупка в ипотеку по ставке от 13,25 Заключается договор просмотра Общая площадь 30 кв.м;Кухня 5,7 кв.м.О КВАРТИРЕ: • Хорошее состояние; • Окна- ПВХ; • Балкон - остеклен; • Потолок натяжной с точечным освящением; • Напольное...
    • 30 м²
    • 1-ком
    • 3/5 эт.
    • панельный
    3 550 000 Р
    Агент
    +7 (915) Показать номер
    Посмотреть контакты

    Не нашли подходящего объявления?

    Оставьте заявку, и наши риэлторы подберут квартиру в районе Старого Оскола

    (0)