Россия, Белгородская область, Старый Оскол, Интернациональный мкр, 28
2 200 000 Р 27 840 $ или 24 290

Информация о квартире

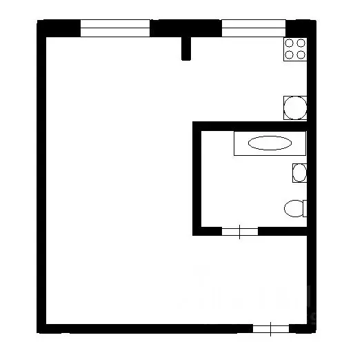
19 м2
Площадь
14 м2
Жилая
1
Комната
3
Этаж
5
Этажность

Дополнительная информация

Тип дома
кирпичный
Развернуть
Агент
+7 (915) 560-62-92
Начать чат с агентом

1-к кв. Белгородская область, Старый Оскол Интернациональный мкр, 28 ...

Редкое предложение на рынке Однокомнатная малосемейка с качественным ремонтом, общей площадью 19,8 кв.м. в мкр. Интернациональный, 28.Уютное жилье в отличном состоянии: заменена электропроводка, по всему периметру, в том числе в санузле, натяжной потолок с точечным освещением, установлены новые межкомнатные двери.Продажа полностью с мебелью и техникой, есть все необходимое для комфортного проживания.Дом расположен в тихом, благоустроенном микрорайоне, с хорошо развитой инфраструктурой.Территория вокруг дома полностью благоустроенная. Отличная транспортная развязка, в 5-ти минутах расположены остановки общественного транспорта в разные части города.Понравилась квартира? Звоните для согласования времени просмотров АН Держава - лучшие в своем деле

Читать полностью

    Для того, чтобы купить однокомнатную квартиру по адресу: Старый Оскол, Интернациональный мкр, 28, позвоните по телефону +7 (915) 560-62-92. Торопитесь! Объявление №30091521191 о продаже однокомнатной квартиры опубликовано Вчера.

    Позвонить Написать
    2 200 000 Р27 840 $ или 24 290
    Агент
    +7 (915) 560-62-92
    Начать чат с агентом
    Похожие предложения
    1-к кв. Белгородская область, Старый Оскол Интернациональный мкр, 28 ... - Фото 1
    1-к кв. Белгородская область, Старый Оскол Интернациональный мкр, 28 ... - Фото 2
    1-комнатная квартира, общая площадь 25м², жилая 19м²

    ДЕРЖАВА РЕКОМЕНДУЕТ Однокомнатная малосемейка гостиничного типа, общей площадью 25 кв.м., в мкр. Интернациональный, 28.Дом расположен в тихом, благоустроенном микрорайоне, с хорошо развитой инфраструктурой.Территория вокруг дома полностью благоустроенная....
    • 25 м²
    • 1-ком
    • 4/5 эт.
    • кирпичный
    2 170 000 Р
    Агент
    +7 (915) Показать номер
    Посмотреть контакты
    1-комнатная квартира: Старый Оскол, микрорайон Интернациональный, 28 ... - Фото 1
    1-комнатная квартира: Старый Оскол, микрорайон Интернациональный, 28 ... - Фото 2
    1-комнатная квартира, общая площадь 25м², жилая 19м², кухня 4м²

    ДЕРЖАВА РЕКОМЕНДУЕТ Однокомнатная малосемейка гостиничного типа, общей площадью 25 кв.м., в мкр. Интернациональный, 28.Дом расположен в тихом, благоустроенном микрорайоне, с хорошо развитой инфраструктурой.Территория вокруг дома полностью благоустроенная....
    • 25 м²
    • 1-ком
    • 4/5 эт.
    2 170 000 Р
    Агент
    +7 (910) Показать номер
    Посмотреть контакты
    1-к кв. Белгородская область, Старый Оскол Горняк мкр, 10 (19.8 м) - Фото 1
    1-к кв. Белгородская область, Старый Оскол Горняк мкр, 10 (19.8 м) - Фото 2
    1-комнатная квартира, общая площадь 19м², жилая 14м²

    Продам м/с гостиничного типа со всей мебелью и бытовой техникой. Дом кирпичный расположен в панч развитой инфраструктурой , все в шаговой доступности. Просмотр в любое время. Торг реальному покупателю.
    • 19 м²
    • 1-ком
    • 4/5 эт.
    • кирпичный
    2 150 000 Р
    Агент
    +7 (908) Показать номер
    Посмотреть контакты
    Студия Белгородская область, Старый Оскол Молодогвардеец мкр, 2 (23.0 ... - Фото 1
    Студия Белгородская область, Старый Оскол Молодогвардеец мкр, 2 (23.0 ... - Фото 2
    студия, общая площадь 23м², жилая 14м², кухня 4м²

    Продам квартиру гостиничного типа. В комнате свой санузел, ванная. Евроремонт. Рядом школа, детский сад, сквер, торговые центры. Остается мебель частично и бытовая техника. Звоните. Торг.
    • 23 м²
    • студия-ком
    • 6/9 эт.
    2 250 000 Р
    Агент
    +7 (901) Показать номер
    Посмотреть контакты
    1-к кв. Белгородская область, Старый Оскол Красноармейский пер., 7 ... - Фото 1
    1-к кв. Белгородская область, Старый Оскол Красноармейский пер., 7 ... - Фото 2
    1-комнатная квартира, общая площадь 26м², кухня 8м²

    Продаётся уютная 1-комнатная квартира Общая площадь: 26.4 м, кухня: 8 м, жилая: 18.4 м. Первый этаж, высокие потолки 3 м создают ощущение простора. Полностью меблирована, вся техника (кондиционер, холодильник, стиральная машина, водонагреватель)...
    • 26 м²
    • 1-ком
    • 1/2 эт.
    2 200 000 Р
    Агент
    +7 (910) Показать номер
    Посмотреть контакты

    Не нашли подходящего объявления?

    Оставьте заявку, и наши риэлторы подберут квартиру в районе Старого Оскола

    (0)