Россия, Белгородская область, Старый Оскол, Интернациональный мкр, 13
1 980 000 Р 25 190 $ или 21 640

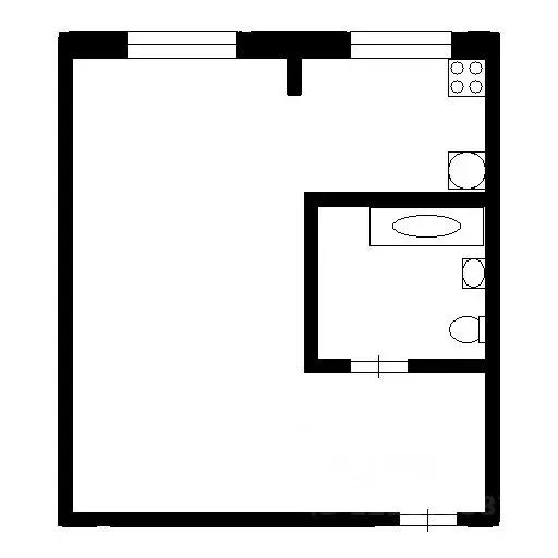
Информация о квартире

17 м2
Площадь
4 м2
Кухня
1
Комната
4
Этаж
5
Этажность

Дополнительная информация

Тип дома
кирпичный
Развернуть
Агент
+7 (980) 392-38-82
Начать чат с агентом

1-к кв. Белгородская область, Старый Оскол Интернациональный мкр, 13 ...

Продается уютная малосемейка в хорошем состоянии в микрорайоне Интернациональный, дом 13. Квартира расположена на 4 этаже 5-этажного дома общей площадью 17,7 м, с жилой площадью 12 м и площадью кухни 4 м. Высота потолков составляет 2,6 м, что создает ощущение простора. Основные характеристики:• Окна: ПВХ, выходят во двор, что обеспечивает тишину и спокойствие.• Ремонт: Косметический, обои свежие, готова к заселению.• Входная дверь: Металлическая, обеспечивающая дополнительную безопасность.• Санузел: Совмещенный, с душевой кабиной; сантехника заменена, установлены счетчики.• Напольное покрытие: Линолеум, легкий в уходе и практичный.В квартире остаются: кондиционер, кухонный гарнитур, шкаф и диван — все необходимое для комфортного проживания. Инфраструктура:Квартира расположена в удобном месте с развитой инфраструктурой. В шаговой доступности находятся остановки общественного транспорта, магазины, школа и детский сад. Рядом расположен рынок, а во дворе — детская площадка и стоянка для автомобилей.Не упустите возможность приобрести эту замечательную квартиру Звоните для организации просмотра Код пользователя: 189978Номер в базе: 9920285

Читать полностью

    Для того, чтобы купить однокомнатную квартиру по адресу: Старый Оскол, Интернациональный мкр, 13, позвоните по телефону +7 (980) 392-38-82. Торопитесь! Объявление №30090717078 о продаже однокомнатной квартиры опубликовано 2 дня назад.

    Позвонить Написать
    1 980 000 Р25 190 $ или 21 640
    Агент
    +7 (980) 392-38-82
    Начать чат с агентом
    Похожие предложения в Старом Осколе
    1-к кв. Белгородская область, Старый Оскол Интернациональный мкр, 13 ... - Фото 1
    1-к кв. Белгородская область, Старый Оскол Интернациональный мкр, 13 ... - Фото 2
    1-комнатная квартира, общая площадь 21м², жилая 16м²

    Продается уютная квартира малосемейного типа, идеальная для тех, кто ищет экономичное и функциональное жилье. Расположенная в тихом районе, эта квартира предлагает комфортное пространство для одного человека или молодой пары. Несмотря на компактность,...
    • 21 м²
    • 1-ком
    • 2/5 эт.
    • кирпичный
    2 000 000 Р
    Агент
    +7 (910) Показать номер
    Посмотреть контакты
    1-к кв. Белгородская область, Старый Оскол Интернациональный мкр, 13 ... - Фото 1
    1-к кв. Белгородская область, Старый Оскол Интернациональный мкр, 13 ... - Фото 2
    1-комнатная квартира, общая площадь 17м², жилая 8м², кухня 4м²

    Арт.Ищете идеальное место для жизни? Эта квартира — ваш шанс на комфорт и уют Расположение: • 4 этаж 5-этажного кирпичного дома, построенного в 1993 году.Характеристики квартиры:• Общая площадь: 39 м,• Жилая площадь: 20 м,• Кухня: 9 м.Мебель и техника:•...
    • 17 м²
    • 1-ком
    • 4/5 эт.
    • кирпичный
    1 900 000 Р
    Агент
    +7 (910) Показать номер
    Посмотреть контакты
    1-к кв. Белгородская область, Старый Оскол Интернациональный мкр, 13 ... - Фото 1
    1-к кв. Белгородская область, Старый Оскол Интернациональный мкр, 13 ... - Фото 2
    1-комнатная квартира, общая площадь 25м², жилая 18м², кухня 2м²

    Продается уютная квартира. Косметический ремонт. Кондиционер остается . Развитая инфраструктура. Школа, детский сад, рынок, магазины,- все в шаговой доступности. Звоните.
    • 25 м²
    • 1-ком
    • 5/5 эт.
    2 100 000 Р
    Агент
    +7 (901) Показать номер
    Посмотреть контакты
    1-к кв. Белгородская область, Старый Оскол Интернациональный мкр, 13 ... - Фото 1
    1-к кв. Белгородская область, Старый Оскол Интернациональный мкр, 13 ... - Фото 2
    1-комнатная квартира, общая площадь 24м², жилая 12м², кухня 7м²

    Код объекта: 1706773. Вашему вниманию предлагается уютная однокомнатная квартира в городе Старый Оскол, расположенная по адресу: микрорайон Интернациональный, дом 13. Этот вариант идеально подойдёт для молодых специалистов или студентов, которые ценят...
    • 24 м²
    • 1-ком
    • 2/5 эт.
    • кирпичный
    1 900 000 Р
    Агент
    +7 (980) Показать номер
    Посмотреть контакты
    1-к кв. Белгородская область, Старый Оскол Интернациональный мкр, 13 ... - Фото 1
    1-к кв. Белгородская область, Старый Оскол Интернациональный мкр, 13 ... - Фото 2
    1-комнатная квартира, общая площадь 17м², жилая 8м², кухня 4м²

    Продается уютная однокомнатная квартира Адрес: Интернациональный 13Мы рады предложить вам светлую и комфортную однокомнатную квартиру, полностью готовую к заселению Особенности квартиры: • Качественный ремонт: квартира выполнена в современном стиле,...
    • 17 м²
    • 1-ком
    • 4/5 эт.
    • панельный
    1 900 000 Р
    Агент
    +7 (919) Показать номер
    Посмотреть контакты

    Не нашли подходящего объявления?

    Оставьте заявку, и наши риэлторы подберут квартиру в районе Старого Оскола

    (0)