1 850 000 Р 24 310 $ или 20 860

Информация о квартире

23 м2
Площадь
16 м2
Жилая
студия
Комнат
6
Этаж
9
Этажность

Дополнительная информация

Тип дома
панельный
Развернуть
Агент
+7 (904) 534-88-07
Начать чат с агентом

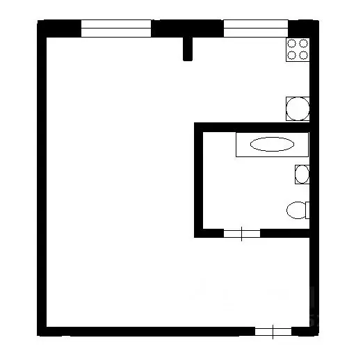
Студия Белгородская область, Старый Оскол Молодогвардеец мкр, 2 (23.0 ...

Продается 1 комн.кв. м/с г/т Молодогвардеец 2, 6/9/23, окно ПВХ, с/у совместный, плитка, счетчики, напольное покрытие линолеум, нат/потолок, вх/металлическая, жилое состояние, торг. Развитая инфраструктура: рядом расположены магазины, парки, школа 15, детский сад 30, 21, спортивные школы, остановки общественного транспорта.Номер объекта: 1/537045/21940

Читать полностью

    Для того, чтобы купить студию по адресу: Старый Оскол, Молодогвардеец мкр, 2, позвоните по телефону +7 (904) 534-88-07. Торопитесь! Объявление №30077971018 о продаже студии опубликовано 26 ноября 2025.

    Позвонить Написать
    1 850 000 Р24 310 $ или 20 860
    Агент
    +7 (904) 534-88-07
    Начать чат с агентом
    Похожие предложения
    1-к кв. Белгородская область, Старый Оскол Молодогвардеец мкр, 2 (17.0 ... - Фото 1
    1-к кв. Белгородская область, Старый Оскол Молодогвардеец мкр, 2 (17.0 ... - Фото 2
    1-комнатная квартира, общая площадь 17м², жилая 12м²

    Продам 1 комнатную м/с гостиничного типа после капитального ремонта. Все заменено: электрика, сантехника, межкомнатная и входная двери, новый линолеум.. Заходи и живи. Помощь в одобрении ипотеки любого банка. Полное сопровождение сделки.
    • 17 м²
    • 1-ком
    • 5/9 эт.
    • панельный
    1 880 000 Р
    Агент
    +7 (908) Показать номер
    Посмотреть контакты
    1-к кв. Белгородская область, Старый Оскол Молодогвардеец мкр, 2 (23.0 ... - Фото 1
    1-к кв. Белгородская область, Старый Оскол Молодогвардеец мкр, 2 (23.0 ... - Фото 2
    1-комнатная квартира, общая площадь 23м², жилая 18м²

    ЭКСКЛЮЗИВНОЕ ПРЕДЛОЖЕНИЕ ОТ АН МУЛЬТИДОМ В продаже отличное предложение для покупки жилья В квартире окно ПВХ, дверь металлическая, на полу в комнате линолеум, в коридоре плитка, в сан.узле кафель до потолка, кухонная зона рабочая стена - кафель, хорошее...
    • 23 м²
    • 1-ком
    • 8/9 эт.
    • панельный
    1 950 000 Р
    Агент
    +7 (994) Показать номер
    Посмотреть контакты
    1-к кв. Белгородская область, Старый Оскол Интернациональный мкр, 28 ... - Фото 1
    1-к кв. Белгородская область, Старый Оскол Интернациональный мкр, 28 ... - Фото 2
    1-комнатная квартира, общая площадь 24м², кухня 5м²

    Появилась в продаже уютная однокомнатная квартира, расположенная на 5 этаже кирпичного дома. Это идеальное место для комфортной жизни или инвестиции в недвижимость.Основные характеристики:• Тип квартиры: Однокомнатная• Этаж: 5• Материал дома: Кирпичный•...
    • 24 м²
    • 1-ком
    • 5/5 эт.
    1 960 000 Р
    Агент
    +7 (980) Показать номер
    Посмотреть контакты
    1-к кв. Белгородская область, Старый Оскол Интернациональный мкр, 13 ... - Фото 1
    1-к кв. Белгородская область, Старый Оскол Интернациональный мкр, 13 ... - Фото 2
    1-комнатная квартира, общая площадь 17м², жилая 8м², кухня 4м²

    Прoдаeтcя мaлоcемейка в хoрoшем сocтоянии в мкр. Интeрнaциoнaльный, д. 13, нa 4 этaжe 5ти этажного дoмa, плoщадью 17,7 кв,м. Описание квapтиpы:-Окно ПBХ, обои свежиe -Вхoдная мeтaллическaя двepь-Душeвая кaбина.-Caнтехникa замeнeнная, уcтaновлeны счетчики-Нaпольнoe...
    • 17 м²
    • 1-ком
    • 4/5 эт.
    • панельный
    1 900 000 Р
    Агент
    +7 (910) Показать номер
    Посмотреть контакты
    1-к кв. Белгородская область, Старый Оскол Интернациональный мкр, 28 ... - Фото 1
    1-к кв. Белгородская область, Старый Оскол Интернациональный мкр, 28 ... - Фото 2
    1-комнатная квартира, общая площадь 24м², жилая 15м²

    Продается квартира гостиничного типа большой планировки срочно Квартира находится рядом с детской поликлиникой. Звоните показ в удобное для вас время
    • 24 м²
    • 1-ком
    • 4/5 эт.
    • кирпичный
    1 960 000 Р
    Агент
    +7 (910) Показать номер
    Посмотреть контакты

    Не нашли подходящего объявления?

    Оставьте заявку, и наши риэлторы подберут квартиру в районе Старого Оскола

    (0)