3 250 000 Р 41 750 $ или 35 760

Информация о квартире

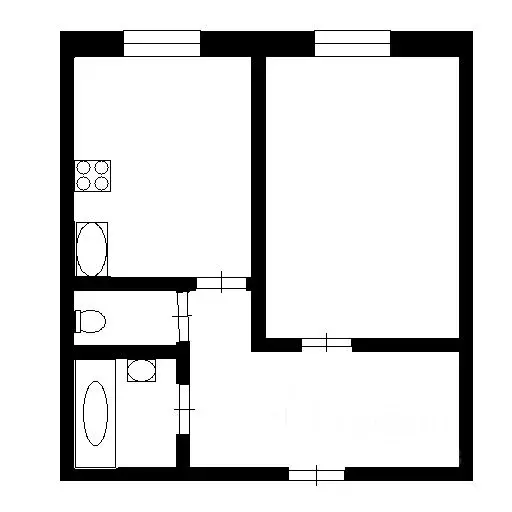
31 м2
Площадь
14 м2
Жилая
6 м2
Кухня
1
Комната
3
Этаж
5
Этажность

Дополнительная информация

Тип дома
кирпичный
Развернуть
Агент
+7 (910) 023-02-55
Начать чат с агентом

1-к кв. Белгородская область, Короча Советская ул., 17 (31.1 м)

Код объекта: 2048069.Уникальное предложение в Короче: уютная квартира в кирпичном доме в самом центре Корочи Адрес и общая информация: Россия, Белгородская область, Короча, Советская улица, 17.Дом 1990 года постройки.Площадь и планировка:Общая площадь — 31,1 кв. мжилая — 14,3 кв. мплощадь кухни — 6,5 кв. м.В квартире индивидуальное отопление, установлены счетчики на воду В квартире одна комната с изолированным пространством, высота потолков — 2,6 м. Ремонт и состояние: квартира с косметическим ремонтом, готова к заселению. Окна выходят на улицу, есть балкон.Расположение квартиры — одно из её главных преимуществ. Дом находится в центре города Короча близостью ко всем необходимым объектам.Рядом есть (в 100 м от дома):- магазины (магнит, пятерочка и прочие);- маркетплейсы ozon, wildberries;- очень близко рынок, а также ярмарка под домом каждые выходные. (можно купить, например, домашнюю курицу по 100р./кг);- центральный храм города Короча;- 3 аптеки;- россельхоз банк;- магазин автозапчастей;- водоканал.Не упустите шанс стать владельцем жилья в живописном районе Корочи Позвоните нам прямо сейчас, чтобы узнать больше и записаться на просмотр.Мы гарантируем безопасную сделку и юридическую поддержку нашим Клиентам. Поможем одобрить ипотеку с сниженной ставкой.

Читать полностью

    Для того, чтобы купить однокомнатную квартиру по адресу: Короча, ул. Советская, 17, позвоните по телефону +7 (910) 023-02-55. Торопитесь! Объявление №30093782059 о продаже однокомнатной квартиры опубликовано 08 апреля 2026.

    Позвонить Написать
    3 250 000 Р41 750 $ или 35 760
    Агент
    +7 (910) 023-02-55
    Начать чат с агентом
    Похожие предложения
    3-к кв. Белгородская область, Короча Советская ул., 17 (78.0 м) - Фото 1
    3-к кв. Белгородская область, Короча Советская ул., 17 (78.0 м) - Фото 2
    3-комнатная квартира, общая площадь 78м², жилая 51м², кухня 19м²

    КВАРТИРА С ПЕРСПЕКТИВОЙ Продается квартира в центре г. Короча, обособленное цокольное жилое помещение, отдельный вход оборудован навесом, рядом центральный рынок, администрация района, сетевые магазины, новый культурно-спортивный комплекс, сельскохозяйственный...
    • 78 м²
    • 3-ком
    • 1/5 эт.
    • кирпичный
    3 350 000 Р
    Агент
    +7 (980) Показать номер
    Посмотреть контакты
    1-к кв. Белгородская область, Старый Оскол бул. Дружбы, 8 (35.0 м) - Фото 1
    1-к кв. Белгородская область, Старый Оскол бул. Дружбы, 8 (35.0 м) - Фото 2
    1-комнатная квартира, общая площадь 35м², жилая 17м², кухня 11м²

    Привлекательное предложение от АН ЭЛИТ Поступила в продажу 1кoмнaтная малоcемейка на бульваре Дружбы. Квартира расположена на пятом этаже. В квартире сделан косметичeский ремoнт, линолeум, нaтяжные пoтoлки с подсветкой. Установлены пластиковые окна,...
    • 35 м²
    • 1-ком
    • 5/9 эт.
    • панельный
    3 350 000 Р
    Агент
    +7 (915) Показать номер
    Посмотреть контакты
    3-к кв. Белгородская область, Губкин Народная ул., 2Б (69.3 м) - Фото 1
    3-к кв. Белгородская область, Губкин Народная ул., 2Б (69.3 м) - Фото 2
    3-комнатная квартира, общая площадь 69м², жилая 45м², кухня 8м²

    Продам высоко габаритную 3 комнатную квартиру в кирпичном доме.В квартире высокие потолки 3.2 м, большой зал 24.3 кв. м, кухня 8.2 кв. м. Комнаты изолированные, окна ПВХ, трубы поменяны. В квартире нужен косметический ремонт. Рядом с домом храм, остановка,...
    • 69 м²
    • 3-ком
    • 1/5 эт.
    • кирпичный
    3 400 000 Р
    Агент
    +7 (919) Показать номер
    Посмотреть контакты
    3-к кв. Белгородская область, Старый Оскол ул. 1-й Конной Армии, 28А ... - Фото 1
    3-к кв. Белгородская область, Старый Оскол ул. 1-й Конной Армии, 28А ... - Фото 2
    3-комнатная квартира, общая площадь 58м², жилая 41м², кухня 7м²

    Продается 3 комн.кв. ул. 1 Конной Армии 28а, 1/1/60, окна ПВХ, с/у раздельный, ванна кафель, туалет пласт/панели, счетчики, вх/металлическая, требует ремонта. Расположение: необходимая инфраструктура для комфортного проживания магазины, школа 9, детский...
    • 58 м²
    • 3-ком
    • 1/1 эт.
    • кирпичный
    3 300 000 Р
    Агент
    +7 (915) Показать номер
    Посмотреть контакты
    3-к кв. Белгородская область, Валуйский муниципальный округ, Уразово ... - Фото 1
    3-к кв. Белгородская область, Валуйский муниципальный округ, Уразово ... - Фото 2
    3-комнатная квартира, общая площадь 57м², кухня 7м²

    Продается трехкомнатная квартира в пгт. Уразово Валуйского района Белгородской области ул. Ленина. Расположена на первом этаже двухэтажного кирпичного жилого дома. Входная дверь в квартиру металлическая. В квартире 3 просторные комнаты: большой и светлый...
    • 57 м²
    • 3-ком
    • 1/2 эт.
    • кирпичный
    3 250 000 Р
    Агент
    +7 (910) Показать номер
    Посмотреть контакты

    Не нашли подходящего объявления?

    Оставьте заявку, и наши риэлторы подберут квартиру в районе Корочи

    (0)