5 500 000 Р 69 630 $ или 59 770

Информация о коттедже

204 м2
Площадь
2
Этажность
13 cоток
Участок

Дополнительная информация

Дом продаётся вместе с участком
есть
Развернуть
Агент
+7 (915) 561-73-12
Начать чат с агентом

Дом в Белгородская область, Губкинский городской округ, с. Теплый ...

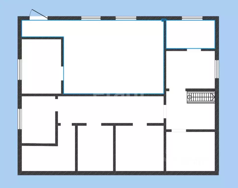
Уютный дом в живописном месте ждет своих хозяев Предлагаем к продаже современный дом 2021 года постройки, расположенный всего в 4 километрах от города, в тихом и уютном селе Тёплый Колодезь.Основные характеристики дома:Площадь: 100 кв.м. жилой площади, плюс просторный цокольный этаж площадью 100 кв.м., который открывает широкие возможности для реализации ваших идей его можно обустроить под дополнительный жилой этаж, мастерскую или зону отдыха.Участок: 13 соток земли, где вы сможете воплотить свои ландшафтные мечты, организовать зону барбекю или просто наслаждаться простором.Крыша: Надежная и долговечная металлочерепица.Материал стен: Пеноблоки гарантия хорошей теплоизоляции и долговечности.Коммуникации: Центральное водоснабжение и выгребная яма.Окна: По всему дому установлены качественные пластиковые окна, обеспечивающие тепло и тишину.Планировка первого этажа:Просторная кухня-гостиная: Идеальное место для семейных ужинов и встреч с друзьями.Две уютные спальни: Комфортное пространство для отдыха.Раздельный санузел: Удобство и функциональность.Просторная гардеробная: Позволит вам удобно хранить вещи.Натяжные потолки: Придают интерьеру современный вид.Большой балкон: Отличное место для утреннего кофе или вечернего отдыха (балкон не застеклен).Цокольный этаж:Четыре раздельных помещения: Предоставляют множество вариантов для использования от дополнительных спален и кабинета до кладовых и спортзала.Котельная: Обеспечивает бесперебойную работу отопительной системы.Этот дом прекрасный выбор для тех, кто ценит комфорт, качество и близость к природе, при этом не желая отказываться от преимуществ городской инфраструктуры.Не упустите свой шанс стать владельцем этого замечательного дома Звоните и записывайтесь на просмотр Код пользователя: 181650Номер в базе: 9694723

Читать полностью

    Для того, чтобы купить 2-этажный коттедж по адресу: Теплый Колодезь, позвоните по телефону +7 (915) 561-73-12. Торопитесь! Объявление №50016326202 о продаже двухэтажного коттеджа опубликовано Сегодня.

    Позвонить Написать
    5 500 000 Р69 630 $ или 59 770
    Агент
    +7 (915) 561-73-12
    Начать чат с агентом
    Похожие предложения
    Дом в Белгородская область, Губкинский городской округ, с. Вислая ... - Фото 1
    Дом в Белгородская область, Губкинский городской округ, с. Вислая ... - Фото 2
    1 этаж, общая площадь 103м², участок 21 сотка

    Продается дом площадью 103,5 м в экологически благоприятном районе Губкинского городского округа. Планировка рационально организована: три изолированные комнаты, что создает комфортные условия для жизни семьи. Отдельным преимуществом является наличие...
    • 1 эт.
    • 103 м²
    • 21 сот.
    5 500 000 Р
    Агент
    +7 (994) Показать номер
    Посмотреть контакты
    Дом в Белгородская область, Старооскольский городской округ, с. ... - Фото 1
    Дом в Белгородская область, Старооскольский городской округ, с. ... - Фото 2
    2 этажа, общая площадь 155м², участок 152 сотки

    Продаётся дом 155 м.кв. Дом строили для себя. имеется прихожая, коридор, санузел и ванна, три комнаты. На втором этаже большая комната. Коммуникации все подведены: газ, отопление газовое, свет, септик. Во дворе гараж. Имеется кладовая. Все необходимое...
    • 2 эт.
    • 155 м²
    • 152 сот.
    5 500 000 Р
    Агент
    +7 (910) Показать номер
    Посмотреть контакты
    Дом в Белгородская область, Яковлевский муниципальный округ, Яковлево ... - Фото 1
    Дом в Белгородская область, Яковлевский муниципальный округ, Яковлево ... - Фото 2
    1 этаж, общая площадь 92м², участок 16 соток

    Мечтаете о собственном доме? Создайте его САМИ в п. Яковлево Продается светлый одноэтажный дом 92.8 кв.м. чистый лист для вашего дизайна Что внутри: Вас встретит просторная прихожая. Кухня-столовая сердце будущего дома. Четыре комнаты пространство...
    • 1 эт.
    • 92 м²
    • 16 сот.
    5 500 000 Р
    Агент
    +7 (919) Показать номер
    Посмотреть контакты
    Дом в Белгородская область, Белгородский район, Никольское с/пос, с. ... - Фото 1
    Дом в Белгородская область, Белгородский район, Никольское с/пос, с. ... - Фото 2
    1 этаж, общая площадь 106м², участок 15 соток

    Жилой дом. Построен из качественных керамзитобетонных блоков ЖБК 1. Плиты перекрытия. Подвал . Жилое состояние. Все коммуникации в доме, подключены.Плодоносящий сад. Участок угловой. Живописное место. Очень удобное местоположение. До Белгорода 15-20 минут...
    • 1 эт.
    • 106 м²
    • 15 сот.
    5 500 000 Р
    Агент
    +7 (910) Показать номер
    Посмотреть контакты
    Дом в Белгородская область, Белгородский район, Пушкарское с/пос, с. ... - Фото 1
    Дом в Белгородская область, Белгородский район, Пушкарское с/пос, с. ... - Фото 2
    1 этаж, общая площадь 140м², участок 15 соток

    Продается дом. Массив Пушкарное-78. Все коммуникации на массиве есть. Дом под отделку. Возможна продажа с отделкой под ключ.
    • 1 эт.
    • 140 м²
    • 15 сот.
    5 600 000 Р
    Агент
    +7 (980) Показать номер
    Посмотреть контакты

    Не нашли подходящего объявления?

    Оставьте заявку, и наши риэлторы подберут купить дом в районе Теплого Колодезя

    (0)