6 500 000 Р 80 240 $ или 68 180

Информация о коттедже

65 м2
Площадь
1
Этажность
15 cоток
Участок

Дополнительная информация

Дом продаётся вместе с участком
есть
Развернуть
Агент
Новиков Илья Леонидович (АН Кира)
+7 (905) 676-80-76
Начать чат с агентом

Дом в Губкин, Белгородская улица (65.3 м)

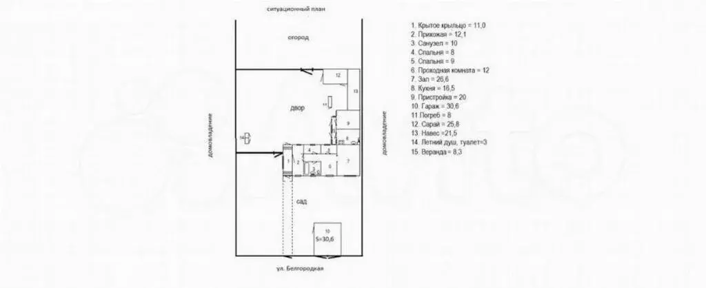
Пpoдам пpостоpный дом со всeми удобcтвами, c бoльшим уxожeнным учacтком, в xopoшeм располoжении. В доме пpиxoжaя, двe спaльни, проходнaя комнaта (испoльзовалacь как cтолoвaя), coвмещeнный сaнузел и зал. К дoму пpистpoены oтaпливaeмые, бoльшaя куxня и жилaя кoмнaта. Цeнтрaлизованные водоснабжение и газ. Отопление газовый котел. Канализация септик. Дом оборудован проводным интернетом (оптоволокно), Wi-fi и ТV (больше 300 каналов). Участок большой, разбит на сад, внутренний двор и огород. На территории имеются постройки: Гараж (30 м) железобетонный с новой крышей, Сарай с чердаком и с печкой (можно переоборудовать под баню), Погреб глубокий и вместительный Летний душ и туалет, Вольер для животных, Сарайчик с насестом Навес дровник. Двор оборудован навесом и выделено место для мангальной зоны. Огород обработан и ухожен. На участке плодовые деревья: Яблони, персик, абрикос, слива, вишня, черешня, орех, орешник, боярышник. Посажены смородина черная и красная, крыжовник разных сортов, малина, ежевика, йошта, виноград, клубника. Во дворе многолетние цветы под разные сезоны и декоративные насаждения. Дом находится в удачном транспортном месте на первой линии, и в то же время расположен в глубине участка и скрыт от шума дороги. До остановки 3 минуты пешком. Несколько городских маршрутов, можно за 10-15 минут добраться в любую точку города на общественном транспорте. В пешей доступности междугородняя автостанция, ж/д вокзал, городской пруд и прогулочные зоны. До оборудованного городского пляжа 30 минут пешком. По улице школа, почта, музей, магазины (Пятерочка, Светофор, Строительные материалы), автомойка, заправка. За домом и участком постоянно ухаживали и обновляли. Есть всё что нужно для комфортной жизни, работы и отдыха.Для собственников: у нас работает нейросеть. Нейросеть как маленький ребенок -она учится Иногда в нейросети происходят сбои. Если вы заметили несоответствие информации позвоните нам и мы все исправим или уберем объявление. Благодарим за понимание

Читать полностью

    Для того, чтобы купить 1-этажный коттедж по адресу: Губкин, ул. Белгородская, позвоните по телефону +7 (905) 676-80-76. Торопитесь! Объявление №50016371907 о продаже одноэтажного коттеджа опубликовано 18 сентября 2025.

    Позвонить Написать
    6 500 000 Р80 240 $ или 68 180
    Агент
    Новиков Илья Леонидович (АН Кира)
    +7 (905) 676-80-76
    Начать чат с агентом
    Похожие предложения
    Дом в Белгородская область, Губкин ул. Дзержинского, 101 (90 м) - Фото 1
    Дом в Белгородская область, Губкин ул. Дзержинского, 101 (90 м) - Фото 2
    1 этаж, общая площадь 90м², участок 6 соток

    В продаже шлакоблочный дом. Дом теплый и уютный. Не требует дополнительных вложений. В доме две жилые комнаты и кухня-гостиная. При продаже частично остается мебель и техника. Участок ухожен, имеется небольшой огород, цветы и плодовые деревья.Дом расположен...
    • 1 эт.
    • 90 м²
    • 6 сот.
    6 500 000 Р
    Агент
    +7 (980) Показать номер
    Посмотреть контакты
    Дом в Губкин, улица Дружбы (90 м) - Фото 1
    Дом в Губкин, улица Дружбы (90 м) - Фото 2
    1 этаж, общая площадь 90м², участок 6 соток

    на территории имеется летний душ, туалет, времянка, сарай, 2 гаража. В доме сделан свежий ремонт, установлены межкомнатные двери, в ванне кафель, в коридоре, в кухне, в ванной теплый пол.Для собственников: у нас работает нейросеть. Нейросеть как маленький...
    • 1 эт.
    • 90 м²
    • 6 сот.
    6 500 000 Р
    Агент
    +7 (905) Показать номер
    Посмотреть контакты
    Дом в Белгородская область, Старый Оскол Коммунистическая ул. (65 м) - Фото 1
    Дом в Белгородская область, Старый Оскол Коммунистическая ул. (65 м) - Фото 2
    1 этаж, общая площадь 65м², участок 8 соток

    Два дома в центре города Старый Оскол. Отличный вариант для большой семьи, два жилых дома в центральной части города, в пешей доступности от всей необходимой для комфортной жизни инфраструктуры. Первый дом, деревянный, утеплён, обшит сайдингом, площадью...
    • 1 эт.
    • 65 м²
    • 8 сот.
    6 500 000 Р
    Агент
    +7 (915) Показать номер
    Посмотреть контакты
    Дом в Белгородская область, Белгородский район, с. Стрелецкое ул. ... - Фото 1
    Дом в Белгородская область, Белгородский район, с. Стрелецкое ул. ... - Фото 2
    1 этаж, общая площадь 100м², участок 17 соток

    Продается новый, качественно построенный дом с участком, в уникальном месте. 10 минут езды от Белгорода в северном направлении. Живописный район, прекрасное место для жизни и отдыха. Стены из керамзитного блока утеплены и облицованы декоративным кирпичом....
    • 1 эт.
    • 100 м²
    • 17 сот.
    6 500 000 Р
    Агент
    +7 (980) Показать номер
    Посмотреть контакты
    Дом в Белгородская область, Белгородский район, с. Стрелецкое ул. ... - Фото 1
    Дом в Белгородская область, Белгородский район, с. Стрелецкое ул. ... - Фото 2
    1 этаж, общая площадь 100м², участок 15 соток

    Продается новый, качественно построенный дом с участком, в уникальном месте. 10 минут езды от Белгорода в северном направлении. Живописный район, прекрасное место для жизни и отдыха. Стены из керамзитного блока утеплены и облицованы декоративным кирпичом....
    • 1 эт.
    • 100 м²
    • 15 сот.
    6 500 000 Р
    Агент
    +7 (980) Показать номер
    Посмотреть контакты

    Не нашли подходящего объявления?

    Оставьте заявку, и наши риэлторы подберут купить дом в районе Губкина

    (0)