8 000 000 Р 104 200 $ или 88 610

Информация о коттедже

261 м2
Площадь
2
Этажность
19 cоток
Участок

Дополнительная информация

Дом продаётся вместе с участком
есть
Развернуть
Агент
+7 (919) 221-75-00
Начать чат с агентом

Дом в Белгородская область, Бирюч Красногвардейский район, ул. Красных ...

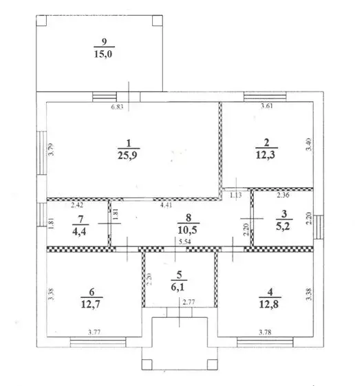
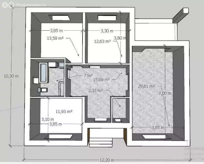
В Бирюче выставлен на продажу новый дом, введенный в эксплуатацию в 2023 году. Общая площадь здания составляет 261 кв.м. Дом двухэтажный, возведен из современного теплоблока, представляющего собой готовую трехслойную конструкцию: внешняя отделка под камень, эффективный утеплитель и внутренний несущий блок, что обеспечивает высокую энергоэффективность и снижение затрат на отопление. Объект находится на стадии черновой отделки, что позволяет новому владельцу сразу приступить к финишным работам по индивидуальному проекту. Планировка продумана и функциональна: на первом этаже расположены просторная кухня-гостиная, подсобные помещения, котельная и санузел; второй этаж полностью отведен под приватную зону с изолированными спальнями, дополнительной гостиной и санузлом. Все комнаты отличаются хорошими размерами. Установлены пластиковые окна, выполнена обвязка для подключения газа, подведено электричество, центральный водопровод и автономная канализация (септик). Город Бирюч предлагает развитую инфраструктуру для комфортной жизни. Рассматриваются варианты торга. Код пользователя: 58296Номер в базе:

Читать полностью

    Для того, чтобы купить 2-этажный коттедж по адресу: Бирюч, ул. Красных Партизан, 91, позвоните по телефону +7 (919) 221-75-00. Торопитесь! Объявление №50016777447 о продаже двухэтажного коттеджа опубликовано Вчера.

    Позвонить Написать
    8 000 000 Р104 200 $ или 88 610
    Агент
    +7 (919) 221-75-00
    Начать чат с агентом
    Похожие предложения
    Дом в село Стрелецкое, Сказочная улица (150 м) - Фото 1
    Дом в село Стрелецкое, Сказочная улица (150 м) - Фото 2
    2 этажа, общая площадь 150м², участок 25 соток

    Продам ДОМ Стрелецкое 23а Площадь 150м.кв. на 25 сотках земли Дом построен из керамзитобетонных блоков, утеплитель-изовол, облицовка-кирпич, крыша-металлочерепица. В доме 4 изолированные комнаты и большая гостиная. Коммуникации: газ, свет, вода заведены...
    • 2 эт.
    • 150 м²
    • 25 сот.
    8 100 000 Р
    Агент
    +7 (903) Показать номер
    Посмотреть контакты
    Дом в село Стрелецкое, Вербная улица (95 м) - Фото 1
    Дом в село Стрелецкое, Вербная улица (95 м) - Фото 2
    1 этаж, общая площадь 95м², участок 15 соток

    СТРОИТЕЛЬСТВО ДОМА ОТ 4 до 6 МЕСЯЦЕВ В ДАННОМ МАССИВЕ СТРЕЛЕЦКОЕ-59Комплексный подход к строительствуПерсональный менеджер на всех этапах сделкиБЕСПЛАТНЫЙ подбор ипотечной программыПодробности по телефонуМы предоставляем услуги по:Подбору земельного участка;Проектированию...
    • 1 эт.
    • 95 м²
    • 15 сот.
    8 000 000 Р
    Агент
    +7 (903) Показать номер
    Посмотреть контакты
    Дом в село Стрелецкое, микрорайон Стрелецкое-72 (110 м) - Фото 1
    Дом в село Стрелецкое, микрорайон Стрелецкое-72 (110 м) - Фото 2
    1 этаж, общая площадь 110м², участок 17 соток

    Продается дом 100 кв.м с террасойПОДХОДИТ ПОД СЕЛЬСКУЮ ИПОТЕКУ 3 Подходит под все виды ипотек и жилищных сертификатов, материнский капитал и наличный расчет Цена указана с ремонтом в чистовая отделка Есть возможность приобрести дом с ремонтом Под...
    • 1 эт.
    • 110 м²
    • 17 сот.
    7 950 000 Р
    Агент
    +7 (905) Показать номер
    Посмотреть контакты
    Дом в село Стрелецкое, микрорайон Стрелецкое-83 (100 м) - Фото 1
    Дом в село Стрелецкое, микрорайон Стрелецкое-83 (100 м) - Фото 2
    1 этаж, общая площадь 100м², участок 15 соток

    Продается строящийся дом 100 кв.м с террасойПОДХОДИТ ПОД СЕЛЬСКУЮ ИПОТЕКУ 3 ПОДХОДИТ ПОД СЕМЕЙНУЮ ИПОТЕКУ 6 ПРОДАЖА ОТ ЮР. ЛИЦА Подходит под все виды ипотек и жилищных сертификатов, материнский капитал и наличный расчет Цена указана с ремонтом в чистовая...
    • 1 эт.
    • 100 м²
    • 15 сот.
    8 000 000 Р
    Агент
    +7 (905) Показать номер
    Посмотреть контакты
    Дом в село Стрелецкое, микрорайон Стрелецкое-72, Творческая улица (120 ... - Фото 1
    Дом в село Стрелецкое, микрорайон Стрелецкое-72, Творческая улица (120 ... - Фото 2
    1 этаж, общая площадь 120м², участок 12 соток

    Код объекта: 2041369.Уникальное предложение для тех, кто ищет комфортное жильё в тихом и уютном месте Продаётся современный одноэтажный дом в селе Стрелецкое Белгородского района. Дом построен в 2024 году, его общая площадь составляет 120 кв. м. Три...
    • 1 эт.
    • 120 м²
    • 12 сот.
    7 950 000 Р
    Агент
    +7 (905) Показать номер
    Посмотреть контакты

    Не нашли подходящего объявления?

    Оставьте заявку, и наши риэлторы подберут купить дом в районе Бирюча

    (0)