Реализация объекта недвижимости приостановлена

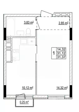
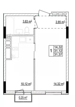
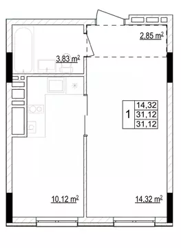
Информация о квартире

35.0 м2
Площадь
1
Комната
4
Этаж
4
Этажность

Дополнительная информация

Тип дома
кирпичный
Развернуть

1-к кв. Белгородская область, Белгородский район, с. Стрелецкое ул. ...

Продаётся 1-комнатная квартира в сданном доме (Позиция 7), срок сдачи: III-кв. 2023, общей площадью 37.33 кв.м., на 4 этаже. ЖК Московский кварталасположен в Белгородском районе, на северо-западном направлении от черты города Белгорода в Стрелецком. ЖК Московский квартал - малоэтажные клубные одноподъездные дома с мансардами, с небольшим количеством квартир. В каждом из домов предусмотрен грузопассажирский лифт. Огороженная территория квартала обеспечивает безопасность и приватность будущих жителей квартала. Парковочное пространство предусмотрено по внешнему контору квартала, что делает дворы без автомобилей безопасными и способствует спокойному отдыху. В пешей доступности от ЖК Московский кварталасположены большие супермаркеты продуктов Каскад и Пятерочка . Общеобразовательная школа и детские сады находятся на удалении 2-х километров от границ квартала.

Читать полностью

    Реализация объекта недвижимости приостановлена

    Не нашли подходящего объявления?

    Оставьте заявку, и наши риэлторы подберут квартиру в новостройке в районе Стрелецкого

    (0)