11 780 000 Р 145 200 $ или 123 900

Информация о коттедже

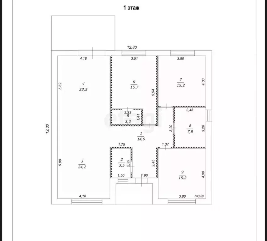
168 м2
Площадь
1
Этажность
19 cоток
Участок

Дополнительная информация

Дом продаётся вместе с участком
есть
Развернуть
Агент
+7 (980) 392-31-86
Начать чат с агентом

Дом в Белгородская область, Белгородский район, с. Стрелецкое 2 (168 ...

Блочно-кирпичный дом с мансардой площадью 168,3 кв. м, участок 19 соток. На участке есть навес из кирпича на 2 машины, недостроенная баняДом расположен в поселке Стрелецком, в 15 минутах езды от города, что обеспечивает баланс между спокойной загородной жизнью и удобной транспортной доступностью. Обжитой район с развитой инфраструктурой включает школу, детский сад и сеть магазинов в шаговой доступности, что делает проживание комфортным для семей с детьми. Объект построен из качественных материалов с продуманной планировкой и полностью готов к заселению. Внутренняя отделка выполнена, внешняя облицовка завершена, все коммуникации подведены и подключены: центральное водоснабжение, канализация, газ и электричество. Это избавляет от необходимости вкладываться в дополнительные работы и позволяет сразу начать жить в доме без лишних хлопот. Территория поселка благоустроена, район давно сформирован, что обеспечивает стабильность и предсказуемость условий проживания. Удобное расположение позволяет быстро добираться до города, сохраняя при этом преимущества загородной жизни — чистый воздух, тишину и простор. Дом подойдет как для постоянного проживания, так и для использования в качестве дачи. Дом подходит под использование ПП 555, ПП 272 и Курский сертификат. Поможем с оформлением.Звоните прямо сейчас, чтобы записаться на просмотр этого прекрасного дома Таких предложений на рынке очень мало и на долго не задерживаются. Код пользователя: 189769Номер в базе: 8495019

Читать полностью

    Для того, чтобы купить 1-этажный коттедж по адресу: Стрелецкое, позвоните по телефону +7 (980) 392-31-86. Торопитесь! Объявление №50016494669 о продаже одноэтажного коттеджа опубликовано Вчера.

    Позвонить Написать
    11 780 000 Р145 200 $ или 123 900
    Агент
    +7 (980) 392-31-86
    Начать чат с агентом
    Похожие предложения
    Дом в Белгородская область, Белгородский район, с. Стрелецкое 13 (110 ... - Фото 1
    Дом в Белгородская область, Белгородский район, с. Стрелецкое 13 (110 ... - Фото 2
    1 этаж, общая площадь 110м², участок 15 соток

    Продаётся современный кирпичный дом площадью 126 м с отделкой под ключ — заезжай и живи. В доме выполнен ремонт, установлена сантехника, проведено отопление. Можно сразу начинать обустраивать быт. Планировка:•3 отдельные спальни•Просторная кухня-гостиная...
    • 1 эт.
    • 110 м²
    • 15 сот.
    11 000 000 Р
    Агент
    +7 (980) Показать номер
    Посмотреть контакты
    Дом в Белгородская область, Белгородский район, с. Стрелецкое, ... - Фото 1
    Дом в Белгородская область, Белгородский район, с. Стрелецкое, ... - Фото 2
    2 этажа, общая площадь 250м², участок 15 соток

    Код объекта: 1843191. Исключительное предложение для ценителей комфорта и простора — продаётся уютный и вместительный дом в пос. Стрелецком 72. Построен в 2017 году из высококачественного кирпича, оснащён современными коммуникациями и готов к круглогодичному...
    • 2 эт.
    • 250 м²
    • 15 сот.
    11 500 000 Р
    Агент
    +7 (910) Показать номер
    Посмотреть контакты
    Дом в Белгородская область, Белгородский район, с. Стрелецкое, ... - Фото 1
    Дом в Белгородская область, Белгородский район, с. Стрелецкое, ... - Фото 2
    1 этаж, общая площадь 110м², участок 15 соток

    Код объекта: 1890746. Продаётся уютный и современный дом в селе Стрелецкое. Дом расположен в 5- ти минутах от торгового комплекса и остановки общественного транспорта В доме 3 просторные комнаты, кухня, санузел и гардеробная, отличная планировка для...
    • 1 эт.
    • 110 м²
    • 15 сот.
    11 350 000 Р
    Агент
    +7 (910) Показать номер
    Посмотреть контакты
    Дом в Белгородская область, Белгородский район, с. Стрелецкое ул. ... - Фото 1
    Дом в Белгородская область, Белгородский район, с. Стрелецкое ул. ... - Фото 2
    1 этаж, общая площадь 100м², участок 15 соток

    ДОМ 140 м2 С ПОЛНОЙ ОТДЕЛКОЙ В МКР. СТРЕЛЕЦКОЕ-83 НА УЧАСТКЕ 15 СОТОК ВОЗМОЖНА ПРОДАЖА ОТ ЮРИДИЧЕСКОГО ЛИЦА ПОДХОДИТ ПОД ПРОГРАММУ ПЕРЕСЕЛЕНИЯДЛЯ ПОКУПАТЕЛЯ КОМИССИЯ ОТСУТСТВУЕТ _________________________________________________ БУДЕТ ВЫПОЛНЕНО: - Разводка...
    • 1 эт.
    • 100 м²
    • 15 сот.
    11 000 000 Р
    Агент
    +7 (919) Показать номер
    Посмотреть контакты
    Дом в Белгородская область, Белгородский район, с. Стрелецкое, ... - Фото 1
    Дом в Белгородская область, Белгородский район, с. Стрелецкое, ... - Фото 2
    1 этаж, общая площадь 130м², участок 15 соток

    Код объекта: 1810449. Уникальное предложение для ценителей комфорта и уюта Продаётся современный одноэтажный дом в живописном посёлке Юго-Заподный.Дом построен в 2025 году из высококачественных материалов — он кирпично-блочног,с мягкой черепичной кровлей....
    • 1 эт.
    • 130 м²
    • 15 сот.
    11 300 000 Р
    Агент
    +7 (910) Показать номер
    Посмотреть контакты

    Не нашли подходящего объявления?

    Оставьте заявку, и наши риэлторы подберут купить дом в районе Стрелецкого

    (0)