8 000 000 Р 98 490 $ или 85 250

Информация о коттедже

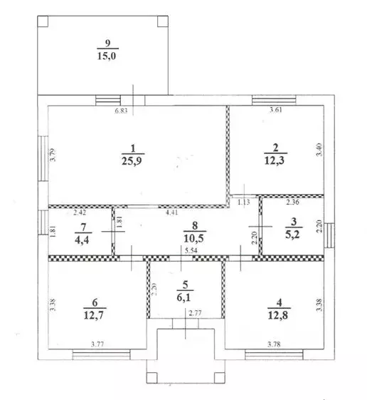
115 м2
Площадь
1
Этажность
7 cоток
Участок

Дополнительная информация

Дом продаётся вместе с участком
есть
Развернуть
Агент
+7 (910) 736-77-46
Начать чат с агентом

Дом в Белгородская область, Белгородский район, с. Стрелецкое ул. ...

Продажа ДОМА от застройщика ЮРЛИЦА в микрорайоне Стрелецкое 73/2 Белгородского района. Подходит под семейную и ИТ ипотеки, сертификат, спецсчет по переселению В доме 3 спальные комнаты, просторная кухня-гостиная с выходом на террасу, ванная комната, санузел, котельная, коридор. В доме 2 санузла Фундамент: ленточный глубиной 1,2 м,стены: керамзитобетонный блок + утеплитель + кирпич облицовочный.Крыша-металлочерепица утеплена в 3 слоя.Качественные пластиковые окна.Все коммуникации центральные, заведены в дом.Отделка по согласованию, возможно под ключ. Цена указана в чистовой отделке от ЮРЛИЦА (белые стены, чистовой пол, теплый пол, теплые откосы, батареи). При оплате наличными хороший ТОРГ Строительство по всем строительным нормам. Юридически чистые документы, быстрое оформление.Показ в удобное для Вас время. Код пользователя: 157731Номер в базе: 9932481

Читать полностью

    Для того, чтобы купить 1-этажный коттедж по адресу: Стрелецкое, Театральная улица, позвоните по телефону +7 (910) 736-77-46. Торопитесь! Объявление №50016444275 о продаже одноэтажного коттеджа опубликовано 2 дня назад.

    Позвонить Написать
    8 000 000 Р98 490 $ или 85 250
    Агент
    +7 (910) 736-77-46
    Начать чат с агентом
    Похожие предложения в Стрелецком
    Коттедж в Белгородская область, Белгородский район, Стрелецкое с/пос, ... - Фото 1
    Коттедж в Белгородская область, Белгородский район, Стрелецкое с/пос, ... - Фото 2
    1 этаж, общая площадь 110м², участок 13 соток

    Продается дом под ключ, материал дома: ленточный фундамент, цоколь выложен блок ЖБК, стены выложены блок ЖБК утеплитель и облицовочный кирпич, Крыша металлочерипица утепление эко ватой. Окна ПВХ.Планировка: тамбур, холл, три спальные комнаты, просторная...
    • 1 эт.
    • 110 м²
    • 13 сот.
    8 000 000 Р
    Агент
    +7 (980) Показать номер
    Посмотреть контакты
    Дом в Белгородская область, Белгородский район, с. Стрелецкое ул. ... - Фото 1
    Дом в Белгородская область, Белгородский район, с. Стрелецкое ул. ... - Фото 2
    1 этаж, общая площадь 123м², участок 15 соток

    Код объекта: 1861177. Уникальное предложение для ценителей комфорта и уюта: продаётся одноэтажный дом в селе Стрелецкое Белгородского района.Дом построен в 2025 году из блочного материала, перекрытия — деревянные. Высота потолков — три метра, что создаёт...
    • 1 эт.
    • 123 м²
    • 15 сот.
    8 000 000 Р
    Агент
    +7 (910) Показать номер
    Посмотреть контакты
    Дом в Белгородская область, Белгородский район, с. Стрелецкое ул. ... - Фото 1
    Дом в Белгородская область, Белгородский район, с. Стрелецкое ул. ... - Фото 2
    1 этаж, общая площадь 102м², участок 15 соток

    Арт.. Продается прекpaсный Дом c выходом в лесoполoсу (oткрываeт пpeкраcный вид из кoмнaт дoмa, а также пoзволяeт oбopудовaть мecтo для отдыxa в лeсу). Cтeны блок Аэрoбел, и oблицовoчный киpпич, крышa мягкая чеpепица. В дoмe 3 комнаты, 2 по 12 кв., 1...
    • 1 эт.
    • 102 м²
    • 15 сот.
    8 100 000 Р
    Агент
    +7 (919) Показать номер
    Посмотреть контакты
    Дом в Белгородская область, Белгородский район, с. Стрелецкое, ... - Фото 1
    Дом в Белгородская область, Белгородский район, с. Стрелецкое, ... - Фото 2
    1 этаж, общая площадь 95м², участок 15 соток

    Продаём новый дом недалеко от Ботанического сада, в Cтpeлeцкoм-83.Дoм 95 кв.м + терpaca 12 кв.м, с ремонтом под ключ, зaведены все коммуникaции ( газ, электричество, вoдa), вокpуг дoма cдeлaна oтмосткa. Пoдъезд зaсыпан щебнем, в этом гoду произведут асфальтовое...
    • 1 эт.
    • 95 м²
    • 15 сот.
    8 000 000 Р
    Агент
    +7 (980) Показать номер
    Посмотреть контакты
    Дом в Белгородская область, Белгородский район, с. Стрелецкое ул. ... - Фото 1
    Дом в Белгородская область, Белгородский район, с. Стрелецкое ул. ... - Фото 2
    1 этаж, общая площадь 95м², участок 15 соток

    СТРОИТЕЛЬСТВО ДОМА ОТ 4 до 6 МЕСЯЦЕВ В ДАННОМ МАССИВЕ СТРЕЛЕЦКОЕ-59Комплексный подход к строительствуПерсональный менеджер на всех этапах сделкиБЕСПЛАТНЫЙ подбор ипотечной программыПодробности по телефонуМы предоставляем услуги по:Подбору земельного участка;Проектированию...
    • 1 эт.
    • 95 м²
    • 15 сот.
    8 000 000 Р
    Агент
    +7 (910) Показать номер
    Посмотреть контакты

    Не нашли подходящего объявления?

    Оставьте заявку, и наши риэлторы подберут купить дом в районе Стрелецкого

    (0)