6 900 000 Р 85 220 $ или 73 340

Информация о коттедже

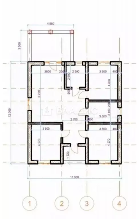
126 м2
Площадь
1
Этажность
11 cоток
Участок

Дополнительная информация

Дом продаётся вместе с участком
есть
Развернуть
Агент
+7 (910) 023-02-55
Начать чат с агентом

Дом в Белгородская область, Белгородский район, с. Стрелецкое ул. ...

Код объекта: 1745901. ПОДХОДИТ ДЛЯ СЕМЕЙНОЙ ИПОТЕКИ 6 Идеальное место для жизни и инвестиций: просторный дом в селе СтрелецкоеОписание объектаПродаётся просторный и уютный дом в селе Стрелецкое Белгородского района, расположенный по адресу: улица Победы. Дом построен в 2025 году из газобетонных блоков, перекрытия — деревянные, кровля — мягкая черепица. Общая площадь дома — 126 кв. м, жилая — 45 кв. м, площадь кухни — 25 кв. м. Дом имеет три комнаты, каждая по 15 кв. м, что делает его идеальным для семей с детьми или молодых специалистов, ищущих просторное жильё. Высота потолков — 3 м, что добавляет пространству воздушности и свободы.Расположение и инфраструктураДом находится всего в 6 км от города, что обеспечивает удобный доступ к центру и основным магистралям. В районе хорошо развита инфраструктура: есть школы, детские сады, магазины, аптеки и спортивные клубы. Близость к общественному транспорту делает дом удобным вариантом для семей с детьми и молодых специалистов.Преимущества- Просторная площадь и удобная планировка.- Близость к городу и развитая инфраструктура.- Возможность круглогодичного проживания.- Подходят все необходимые коммуникации: электричество и водоснабжение.Дом в процессе строительства, будет достраиваться.Подарок от застройщика Возможна покупка с качественнымемонтом от застройщика в краткие сроки.Не упустите шанс стать владельцем этого прекрасного дома Позвоните нам прямо сейчас, чтобы узнать больше и записаться на просмотр.Подходит под любой вид расчетов:ипотека, военная ипотека, материнский капитал, жилищный сертификат, Курский сертификат , специальный счёт, Постановление 555Мы гарантируем безопасную сделку и юридическую поддержку нашим Клиентам. Поможем одобрить ипотеку с сниженной ставкой.

Читать полностью

    Для того, чтобы купить 1-этажный коттедж по адресу: Стрелецкое, улица Победы, позвоните по телефону +7 (910) 023-02-55. Торопитесь! Объявление №50016286525 о продаже одноэтажного коттеджа опубликовано Вчера.

    Позвонить Написать
    6 900 000 Р85 220 $ или 73 340
    Агент
    +7 (910) 023-02-55
    Начать чат с агентом
    Похожие предложения в Стрелецком
    Дом в Белгородская область, Белгородский район, с. Стрелецкое ул. ... - Фото 1
    Дом в Белгородская область, Белгородский район, с. Стрелецкое ул. ... - Фото 2
    2 этажа, общая площадь 172м², участок 15 соток

    Вашему вниманию предлагается уютный двухэтажный дом с четырьмя комнатами, просторной кухней-гостиной и двумя санузлами на каждом этаже. Межэтажные перекрытия из железобетона гарантируют надежность конструкции, а крыша из металлочерепицы обеспечит защиту...
    • 2 эт.
    • 172 м²
    • 15 сот.
    6 900 000 Р
    Агент
    +7 (910) Показать номер
    Посмотреть контакты
    Дом в Белгородская область, Белгородский район, с. Стрелецкое 110 (90 ... - Фото 1
    Дом в Белгородская область, Белгородский район, с. Стрелецкое 110 (90 ... - Фото 2
    1 этаж, общая площадь 90м², участок 15 соток

    Продается дом, состоящий из одного этажа с общей площадью 90 квадратных метров. Этот дом представляет собой модный и презентабельный вариант жилья, который теперь имеет свежий и современный ремонт. Этот объект недвижимости отличается отличным соотношением...
    • 1 эт.
    • 90 м²
    • 15 сот.
    7 000 000 Р
    Агент
    +7 (980) Показать номер
    Посмотреть контакты
    Дом в Белгородская область, Белгородский район, с. Стрелецкое 408 (114 ... - Фото 1
    Дом в Белгородская область, Белгородский район, с. Стрелецкое 408 (114 ... - Фото 2
    1 этаж, общая площадь 114м², участок 15 соток

    Продается новый дом в мкр.Стрелецкое 73/2 Дом площадью 97,2 кв. м. расположен на ровном участке 15 сот.Удобная современная планировка - просторная кухня-гостиная с выходом на терассу, 3 спальни, 2 сан. узла.Материалы - блок, облицовка кирпич, металлочерепица....
    • 1 эт.
    • 114 м²
    • 15 сот.
    7 000 000 Р
    Агент
    +7 (980) Показать номер
    Посмотреть контакты
    Дом в Белгородская область, Белгородский район, с. Стрелецкое пер. 6-й ... - Фото 1
    Дом в Белгородская область, Белгородский район, с. Стрелецкое пер. 6-й ... - Фото 2
    2 этажа, общая площадь 185м², участок 15 соток

    Код объекта: 1729250. Ищете дом для большой семьи или инвестиций? Мы предлагаем вам прекрасный вариант в селе Стрелецкое Белгородского района — идеальный выбор для тех, кто ценит комфорт и спокойствие загородной жизни, но не хочет отказываться от удобства...
    • 2 эт.
    • 185 м²
    • 15 сот.
    7 000 000 Р
    Агент
    +7 (910) Показать номер
    Посмотреть контакты
    Дом в Белгородская область, Белгородский район, с. Стрелецкое 2 (90 м) - Фото 1
    Дом в Белгородская область, Белгородский район, с. Стрелецкое 2 (90 м) - Фото 2
    1 этаж, общая площадь 90м², участок 15 соток

    Код объекта: 1755548. Уникальное предложение для тех, кто ищет комфортное жильё за пределами городской суеты Продаётся уютный дом в селе Стрелецкое 73/2 Белгородского района, идеально подходящий для круглогодичного проживания.Дом построен в 2023 году...
    • 1 эт.
    • 90 м²
    • 15 сот.
    7 000 000 Р
    Агент
    +7 (910) Показать номер
    Посмотреть контакты

    Не нашли подходящего объявления?

    Оставьте заявку, и наши риэлторы подберут купить дом в районе Стрелецкого

    (0)