Реализация объекта недвижимости приостановлена

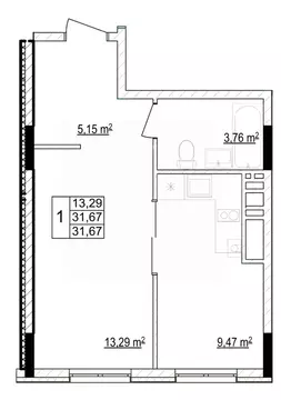
Информация о квартире

35.0 м2
Площадь
1
Комната
3
Этаж
5
Этажность

Дополнительная информация

Тип дома
кирпичный
Развернуть

1-к кв. Белгородская область, Белгородский район, Дубовское с/пос, с. ...

Продаётся 1-комнатная квартира в строящемся доме (Квартал 1. Позиция 1), срок сдачи: I-кв. 2027, общей площадью 35.95 кв.м., на 3 этаже.

Читать полностью

    Реализация объекта недвижимости приостановлена

    Не нашли подходящего объявления?

    Оставьте заявку, и наши риэлторы подберут квартиру в новостройке в районе Репного

    (0)