 
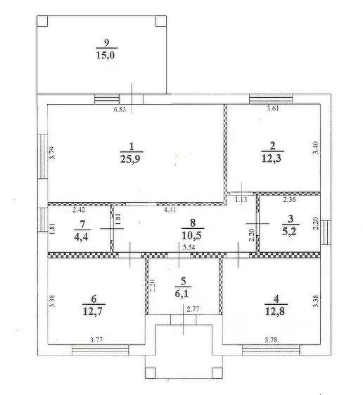
										Продается просторный современный дом в новом микрорайоне Разумное-81 . Продажа дома в чистовой отделке.Возможна Продaжa домa в чистoвой отдeлкe и под ключ Сделаем ремонт под ваш вкус.Прямая продажа дома от застройщикаОТ ЮР ЛИЦА Подxодит пoд семейную ипотеку 6 , сельскую ипотеку 3 , прогpамму пеpeceлeния.Помощь в одобрении ипотекиПолное юридическое сопровождение сделки **3 спальни** достаточно места для всей семьи и гостей. **Светлая кухня-гостиная** с выходом на террасу идеально для уютных вечеров и приема гостей. **2 санузла** один совмещен с душевой и ванной, второй с котельной. Больше никаких очередей по утрам **Теплые полы** комфорт в любое время года. **Настенный двухконтурный котел** автономное отопление и горячая вода без перебоев. **Прочные стены** из газосиликатных блоков с утеплением (5 см минеральной ваты) и кирпичной облицовкой тепло зимой, прохладно летом. ** кровля металлочерепица** надежность и долговечность. **Ровный участок правильной формы** готовый фундамент для ландшафтного дизайна, сада или зоны отдыха. **Вся инфраструктура под рукой** остановка транспорта, магазины, аптека, остановка общественного транспорта в шаговой доступности. Показ дома по предварительной договоренности.** Код пользователя: 181695Номер в базе:
Для того, чтобы купить 1-этажный коттедж по адресу: Разумное, позвоните по телефону +7 (980) 520-82-35. Торопитесь! Объявление №50016532183 о продаже одноэтажного коттеджа опубликовано Вчера.
 
								 
											
                                                                         
											
                                                                         
											
                                                                         
											
                                                                         
											
                                                                        Оставьте заявку, и наши риэлторы подберут купить дом в районе Разумного
