7 100 000 Р 87 810 $ или 75 600

Информация о коттедже

125 м2
Площадь
1
Этажность
15 cоток
Участок

Дополнительная информация

Дом продаётся вместе с участком
есть
Развернуть
Агент
+7 (980) 520-80-94
Начать чат с агентом

Дом в Белгородская область, Белгородский район, Пушкарское с/пос, с. ...

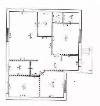
Продается Готовый дом 100 кв.м с террасойПОДХОДИТ ПОД СЕЛЬСКУЮ ИПОТЕКУ 3 ПОДХОДИТ ПОД СЕМЕЙНУЮ ИПОТЕКУ 6 ПРОДАЖА ОТ ЮР. ЛИЦА Подходит под все виды ипотек и жилищных сертификатов, материнский капитал и наличный расчет Цена указана с ремонтом в чистовая отделка Есть возможность приобрести дом с ремонтом Под ключ Описание: фундамент ленточный армированный 1,2 Стены Блок керамзитобетонный блок+утеплитель+облицовочный кирпич Крыша металлочерепица(упеплена, паро,гидроизоляция) ПЛАНИРОВКА: 3 спальни+кухня-гостинная+с/у +холл+терраса Ремонт Под чистовую отделку включает в себя: Выровнены,оштукатурены,ошпаклеваны стены Проведена электрика Смонтировано отопление(котел,радиаторы,система теплый пол ) Ремонт Под ключ включает в себя: Чистовая отделка + Кафель в санузлах, котельной и на полу в кухне и коридорах Натяжной потолок с точечным освещением и выводами под люстры Установлены межкомнатные двери КОММУНИКАЦИИ все заведено в дом Электричество Водоснабжение центральное Канализация автономная Отопление газовое автономное Дом расположен в прекрасном молодом массиве Рядом расположены новые современные котеджи Отличное место для комфортного проживания Код пользователя: 153887Номер в базе: 9581893

Читать полностью

    Для того, чтобы купить 1-этажный коттедж по адресу: Пушкарное, позвоните по телефону +7 (980) 520-80-94. Торопитесь! Объявление №50016313593 о продаже одноэтажного коттеджа опубликовано 30 сентября 2025.

    Позвонить Написать
    7 100 000 Р87 810 $ или 75 600
    Агент
    +7 (980) 520-80-94
    Начать чат с агентом
    Похожие предложения в Пушкарном
    Дом в Белгородская область, Белгородский район, Пушкарское с/пос, с. ... - Фото 1
    Дом в Белгородская область, Белгородский район, Пушкарское с/пос, с. ... - Фото 2
    1 этаж, общая площадь 119м², участок 15 соток

    Код объекта: 1764777. Продается дом 119 кв.м с большой террасой с зоной барбекю Главное преимущество: этот дом подходит под СЕМЕЙНУЮ ИПОТЕКУ 6 — ваша выгодная возможность приобрести просторное жилье для всей семьи О доме: Общая площадь: 100 кв....
    • 1 эт.
    • 119 м²
    • 15 сот.
    7 200 000 Р
    Агент
    +7 (910) Показать номер
    Посмотреть контакты
    Дом в Белгородская область, Белгородский район, Пушкарское с/пос, с. ... - Фото 1
    Дом в Белгородская область, Белгородский район, Пушкарское с/пос, с. ... - Фото 2
    1 этаж, общая площадь 115м², участок 15 соток

    ПОДОДИТ ПОД СЕПЕЙНУЮ ИПОТЕКУ Отличный дом в хорошем месте Не подходит под семейную ипотеку.Качественно построенный большой и светлый дом расположенный в Пушкарном. Общая площадь дома 100 м2. Стены - блок аэробел, облицовка керамическим кирпичом. Крыша...
    • 1 эт.
    • 115 м²
    • 15 сот.
    7 000 000 Р
    Агент
    +7 (980) Показать номер
    Посмотреть контакты
    Дом в Белгородская область, Белгородский район, Пушкарское с/пос, с. ... - Фото 1
    Дом в Белгородская область, Белгородский район, Пушкарское с/пос, с. ... - Фото 2
    1 этаж, общая площадь 100м², участок 11 соток

    Продается строящийся дом 100кв.м с террасой Подходит под все виды ипотек и жилищных сертификатов, материнский капитал и наличный расчет ПОДХОДИТ ПОД СЕЛЬСКУЮ ИПОТЕКУ 3 Цена указана с ремонтом в под ключ ВОЗМОЖНА ПРОДАЖА ОТ ЮРЛИЦА ПОД СЕМЕЙНУЮ ИПОТЕКУ...
    • 1 эт.
    • 100 м²
    • 11 сот.
    7 000 000 Р
    Агент
    +7 (980) Показать номер
    Посмотреть контакты
    Дом в Белгородская область, Белгородский район, Пушкарское с/пос, с. ... - Фото 1
    Дом в Белгородская область, Белгородский район, Пушкарское с/пос, с. ... - Фото 2
    1 этаж, общая площадь 115м², участок 10 соток

    Дом под ключ. Развитая инфраструктура, магазин, школа, садик, остановка общественного транспорта. ПланировкаСпальни 3, кухня-гостиная, терраса, санузел, просторный хол, прихожая. Полное юридическое сопровождение сделки, помощь в оформлении ипотеки на...
    • 1 эт.
    • 115 м²
    • 10 сот.
    7 000 000 Р
    Агент
    +7 (980) Показать номер
    Посмотреть контакты
    Дом в Белгородская область, Белгородский район, Пушкарское с/пос, с. ... - Фото 1
    Дом в Белгородская область, Белгородский район, Пушкарское с/пос, с. ... - Фото 2
    1 этаж, общая площадь 115м², участок 10 соток

    Дом под ключ. Развитая инфраструктура, магазин, школа, садик, остановка общественного транспорта. ПланировкаСпальни 3, кухня-гостиная, терраса, санузел, просторный хол, прихожая. Полное юридическое сопровождение сделки, помощь в оформлении ипотеки на...
    • 1 эт.
    • 115 м²
    • 10 сот.
    7 000 000 Р
    Агент
    +7 (980) Показать номер
    Посмотреть контакты

    Не нашли подходящего объявления?

    Оставьте заявку, и наши риэлторы подберут купить дом в районе Пушкарного

    (0)