127 000 000 Р 1 669 900 $ или 1 417 000

Информация об помещении

5
Этаж

Состояние и оснащение

Количество этажей
5
Развернуть
Агент
+7 (910) 222-04-73
Начать чат с агентом

Торговая площадь в Белгородская область, Белгород Восточная ул., 71В ...

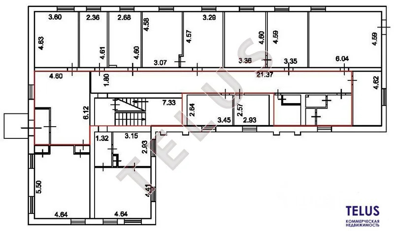
Предлагаем вам к покупке торгово-офисное ЗДАНИЕ общей площадью 1806квм по ул. Восточная, 71вЗдание состоит из 5 этажей, цокольный этаж включительноОбщие характеристики:1 этаж площадью 297квм. Свободная планировка2 этаж площадью 306квм. Свободная планировка 3 этаж площадью 302квм. Планировка кабинетного типа. Площадь кабинетов в диапазоне 20-35квм4 этаж площадью 303квм. Планировка этажа кабинетного типа. Площадь кабинетов в диапазоне 15-20квм5 этаж площадью 297квм. Есть несколько кабинетов. На этаже расположена котельная и подсобные помещенияШирокие лестничные пролетыПеред зданием предусмотрено большое парковочное пространство Номер объекта: 5/554787/13694Арт.

Читать полностью
    Позвонить Написать
    127 000 000 Р1 669 900 $ или 1 417 000
    Агент
    +7 (910) 222-04-73
    Начать чат с агентом
    Похожие предложения
    Торговая площадь в Белгородская область, Старый Оскол Олимпийский мкр, ... - Фото 1
    Торговая площадь в Белгородская область, Старый Оскол Олимпийский мкр, ... - Фото 2
    Предлагаем вашему внимание продажу Здания с действующими арендаторами:- Магнит продукты - 474,5 кв.м.- Магнит Косметик - 296,1 кв.м.- Эконом Маркет - 1 602,2 кв.м.- Аптека - 79 кв.м.ЗЕМЕЛЬНЫЙ УЧАСТОК 47 соток.Все коммуникации центральные, объект расположен...
    • 1/1 эт.
    126 000 000 Р
    Агент
    +7 (919) Показать номер
    Посмотреть контакты
    Торговая площадь в Санкт-Петербург ул. Белы Куна, 3 (511 м) - Фото 1
    Торговая площадь в Санкт-Петербург ул. Белы Куна, 3 (511 м) - Фото 2
    ПРОДАЖА Прямо у метро Международная, отдельный вход, на 1 и 2 этаже. Напрямую от собственника, без комиссии Помещение в отдельно стоящем торговом комплексе, расположенном на выходе из станции метро Международная. Местоположение обеспечивает стабильно...
    • 2/3 эт.
    135 000 000 Р
    Агент
    +7 (911) Показать номер
    Посмотреть контакты
    м. Варшавская, ул.Фруктовая 700.8м2 Здание (ном. объекта: 8350) - Фото 1
    м. Варшавская, ул.Фруктовая 700.8м2 Здание (ном. объекта: 8350) - Фото 2
    м. Варшавская, ул.Фруктовая 700.8м2 Здание (ном. объекта: 8350) - Фото 3
    м. Варшавская, ул.Фруктовая 700.8м2 Здание (ном. объекта: 8350) - Фото 4
    м. Варшавская, ул.Фруктовая 700.8м2 Здание (ном. объекта: 8350) - Фото 5
    м. Варшавская, ул.Фруктовая 700.8м2 Здание (ном. объекта: 8350) - Фото 6
    м. Варшавская, ул.Фруктовая 700.8м2 Здание (ном. объекта: 8350) - Фото 7
    м. Варшавская, ул.Фруктовая 700.8м2 Здание (ном. объекта: 8350) - Фото 8
    м. Варшавская, ул.Фруктовая 700.8м2 Здание (ном. объекта: 8350) - Фото 9
    м. Варшавская, ул.Фруктовая 700.8м2 Здание (ном. объекта: 8350) - Фото 10
    м. Варшавская, ул.Фруктовая 700.8м2 Здание (ном. объекта: 8350) - Фото 11
    м. Варшавская, ул.Фруктовая 700.8м2 Здание (ном. объекта: 8350) - Фото 12
    м. Варшавская, ул.Фруктовая 700.8м2 Здание (ном. объекта: 8350) - Фото 13
    м. Варшавская, ул.Фруктовая 700.8м2 Здание (ном. объекта: 8350) - Фото 14
    м. Варшавская, ул.Фруктовая 700.8м2 Здание (ном. объекта: 8350) - Фото 15
    м. Варшавская, ул.Фруктовая 700.8м2 Здание (ном. объекта: 8350) - Фото 16
    м. Варшавская, ул.Фруктовая 700.8м2 Здание (ном. объекта: 8350) - Фото 17
    м. Варшавская, ул.Фруктовая 700.8м2 Здание (ном. объекта: 8350) - Фото 18
    общая площадь 700м², реализуемая площадь 700м²

    Административное здание . Общая площадь здания 700.8м2. Объект находится на земельном участке 1199 м2, в долгосрочной аренде в аренде у города до 2062 года. В здании два этажа и подвал(площадь 69.7 м2) . Высота потолков 3.1 м. Перекрытия деревянные...
    • 700 м²
    • 2 этажа
    140 000 000 Р
    Агент
    +7 (916) Показать номер
    Агентство
    Телус
    Посмотреть контакты
    м. Савеловская, Складочная 634 м2 Здание - ресторан (ном. объекта: ... - Фото 1
    м. Савеловская, Складочная 634 м2 Здание - ресторан (ном. объекта: ... - Фото 2
    м. Савеловская, Складочная 634 м2 Здание - ресторан (ном. объекта: ... - Фото 3
    м. Савеловская, Складочная 634 м2 Здание - ресторан (ном. объекта: ... - Фото 4
    м. Савеловская, Складочная 634 м2 Здание - ресторан (ном. объекта: ... - Фото 5
    м. Савеловская, Складочная 634 м2 Здание - ресторан (ном. объекта: ... - Фото 6
    м. Савеловская, Складочная 634 м2 Здание - ресторан (ном. объекта: ... - Фото 7
    м. Савеловская, Складочная 634 м2 Здание - ресторан (ном. объекта: ... - Фото 8
    м. Савеловская, Складочная 634 м2 Здание - ресторан (ном. объекта: ... - Фото 9
    м. Савеловская, Складочная 634 м2 Здание - ресторан (ном. объекта: ... - Фото 10
    общая площадь 634м², реализуемая площадь 634м²

    Продажа нежилого помещения 634.8 м2. Двухэтажное здание с мансардой Год строительства 2013г. Планировка смешанная, свободного назначения, материал стен кирпич. Мощность 145 Квт. Центральное отопление, своя дизельная котельная, сделан евроремонт во всех...
    • 634 м²
    • 3 этажа
    120 000 000 Р
    Агент
    +7 (916) Показать номер
    Агентство
    Телус
    Посмотреть контакты
    МО, Долгопрудный, Дирижабельная, 3002 м2, ПСН (ном. объекта: 8203) - Фото 1
    МО, Долгопрудный, Дирижабельная, 3002 м2, ПСН (ном. объекта: 8203) - Фото 2
    МО, Долгопрудный, Дирижабельная, 3002 м2, ПСН (ном. объекта: 8203) - Фото 3
    МО, Долгопрудный, Дирижабельная, 3002 м2, ПСН (ном. объекта: 8203) - Фото 4
    МО, Долгопрудный, Дирижабельная, 3002 м2, ПСН (ном. объекта: 8203) - Фото 5
    МО, Долгопрудный, Дирижабельная, 3002 м2, ПСН (ном. объекта: 8203) - Фото 6
    МО, Долгопрудный, Дирижабельная, 3002 м2, ПСН (ном. объекта: 8203) - Фото 7
    МО, Долгопрудный, Дирижабельная, 3002 м2, ПСН (ном. объекта: 8203) - Фото 8
    МО, Долгопрудный, Дирижабельная, 3002 м2, ПСН (ном. объекта: 8203) - Фото 9
    МО, Долгопрудный, Дирижабельная, 3002 м2, ПСН (ном. объекта: 8203) - Фото 10
    МО, Долгопрудный, Дирижабельная, 3002 м2, ПСН (ном. объекта: 8203) - Фото 11
    МО, Долгопрудный, Дирижабельная, 3002 м2, ПСН (ном. объекта: 8203) - Фото 12
    МО, Долгопрудный, Дирижабельная, 3002 м2, ПСН (ном. объекта: 8203) - Фото 13
    МО, Долгопрудный, Дирижабельная, 3002 м2, ПСН (ном. объекта: 8203) - Фото 14
    МО, Долгопрудный, Дирижабельная, 3002 м2, ПСН (ном. объекта: 8203) - Фото 15
    МО, Долгопрудный, Дирижабельная, 3002 м2, ПСН (ном. объекта: 8203) - Фото 16
    МО, Долгопрудный, Дирижабельная, 3002 м2, ПСН (ном. объекта: 8203) - Фото 17
    МО, Долгопрудный, Дирижабельная, 3002 м2, ПСН (ном. объекта: 8203) - Фото 18
    МО, Долгопрудный, Дирижабельная, 3002 м2, ПСН (ном. объекта: 8203) - Фото 19
    МО, Долгопрудный, Дирижабельная, 3002 м2, ПСН (ном. объекта: 8203) - Фото 20
    общая площадь 3002м², реализуемая площадь 3002м²

    Продажа нежилых помещений общей площадью 3002 м2 и часть земельного участка 2050 м2.Реализуемые помещения представляют собой: подвал, площадь 157,7 м2; этаж №1, площадь 117,5 м2; этаж №3, площадь 834,6 м2; этаж №5, площадь 859,5 м2; этаж №6, площадь...
    • 3 002 м²
    • 6 этажей
    126 600 000 Р
    Агент
    +7 (916) Показать номер
    Агентство
    Телус
    Посмотреть контакты

    Не нашли подходящего объявления?

    Оставьте заявку, и наши риэлторы подберут торговое помещение в районе Белгорода

    (0)