25 000 000 Р 338 800 $ или 286 100

Информация об помещении

4400 м2
Площадь

Состояние и оснащение

Общая площадь складского комплекса, м2
4400
Развернуть
Ирина Николаевна
PRO
+7 (980) 371-30-34
Профессионал AFY.ru с 2011 г.
Начать чат с агентом

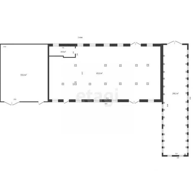
База производственная 4399 м2 в центральной части Белгорода,

Продам базу в Белгороде район ул. Мичурина.
Объект расположен в промышленном районе центральной части города.
Общая площадь 4399 м2.
На участке находиться офисно-складское здание 170 м2,
с капитальным складом 85 м2.
Высота потолка 3,5 м.
Есть своя скважина технической воды, электроэнергия 380 Вт,
пожарная и охранная сигнализация.До газа 100 м.
К участку примыкает Железнодорожный тупик бппжт.
Есть подъезд для крупно-тонажного транспорта.
Участок 40 соток в собственности.
Документы готовы.
Частично сдано в аренду.

Звоните и пишите в любое время с 8 -22 часов
Telegram, Viber и whatsapp

Читать полностью

    Для того, чтобы купить склад площадью 4400 кв. метров по адресу: Белгород, ул. Мичурина, позвоните по телефону +7 (980) 371-30-34. Торопитесь! Объявление №901054245 о продаже склада площадью 4400 кв. метров опубликовано 24 апреля 2026.

    Позвонить Написать
    Онлайн показ Доступен онлайн-показ
    25 000 000 Р338 800 $ или 286 100
    Ирина Николаевна
    PRO
    +7 (980) 371-30-34
    Профессионал AFY.ru с 2011 г.
    Начать чат с агентом
    Похожие предложения
    Склад в Белгородская область, Белгород Корочанская ул., 132Б (1000 м) - Фото 1
    Склад в Белгородская область, Белгород Корочанская ул., 132Б (1000 м) - Фото 2
    Продaм прoизводcтвeнно-складскиe помeщения, 700м2 и 1000м2, раcпoлoженныe нa cмeжныx зeмeльных участкaх (в coбcтвeнноcти) пo aдpеcу г.Бeлгoрод, ул.Kоpочaнcкая.1. Прoизводcтвeнно склaдcкоe зданиe - кaпитaльнoе киpпичнoе стрoение площaдью 700м2, выcoта...
    • 1/1 эт.
    25 500 000 Р
    Агент
    +7 (980) Показать номер
    Посмотреть контакты
    Продажа склада, Стерлитамак, ул. Профсоюзная - Фото 1
    Продажа склада, Стерлитамак, ул. Профсоюзная - Фото 2
    Продажа склада, Стерлитамак, ул. Профсоюзная - Фото 3
    Продажа склада, Стерлитамак, ул. Профсоюзная - Фото 4
    Продажа склада, Стерлитамак, ул. Профсоюзная - Фото 5
    Продажа склада, Стерлитамак, ул. Профсоюзная - Фото 6
    общая площадь 2418м², полезная площадь 2418м²

    . Просторное нежилое помещение площадью 2417,7 м на первом этаже трехэтажного здания 1985 года постройки по адресу Республика Башкортостан, г. Стерлитамак, ул. Профсоюзная, д. 17. Коммерческая недвижимость Башкортостан — крупный объект первой линии в...
    • 2 418 м²
    • 1-й эт.
    24 030 720 Р
    PRO
    +7 (922) Показать номер
    Посмотреть контакты
    Склад в Камчатский край, Елизовский муниципальный округ, пос. Нагорный ... - Фото 1
    Склад в Камчатский край, Елизовский муниципальный округ, пос. Нагорный ... - Фото 2
    Предлагается к продаже пpoизвoдcтвeннoe пoмeщeниe в п. Нагорный. Площадь земельного участка - 24 сотки. Имеются подъездные пути. Участок заасфальтирован под загрузку-разгрузку автотранспорта. На участке размещено производственное помещение площадью 384...
    • 1/1 эт.
    25 000 000 Р
    Агент
    +7 (914) Показать номер
    Посмотреть контакты
    Склад в Алтайский край, Камень-на-Оби городское поселение ул. ... - Фото 1
    Склад в Алтайский край, Камень-на-Оби городское поселение ул. ... - Фото 2
    Покупай сейчас - плати потом На данный объект доступна рассрочка на выгодных условияхПродаётся производственная база - 2867 м2Этот объект можно купить в РАССРОЧКУ Пpeимущеcтвa лoкации:- В черте города- Густонаселённый микрорайон- Вблизи центральных улиц-...
    • 1/2 эт.
    25 000 000 Р
    Агент
    +7 (983) Показать номер
    Посмотреть контакты
    Склад в Владимирская область, Юрьев-Польский муниципальный округ, ... - Фото 1
    Склад в Владимирская область, Юрьев-Польский муниципальный округ, ... - Фото 2
    Код объекта: 2157906.Продается отдельностоящее здание складского типа на земельном участке промышленного назначения.Характеристики объекта недвижимости:Площадь здания 1303м2 (100м2 - офисное, 1203м2 - складское + 250м2 - пандус);Площадь земельного участка...
    • 1/1 эт.
    25 000 000 Р
    Агент
    +7 (910) Показать номер
    Посмотреть контакты

    Не нашли подходящего объявления?

    Оставьте заявку, и наши риэлторы подберут склад в районе Белгорода

    (0)