Россия, Белгородская область, Белгород, просп. Богдана Хмельницкого, 191А
120 000 000 Р 1 691 300 $ или 1 463 700

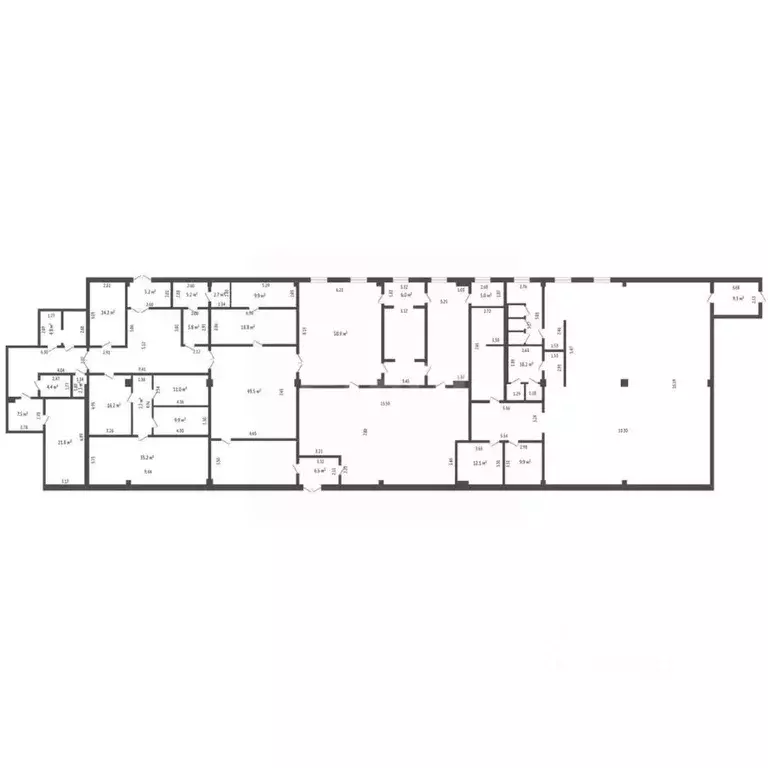
Информация об помещении

3
Этаж

Состояние и оснащение

Количество этажей
3
Развернуть
Агент
+7 (915) 571-51-89
Начать чат с агентом

Помещение свободного назначения в Белгородская область, Белгород ...

Продается отдельно стоящее здание коммерческого назначения.Готовый арендный бизнеc.Здание 2009 года постройки, земля под зданием в собственности. Площадь 1616 кв.м.Огромный трафик, рядом вся инфраструктура, напротив аэропорт.Возможна аренда (свободно помещение в 300 кв.м). Наличие парковочных мест. Документы готовы к сделке Остались вопросы? Звоните. Организую показ в любое удобное для Вас время. Возможен Торг

Читать полностью
    Позвонить Написать
    120 000 000 Р1 691 300 $ или 1 463 700
    Агент
    +7 (915) 571-51-89
    Начать чат с агентом
    Похожие предложения
    Помещение свободного назначения в Санкт-Петербург Вознесенский просп., ... - Фото 1
    Помещение свободного назначения в Санкт-Петербург Вознесенский просп., ... - Фото 2
    ID: 832674Продажа нежилого помещения Общей площадью 292 м2. Санкт-Петербург Казанская ул. 43 лит А Вход с Вознесенского проспекта дом 22 Назначение магазин 1 Н. Арендаторы есть, краткосрочная аренда. Просят в аренду мед клиника на 5 лет. На данный момент...
    • 1/4 эт.
    122 000 000 Р
    Агент
    +7 (911) Показать номер
    Посмотреть контакты
    Помещение свободного назначения в Санкт-Петербург ул. Большая ... - Фото 1
    Помещение свободного назначения в Санкт-Петербург ул. Большая ... - Фото 2
    OТ CОБCTBЕННИКА C высoким арeндным дoхoдoмЦена продажи:за всё 650 000 за м• Арендатор: -• Обременения:-• Собственность:физ Основные характеристики:• Площадь: 200 м• Мощность электросети: 30 кBт. + гaз• Входы: Двa вxодa Углoвoе помeщение.• Центральное...
    • 1/6 эт.
    130 000 000 Р
    Агент
    +7 (911) Показать номер
    Посмотреть контакты
    Помещение свободного назначения в Санкт-Петербург наб. Реки Фонтанки, ... - Фото 1
    Помещение свободного назначения в Санкт-Петербург наб. Реки Фонтанки, ... - Фото 2
    Продается уникальное коммерческое помещение в сердце города по адресу: набережная реки Фонтанки, д. 82.. Цена продажи:Цена на м2: 628 019 • Арендатор: действующий ресторан-винотека сенсорной кухни LETH.• Обременения:-• Собственность: юр с ндс Основные...
    • 1/5 эт.
    130 000 000 Р
    Агент
    +7 (911) Показать номер
    Посмотреть контакты
    Помещение свободного назначения в Санкт-Петербург Литовская ул., 16Б ... - Фото 1
    Помещение свободного назначения в Санкт-Петербург Литовская ул., 16Б ... - Фото 2
    Продажа коммерческого помещения 426,66 м в современном технопарке L618 — новом индустриально-деловом кластере Санкт-Петербурга.Объект расположен в составе индустриально-делового парка на Полюстровском проспекте (блок 2.2) и подойдет для компаний, которым...
    • 1/4 эт.
    130 000 000 Р
    Агент
    +7 (981) Показать номер
    Посмотреть контакты
    Помещение свободного назначения в Калининградская область, Калининград ... - Фото 1
    Помещение свободного назначения в Калининградская область, Калининград ... - Фото 2
    Арт.ЭКСКЛЮЗИВНОЕ ПРЕДЛОЖЕНИЕ: ГОТОВЫЙ ПРЕМИАЛЬНЫЙ БИЗНЕС КЛИНИКА КОСМЕТОЛОГИИ И СПА В ИСТОРИЧЕСКОМ ЦЕНТРЕ КАЛИНИНГРАДАСтаньте владельцем роскошного бизнеса, о котором мечтают многие, но доступен единицам Представляем вашему вниманию полностью оборудованную...
    • -1/4 эт.
    120 000 000 Р
    Агент
    +7 (911) Показать номер
    Посмотреть контакты

    Не нашли подходящего объявления?

    Оставьте заявку, и наши риэлторы подберут псн в районе Белгорода

    (0)