3 399 000 Р 44 720 $ или 37 650

Информация об помещении

2
Этаж

Состояние и оснащение

Количество этажей
8
Развернуть
Агент
+7 (910) 737-46-48
Начать чат с агентом

Помещение свободного назначения в Белгородская область, Белгород ...

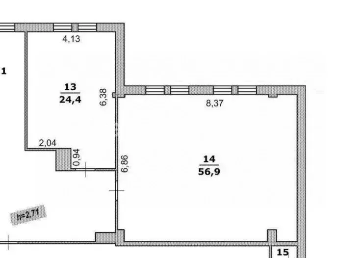
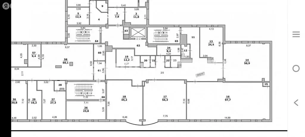
Арт.ВАМ НУЖНО ЭФФЕКТИВНОЕ РАБОЧЕЕ ПРОСТРАНСТВО?ИЩЕТЕ УЖЕ ОФОРМЛЕННЫЙ ГОТОВЫЙ ОФИС?НЕ УПУСТИТЕ ОТЛИЧНОЕ ПРЕДЛОЖЕНИЕ В ИСТОРИЧЕСКОМ ЦЕНТРЕ БЕЛГОРОДА (в 150 метрах от Привокзальной площади) предлагаются к покупке нежилые помещения кабинетного типа с панорамным остеклением ОФИСНЫЕ ПОМЕЩЕНИЯ 17 и 18 на поэтажном плане ( 56,3 кв.м., 45,2 кв.м. и есть возможность объединения в офис 101,5 кв.м. при необходимости), 13 и 14, (24,4 кв.м. и 56,9 кв.м. с возможностью объединения в офис 81,3 кв.м. при необходимости)СОВРЕМЕННЫЙ БИЗНЕС ЦЕНТР по адресу Гражданский проспект, д.4 занимает три этажа в элитном многоквартирном жилом доме Здание построено в 2008 году и расположено на первой линии.КОМФОРТАБЕЛЬНЫЕ ОФИСЫ САМЫХ ВОСТРЕБОВАННЫХ ПЛОЩАДЕЙ (45, 2 кв.м., 56,3 кв.м., 56,9 кв.м. и 24,4 кв.м. ) Общая площадь продаваемых объектов ( 182,8 кв.м.) Рассмотрим различные варианты.ВОЗМОЖНОСТЬ РАЗБИТЬ (зонировать) ИЛИ ОБЪЕДИНИТЬ эти помещения.БЛАГОПРИЯТНОЕ СОСЕДСТВО с крупными компаниями и многолетними арендаторами ( Страховой Дом ВСК, Уральский банк реконструкции и развития, центр света ЭДИСОН и др.)УДОБНАЯ ТРАНСПОРТНАЯ РАЗВЯЗКА, место, где пересекаются все деловые потокиВЫСОКИЙ АВТОМОБИЛЬНЫЙ И ПЕШЕХОДНЫЙ ТРАФИКУНИКАЛЬНАЯ ЛОКАЦИЯ в самом сердце столицы региона, в двух шагах от административных и культурных учреждений ТОРОПИТЕСЬ Ведь все помещения офисного центра сданы в аренду, а в продаже остались только эти площади РАБОТАЙТЕ С КОМФОРТОМ, ЗАРАБАТЫВАЙТЕ С УДОВОЛЬСТВИЕМ ДОБРО ПОЖАЛОВАТЬ В ВАШ НОВЫЙ ОФИС объект в нашей базе

Читать полностью
    Позвонить Написать
    3 399 000 Р44 720 $ или 37 650
    Агент
    +7 (910) 737-46-48
    Начать чат с агентом
    Похожие предложения
    Помещение свободного назначения (46 м) - Фото 1
    Помещение свободного назначения (46 м) - Фото 2
    Арт.ВАМ НУЖНО ЭФФЕКТИВНОЕ РАБОЧЕЕ ПРОСТРАНСТВО? ИЩЕТЕ УЖЕ ОФОРМЛЕННЫЙ ГОТОВЫЙ ОФИС? НЕ УПУСТИТЕ ОТЛИЧНОЕ ПРЕДЛОЖЕНИЕ В ИСТОРИЧЕСКОМ ЦЕНТРЕ БЕЛГОРОДА (в 150 метрах от Привокзальной площади) предлагаются к покупке нежилые помещения кабинетного типа с...
    • 2/8 эт.
    3 399 000 Р
    Агент
    +7 (966) Показать номер
    Посмотреть контакты
    Помещение свободного назначения в Белгородская область, Белгород ... - Фото 1
    Помещение свободного назначения в Белгородская область, Белгород ... - Фото 2
    Нежилое помещение под ЛЮБОЙ ВИД ДЕЯТЕЛЬНОСТИ район Гриневки.Отличное решение для адвоката или нотариуса, а также для пвз Яндекс- Маркет.Помещение общей площадью 35 квадратных метров расположено на первом этаже 12-этажного блочного жилого дома 2008 г....
    • 1/12 эт.
    3 300 000 Р
    Агент
    +7 (994) Показать номер
    Посмотреть контакты
    Помещение свободного назначения в Белгородская область, Новый Оскол ... - Фото 1
    Помещение свободного назначения в Белгородская область, Новый Оскол ... - Фото 2
    ОТКРОЙТЕ СВОЙ БИЗНЕС УЖЕ СЕГОДНЯ МИНИМАЛЬНАЯ ЦЕНА ЗА КВАДРАТНЫЙ МЕТР Продаем помещение свободного назначения в Новом Осколе Общая площадь 190 кв. м. на участке две сотки. Капитальное блочное здание в 2 этажа с утеплением по фасаду, кровля металлочерепица,...
    • 1/2 эт.
    3 500 000 Р
    Агент
    +7 (980) Показать номер
    Посмотреть контакты
    Помещение свободного назначения в Белгородская область, Борисовский ... - Фото 1
    Помещение свободного назначения в Белгородская область, Борисовский ... - Фото 2
    Предлагается к покупке нежилое здание, общей площадью 364,8 квм., расположенное на земельном участке 22,5 сот. Земли населенных пунктов предназначенных для эксплуатации зданий и сооружений. Отопление- газовый котел, вода-2 артезианские скважины,.электричество...
    • 1/1 эт.
    3 500 000 Р
    Агент
    +7 (980) Показать номер
    Посмотреть контакты
    Помещение свободного назначения в Белгородская область, Валуйский ... - Фото 1
    Помещение свободного назначения в Белгородская область, Валуйский ... - Фото 2
    Коммерческая недвижимость расположена в село Шелаево Валуйского района Белгородской области.Общая площадь здания 29,1 кв.м. Год постройки 1987 г. Участок 94 кв.м. Шесть месяцев назад сделан капитальный ремонт. Утеплена и заменена крыша. Поменяна проводка...
    • 1/1 эт.
    3 500 000 Р
    Агент
    +7 (910) Показать номер
    Посмотреть контакты

    Не нашли подходящего объявления?

    Оставьте заявку, и наши риэлторы подберут псн в районе Белгорода

    (0)