260 000 000 Р 3 294 500 $ или 2 845 700

Информация об помещении

1
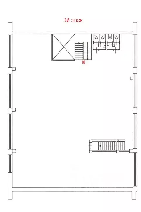
Этаж

Состояние и оснащение

Количество этажей
1
Развернуть
Агент
+7 (994) 082-44-97
Начать чат с агентом

Помещение свободного назначения в Белгородская область, Белгород ул. ...

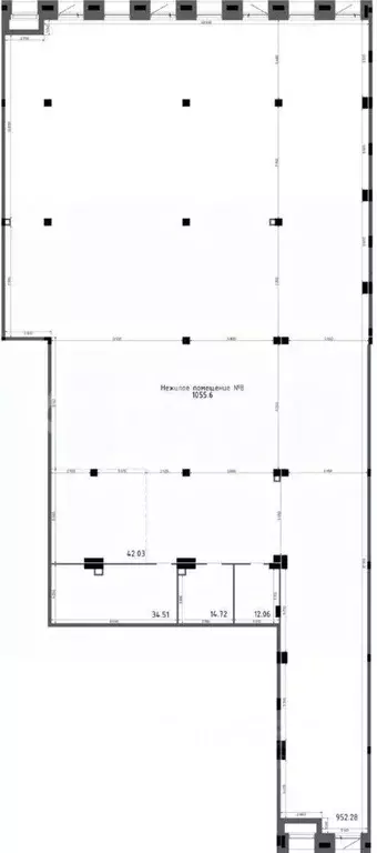
Предлагаем вам к покупке базу логистики площадью 4,8 ГаЗемельный участок общей площадью 48 143квм. Электрическая мощность 115кВт, Трансформаторная подстанция на территории Также на участке расположены АБК и ремонтные цеха, общей площадью 4450квмНа всей территории земельного участка твердое покрытие, половина асфальтирована. База расположена в промышленной зоне города На территории расположены АБК и ремонтные цеха, общей площадью 4450квмУдобная транспортная развязка в любую сторону светаАрт.

Читать полностью
    Позвонить Написать
    260 000 000 Р3 294 500 $ или 2 845 700
    Агент
    +7 (994) 082-44-97
    Начать чат с агентом
    Похожие предложения
    Помещение свободного назначения в Москва Дмитровское ш., 81 (1182 м) - Фото 1
    Помещение свободного назначения в Москва Дмитровское ш., 81 (1182 м) - Фото 2
    ОбъектПредлагаю в покупку многоуровневое пространство площадью 1182,3 м в действующем бизнес-центре класса B+. в САО г. МосквыУдобная транспортная доступность: 2 минуты пешком до м. Селигерская , 7 минут до МЦК Окружная , 10 минут до МКАД и 15 минут...
    • 1/3 эт.
    260 000 000 Р
    Агент
    +7 (915) Показать номер
    Посмотреть контакты
    Помещение свободного назначения в Москва Дмитровское ш., 81 (1182 м) - Фото 1
    Помещение свободного назначения в Москва Дмитровское ш., 81 (1182 м) - Фото 2
    Бизнес центр расположен вблизи транспортных магистралей, таких как Дмитровское шоссе и других. Шаговая доступность от метро. Возможность аренды парковочных мест. Развитая инфраструктура.Налоговая: 43. Лифты: Есть. Вентиляция: Приточно-вытяжная. Кондиционирование:...
    • 1/6 эт.
    260 000 000 Р
    Агент
    +7 (933) Показать номер
    Посмотреть контакты
    Продажа ПСН, Кубинка, Одинцовский район, ул. 59 Мехколонна - Фото 1
    Продажа ПСН, Кубинка, Одинцовский район, ул. 59 Мехколонна - Фото 2
    Продажа ПСН, Кубинка, Одинцовский район, ул. 59 Мехколонна - Фото 3
    общая площадь 3500м², полезная площадь 3500м²

    Арт. Производственно-складская база общей площадью 3500 кв. м. Основное здание 2020 кв. м..(1352 кв. м.- отапливаемые с кран балкой на 3 и 5 тонн, 560 кв. м.-холодные с кран-балкой на 2 тонны, высота потолков-9 м., полы-антипыль, офис-108 кв.м., сварочные...
    • 3 500 м²
    • 1-й эт.
    270 000 000 Р
    PRO
    +7 (495) Показать номер
    Агентство
    ИП Захарова
    Посмотреть контакты
    Помещение свободного назначения в Татарстан, Казань ул. Дулата Али, 4 ... - Фото 1
    Помещение свободного назначения в Татарстан, Казань ул. Дулата Али, 4 ... - Фото 2
    Характеристики:- 1 линия- Отдельная входная группа- Парковка отсутствует- Доступ 24/7- ХВС- Требует ремонта- Стрит ритейл- Без лифта- С окнамиДополнительная информация:Помещение свободного назначения. В новом районе города. Покупка возможна с НДС. Возможна...
    • 1/1 эт.
    255 000 000 Р
    Агент
    +7 (917) Показать номер
    Посмотреть контакты
    Помещение свободного назначения в Пермский край, Пермь Усольская ул., ... - Фото 1
    Помещение свободного назначения в Пермский край, Пермь Усольская ул., ... - Фото 2
    Уникальное инвестиционное предложение Месторасположение 10 минут от центра города Перми. Многофункциональная производственная база - склад на земельном участке площадью 70 соток. Земля в собственности. Ограничений и обременений нет. Территория благоустроенная....
    • 1/3 эт.
    250 000 000 Р
    Агент
    +7 (912) Показать номер
    Посмотреть контакты

    Не нашли подходящего объявления?

    Оставьте заявку, и наши риэлторы подберут псн в районе Белгорода

    (0)