150 000 000 Р 1 867 200 $ или 1 617 600

Информация о помещении и здании

1
Этаж
5
Этажность
Развернуть
Агент
+7 (919) 430-68-66
Начать чат с агентом

Офис в Белгородская область, Белгород Харьковский пер., 36А (2022 м)

Продам, помещение свободного назначения Помещение расположено на 2-х этажах 5-ти этажного центра. Площадь помещений на каждом этаже составляет 1011 кв.м., общая на 2-х этажах 2042 кв.м. Здание 2009 года, монолитное.Объект расположен на склоне Харьковской горы, в престижном районе города Белгорода, ЖК Владимирский, с видом на центральную и западную часть города.Местоположение:Здание расположено на 1-ой линии, подъезд осуществляется со стороны ул. Костюкова и проспекта Ватутина (с Нового моста). Имеется собственная парковка на 13 машиномест, а также охраняемая парковка на 72 машиноместа с возможностью подъезда грузового транспорта.О помещении:- помещения, расположены на 2-х этажах центра, каждый из которых составляет 1012 м2, имеют свободную планировку, общая площадь 2024 кв.м.; - каждый из предлагаемых этажей имеет 3 отдельных входа и пассажирский лифт; - высота потолков 4,0 м.;-помещения имеют окна с панорамным видом на город;-на каждом этаже имеются санитарные узлы , места для приема пищи с подведенной водой и выводом под канализацию;-на каждом этаже по периметру расположены отдельные кабинеты, разной площади, основной хол свободной планировки с большими окнами и панорамным видом на город, окна оклеены бронепленкой;-в помещениях сделан качественный ремонт, помещения готовы к эксплуатации, сделана мощная электропроводка; - парковка для посетителей и персонала - 13 машиномест, закреплённых за 1-м и 2-м этажами; - удобные поля для размещения накрышной наружной рекламы с широким углом обзора; - своя УК с круглосуточной охраной.Покупка данного объекта-хорошее вложение капитала .Помещения можно использовать для различных видов бизнеса как своего, так и предоставлять в аренду, ( арендная плата ориентировочно составляет за 1 кв.м.). Воспользуйтесь прекрасной возможностью прямо сейчас Звоните, организуем оперативный показ, ответим на все ваши вопросы.Документы в порядке. Звоните, работаем без выходных.Номер объекта: 1/539414/16811

Читать полностью
    Позвонить Написать
    150 000 000 Р1 867 200 $ или 1 617 600
    Агент
    +7 (919) 430-68-66
    Начать чат с агентом
    Похожие предложения
    Офис в Московская область, Химки Ленинградская ул., с25 (554 м) - Фото 1
    Офис в Московская область, Химки Ленинградская ул., с25 (554 м) - Фото 2
    11-й этаж, всего 20 этажей

    Помещение свободной планировки, под офисы, панорамные окна, с отделкой, расположено на 11 этаже в Бизнес Центре Himki ONE , с прекрасными панорамными окнами, 1,5 км от МКАД по Ленинградскому шоссе. Удобная транспортная доступность. Имеются как наземные,...
    • 11/20 эт.
    141 853 694 Р
    Агент
    +7 (984) Показать номер
    Посмотреть контакты
    Офис в Санкт-Петербург Академическое муниципальный округ,  (597 м) - Фото 1
    Офис в Санкт-Петербург Академическое муниципальный округ,  (597 м) - Фото 2
    5-й этаж, всего 5 этажей

    Офисное помещение 596.8 кв. м в бизнес-центре Smart Светлановский . Прямая продажа, без комиссии. Объект на стадии активного строительства, готовность ко въезду уточняется по запросу. Район: Калининский. Характеристики:- Класс: B+; - Код налоговой:...
    • 5/5 эт.
    153 170 470 Р
    Агент
    +7 (981) Показать номер
    Посмотреть контакты
    Офис в Санкт-Петербург, Санкт-Петербург, Красное Село ул. ... - Фото 1
    Офис в Санкт-Петербург, Санкт-Петербург, Красное Село ул. ... - Фото 2
    1-й этаж, всего 3 этажа

    Офисное помещение 552.4 кв. м в бизнес-центре Smart Восстановления . Прямая продажа, без комиссии. Объект на стадии активного строительства, готовность ко въезду уточняется по запросу. Район: Красносельский. Характеристики:- Класс: B+; - Код налоговой:...
    • 1/3 эт.
    142 632 010 Р
    Агент
    +7 (981) Показать номер
    Посмотреть контакты
    Офис в Нижегородская область, Нижний Новгород Деловая ул., 17 (2007 м) - Фото 1
    Офис в Нижегородская область, Нижний Новгород Деловая ул., 17 (2007 м) - Фото 2
    1-й этаж, всего 1 этаж

    Предлагается к продаже отдельностоящее офисное здание общей площадью 2007 м2, расположенное на ул. Деловой. Здание 1977 года постройки, материал стен - кирпич.Три этажа и подвал. На этажах коридорно-кабинетная система, сан.узлы. Подвал поделен на небольшие...
    • 1/1 эт.
    140 490 000 Р
    Агент
    +7 (934) Показать номер
    Посмотреть контакты
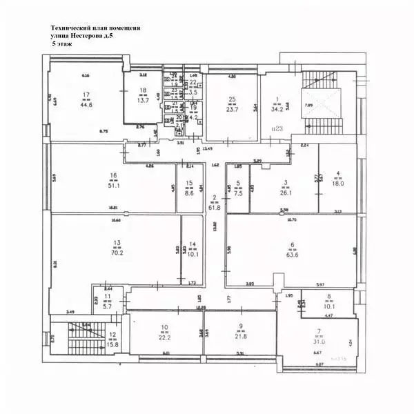
    Офис в Нижегородская область, Нижний Новгород ул. Нестерова, 5 (1007 ... - Фото 1
    Офис в Нижегородская область, Нижний Новгород ул. Нестерова, 5 (1007 ... - Фото 2
    5-й этаж, всего 5 этажей

    Офисные площади. Нижний Новгород. Нижегородский район. Улица Нестерова. Офис расположен в нежилом офисном здании. Общая площадь 1006,8 кв.м. Офис расположен на 2-х этажах 5-й и 6-ой. Пятый этаж площадью 504.5 кв.м. Состоит из 9-ти кабинетов различной...
    • 5/5 эт.
    140 952 000 Р
    Агент
    +7 (931) Показать номер
    Посмотреть контакты

    Не нашли подходящего объявления?

    Оставьте заявку, и наши риэлторы подберут офис в районе Белгорода

    (0)