Реализация объекта недвижимости приостановлена

Информация о помещении и здании

1
Этаж
3
Этажность
Развернуть

Офис в Белгородская область, Белгород Салют мкр, ул. Дегтярева, 10В ...

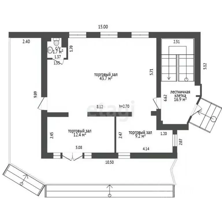
ВНИМАНИЕ В продаже коммерческое помещение площадью 740 кв.м.Отдельно стоящее 4-этажное здание с цокольным этажом. Земельный участок и здание оформлены в собственность. За зданием 4 сотки земли (огорожены), которые можно использовать для ваших нужд. На всех этажах есть с/у. Второй, третий, четвертый этажи идентичны по планировке. Все коммуникации подведены. Канализация центральная. Пожарная сигнализация установлена. Индивидуальные счетчики на все помещения. На крыше установлены 3 антенны ( Мобайл, Билайн и Мегафон), каждый оператор связи платит 17000 ежемесячно. В ближайшее время появится еще МТС с оплатой 20000. За электроэнергию платят дополнительно. Обратите внимание на местоположение. Большой трафик обеспечивается за счет близкого расположения фитнес-центра Formulapro, общеобразовательной школы, магазинов, салонов и нового ЖК Малахит . Возможность увидеть собственными глазами и убедиться в качестве предлагаемого объекта вы можете, предварительно позвонив по указанному номеру телефона. Возможен разумный торг. Юридическое сопровождение сделки - это гарантия качества и безопасности Звоните. Договоримся о показе. Код пользователя: 161827Номер в базе: 7598629

Читать полностью

    Реализация объекта недвижимости приостановлена

    Не нашли подходящего объявления?

    Оставьте заявку, и наши риэлторы подберут офис в районе Белгорода

    (0)