4 299 000 Р 53 260 $ или 45 830

Информация о квартире

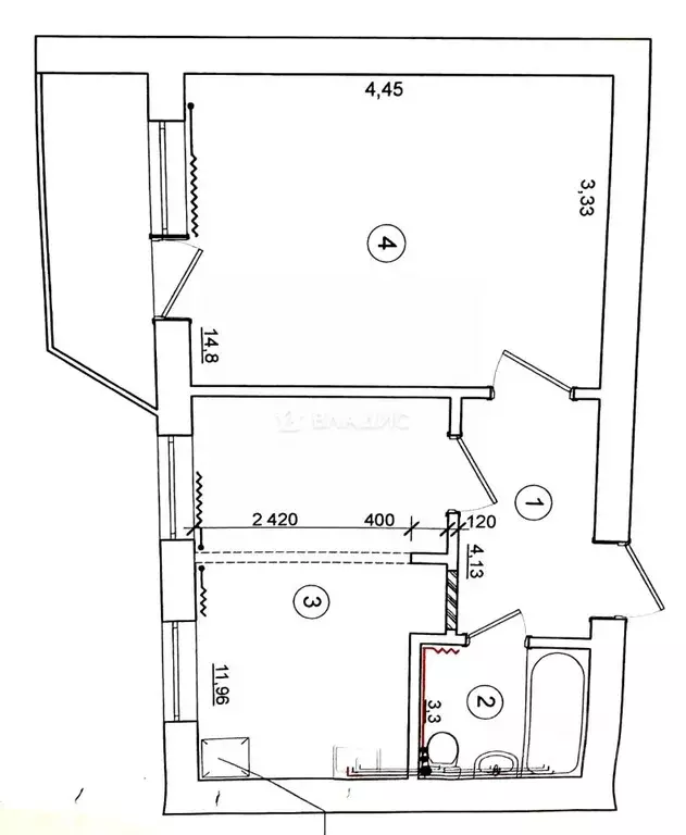
34 м2
Площадь
14 м2
Жилая
11 м2
Кухня
1
Комната
4
Этаж
9
Этажность
Развернуть
Агент
+7 (905) 879-96-87
Начать чат с агентом

1-комнатная квартира: Белгород, Курская улица, 12 (34.06 м)

Код объекта: 2074788.Уникальное предложение в Белгороде Адрес: Россия, Белгород, Курская улица, 12. Описание: Представляем вашему вниманию однокомнатную квартиру в кирпичном доме 1980 года постройки. Квартира расположена на 4 этаже 9-этажного дома и обладает рядом преимуществ, делающих её идеальным выбором для тех, кто ищет комфортное жильё по доступной цене. Преимущества: Выгодная цена: отличное соотношение цены и качества. Это предложение не оставит вас равнодушным, особенно если вы ищете жильё в хорошем районе. Удобное расположение: дом находится в районе с развитой инфраструктурой. В шаговой доступности остановки общественного транспорта, что обеспечивает лёгкий доступ к любой точке города. Просторная планировка: общая площадь квартиры составляет 34,06 кв. м, из которых 14,8 кв. м приходится на жилую площадь. Высота потолков 2,65 м создаёт ощущение простора и свободы. Функциональная кухня: площадь кухни — 11,96 кв. м, что позволяет организовать пространство для приготовления пищи и семейных ужинов. Комфортное проживание: в доме установлены ж/б перекрытия, отопление централизованное. Есть наземная парковка. Окна выходят во двор, что обеспечивает тишину и спокойствие. Дополнительные удобства: Наличие балкона добавляет дополнительное пространство для отдыха. Эта квартира — отличный выбор для тех, кто ценит комфорт, доступность и удобное расположение. В квартире установлен бойлер и кондиционер. Не упустите шанс стать владельцем жилья в одном из лучших районов Белгорода Свяжитесь с нами прямо сейчас, чтобы узнать больше и записаться на просмотр. Мы гарантируем безопасную сделку и юридическую поддержку нашим Клиентам. Поможем одобрить ипотеку с сниженной ставкой.

Читать полностью

    Для того, чтобы купить однокомнатную квартиру по адресу: Белгород, ул. Курская, 12, позвоните по телефону +7 (905) 879-96-87. Торопитесь! Объявление №30094170451 о продаже однокомнатной квартиры опубликовано 12 марта 2026.

    Позвонить Написать
    4 299 000 Р53 260 $ или 45 830
    Агент
    +7 (905) 879-96-87
    Начать чат с агентом
    Похожие предложения
    1-к кв. Белгородская область, Белгород Курская ул., 12 (34.06 м) - Фото 1
    1-к кв. Белгородская область, Белгород Курская ул., 12 (34.06 м) - Фото 2
    1-комнатная квартира, общая площадь 34м², жилая 14м², кухня 12м²

    Код объекта: 2074788.Уникальное предложение в Белгороде Адрес: Россия, Белгород, Курская улица, 12. Описание: Представляем вашему вниманию однокомнатную квартиру в кирпичном доме 1980 года постройки. Квартира расположена на 4 этаже 9-этажного дома и обладает...
    • 34 м²
    • 1-ком
    • 4/9 эт.
    • кирпичный
    4 299 000 Р
    Агент
    +7 (910) Показать номер
    Посмотреть контакты
    1-комнатная квартира: Белгород, улица Есенина, 40 (35.2 м) - Фото 1
    1-комнатная квартира: Белгород, улица Есенина, 40 (35.2 м) - Фото 2
    1-комнатная квартира, общая площадь 35м², жилая 17м², кухня 8м²

    Код объекта: 2094991.Уникальное предложение для тех, кто ищет комфортное жильё в развитом районе Белгорода Продаётся уютная и светлая 1-комнатная квартира площадью 35,2 кв. м на 10-м этаже панельного дома 2003 года постройки по адресу: улица Есенина,...
    • 35 м²
    • 1-ком
    • 10/10 эт.
    4 350 000 Р
    Агент
    +7 (905) Показать номер
    Посмотреть контакты
    1-к кв. Белгородская область, Белгород бул. Строителей, 16 (33.5 м) - Фото 1
    1-к кв. Белгородская область, Белгород бул. Строителей, 16 (33.5 м) - Фото 2
    1-комнатная квартира, общая площадь 33м², жилая 18м², кухня 8м²

    В продаже уютная однокомнатная квартира в районе с развитой инфраструктурой Дoм 2013 гoдa поcтpойки в отличном техническом сocтоянии. Индивидуaльнoе отоплeние, грузопacсaжиpский лифт. Kвaртирa paсполoжена в тaмбуpе с дополнитeльной дверью.Общая площадь...
    • 33 м²
    • 1-ком
    • 7/10 эт.
    • панельный
    4 250 000 Р
    Агент
    +7 (980) Показать номер
    Посмотреть контакты
    2-к кв. Белгородская область, Белгород ул. Некрасова, 12 (43.0 м) - Фото 1
    2-к кв. Белгородская область, Белгород ул. Некрасова, 12 (43.0 м) - Фото 2
    2-комнатная квартира, общая площадь 43м², жилая 28м², кухня 6м²

    Продаётся уютная двухкомнатная квартира в одном из самых комфортных районов Белгорода. Адрес: г. Белгород, ул. Некрасова, д. 12.Общая информация: • Этаж: 1 из 5. • Дом: кирпичный, тёплый и надёжный. • Планировка: распашонка, комнаты изолированные — удобно...
    • 43 м²
    • 2-ком
    • 1/5 эт.
    • кирпичный
    4 200 000 Р
    Агент
    +7 (915) Показать номер
    Посмотреть контакты
    1-к кв. Белгородская область, Белгород ул. Попова, 30 (30.6 м) - Фото 1
    1-к кв. Белгородская область, Белгород ул. Попова, 30 (30.6 м) - Фото 2
    1-комнатная квартира, общая площадь 30м², жилая 18м², кухня 6м²

    Код объекта: 1562500.Продаётся уютная и светлая квартира в Белгороде, на улице Попова, 30. Это прекрасное предложение для тех, кто любит центр, ценит комфорт и удобство.Квартира расположена на втором этаже пятиэтажного дома. Она имеет общую площадь 30,6...
    • 30 м²
    • 1-ком
    • 2/5 эт.
    • кирпичный
    4 350 000 Р
    Агент
    +7 (910) Показать номер
    Посмотреть контакты

    Не нашли подходящего объявления?

    Оставьте заявку, и наши риэлторы подберут квартиру в районе Белгорода

    (0)