5 700 000 Р 73 840 $ или 62 260

Информация о квартире

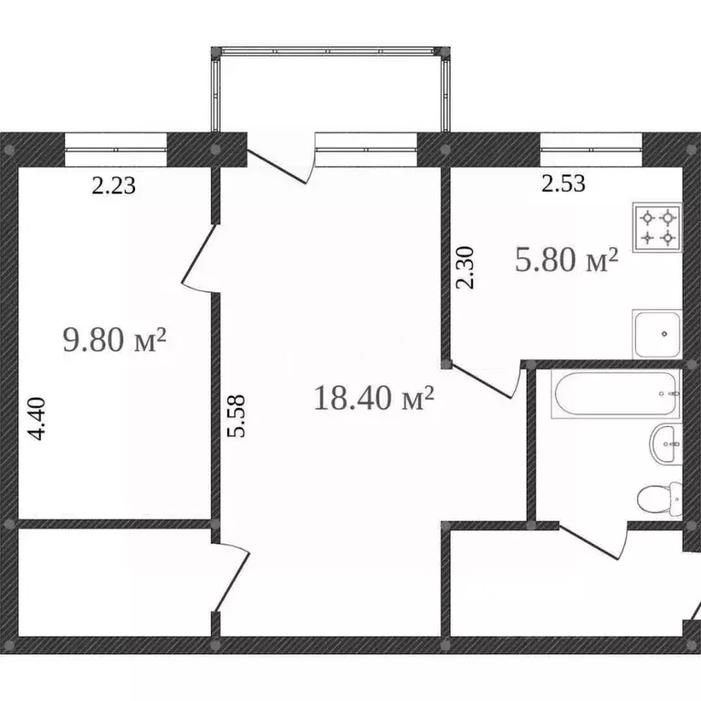
44 м2
Площадь
28 м2
Жилая
5 м2
Кухня
2
Комнаты
2
Этаж
5
Этажность

Дополнительная информация

Тип дома
кирпичный
Развернуть
Агент
+7 (910) 023-02-55
Начать чат с агентом

2-к кв. Белгородская область, Белгород Радуга мкр, ул. Шершнева, 30 ...

Код объекта: 2004225.Уютная двухкомнатная квартира в Белгороде по адресу: улица Шершнева, 30 — идеальный выбор для тех, кто ценит комфорт и доступность. Расположенная в микрорайоне Радуга, эта квартира предлагает не только удобное проживание, но и развитую инфраструктуру вокруг.Всего 44,5 кв. м общей площади, включая просторную жилую зону в 28,7 кв. м и уютную кухню в 5,8 кв. м, делают это предложение привлекательным для студентов, молодых семей и пар без детей. Высота потолков в 2,6 м добавляет пространству воздуха и свободы.Квартира находится на втором этаже пятиэтажного кирпичного дома 1962 года постройки. Наличие наземной парковки и балкона делает проживание ещё более удобным.Расположение квартиры особенно выгодно: близость к общественному транспорту позволит быстро добраться до любой точки города. В радиусе 1000 метров от дома находятся магазины, школы, детские сады и поликлиники, что делает это предложение идеальным для семей с детьми и пожилых пар.Не упустите шанс стать владельцем уютной квартиры в одном из самых удобных районов Белгорода. Звоните нам прямо сейчас, чтобы узнать больше и записаться на просмотр.Мы гарантируем безопасную сделку и юридическую поддержку нашим Клиентам. Поможем одобрить ипотеку с сниженной ставкой.

Читать полностью

    Для того, чтобы купить двухкомнатную квартиру по адресу: Белгород, ул. Шершнева, 30, позвоните по телефону +7 (910) 023-02-55. Торопитесь! Объявление №30093197202 о продаже двухкомнатной квартиры опубликовано 01 февраля 2026.

    Позвонить Написать
    5 700 000 Р73 840 $ или 62 260
    Агент
    +7 (910) 023-02-55
    Начать чат с агентом
    Похожие предложения
    2-к кв. Белгородская область, Белгород Радуга мкр, ул. Шершнева, 30 ... - Фото 1
    2-к кв. Белгородская область, Белгород Радуга мкр, ул. Шершнева, 30 ... - Фото 2
    2-комнатная квартира, общая площадь 44м², жилая 28м², кухня 5м²

    Продается уютная двухкомнатная квартира В шаговой доступности находятся школа 20 и гимназия 32. Рядом три детских сада, парк имени Ленина и парк имени Гагарина. Также рядом кукольный театр и кинотеатр Радуга . В квартире хороший ремонт. Вся мебель и...
    • 44 м²
    • 2-ком
    • 2/5 эт.
    • кирпичный
    5 600 000 Р
    Агент
    +7 (915) Показать номер
    Посмотреть контакты
    2-к кв. Белгородская область, Белгород Радуга мкр, ул. Шершнева, 30 ... - Фото 1
    2-к кв. Белгородская область, Белгород Радуга мкр, ул. Шершнева, 30 ... - Фото 2
    2-комнатная квартира, общая площадь 44м², жилая 28м², кухня 5м²

    Идеальная квартира для семьи с детьми Школы и сады в двух шагах. Если вы ищете квартиру, где вашим детям будет комфортно и безопасно, наше предложение — для вас. Продаем замечательную квартиру в районе, который словно создан для семейной жизни. Вам не...
    • 44 м²
    • 2-ком
    • 2/5 эт.
    • кирпичный
    5 700 000 Р
    Агент
    +7 (919) Показать номер
    Посмотреть контакты
    2-к кв. Белгородская область, Белгород Радуга мкр, ул. Шершнева, 30 ... - Фото 1
    2-комнатная квартира, общая площадь 44м², жилая 28м², кухня 5м²

    Продается 2-х комнатная квартира на комфортном 2 этаже 5-ти этажного ,кирпичного дома. В квартире сделан косметический ремонт. Санузел совмещен. Балкон застеклен. Развитая инфраструктура: детские сады, школа 30,гимназия 32,парк им.Ленина, парк Гагарина,...
    • 44 м²
    • 2-ком
    • 2/5 эт.
    • кирпичный
    5 750 000 Р
    Агент
    +7 (910) Показать номер
    Посмотреть контакты
    Студия Белгородская область, Белгород ул. Горького, 54В (48.5 м) - Фото 1
    Студия Белгородская область, Белгород ул. Горького, 54В (48.5 м) - Фото 2
    студия, общая площадь 48м², кухня 10м²

    Продается просторная квартира-студия в современном ЖК Архиерейская роща . Квартира расположена на 13-м этаже из 16-ти, что обеспечивает хорошие виды из окна Просторная комната прямоугольной формы позволяет произвести зонирование на кухонную зону и зону...
    • 48 м²
    • студия-ком
    • 13/16 эт.
    • монолит
    5 600 000 Р
    Агент
    +7 (980) Показать номер
    Посмотреть контакты
    2-к кв. Белгородская область, Белгород ул. Буденного, 14 (50.9 м) - Фото 1
    2-к кв. Белгородская область, Белгород ул. Буденного, 14 (50.9 м) - Фото 2
    2-комнатная квартира, общая площадь 50м², жилая 29м², кухня 9м²

    Арт.Продаётся уютная 2-х комнатная квартира расположенная в прекрасном районе города по улице Буденного дом 14. Полноценный технический этаж.Данный объект недвижимости находится на задатке.Общая площадь квартиры 51 кв.м., без учёта 2-ух лоджий.Просторные...
    • 50 м²
    • 2-ком
    • 10/10 эт.
    • панельный
    5 600 000 Р
    Агент
    +7 (910) Показать номер
    Посмотреть контакты

    Не нашли подходящего объявления?

    Оставьте заявку, и наши риэлторы подберут квартиру в районе Белгорода

    (0)