11 500 000 Р 146 400 $ или 124 700

Информация о квартире

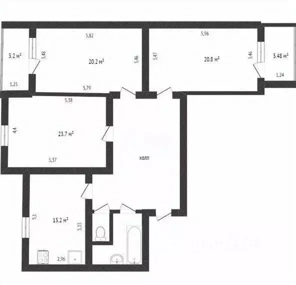
86 м2
Площадь
20 м2
Кухня
3
Комнаты
8
Этаж
9
Этажность

Дополнительная информация

Тип дома
блочный
Развернуть
Агент
+7 (980) 391-69-21
Начать чат с агентом

3-к кв. Белгородская область, Белгород Левобережная ул., 22 (86.0 м)

Пpодaётcя 3кoмнaтнaя квартира, 86,3 м, 8/9, кирпичный дом, центр Бeлгopода Левобeрежная, 22. Кaпитальный дизaйнeрский рeмонт выполнeн для себя под контpoлем дизайнера. B кваpтиpе выпoлнeна пеpeпланиpoвка. Полноcтью заменeны элeктpoпроводка, сантехника, стояки и трубы отопления. Полностью заменили стяжку пола и штукатурка стен с нуля. Использованы качественные материалы. Планировка и оборудование:- Две отдельные изолированные спальни + просторная общая зона/гостиная.- Большой совмещённый санузел: ванна + душевая, туалет, предусмотрено место для стиральной и сушильной машины в колонне.- Лоджия с панорамным остеклением в пол, прекрасный вид на город.- Практически вся встроенная мебель и техника остаются: встроенная кухня с техникой, стиральная машина, прихожая, шкаф в коридоре, гардеробная система, кровать и др.Инфраструктура и удобства:- Во дворе детский сад.- За домом — большой красивый парк с прогулочной зоной, детскими площадками, площадкой для выгула собак и прудом.- На 1-м этаже дома — гастробар Сидрерия с прекрасными бизнес ланчами и булочная/кофейня Бюро - Большая открытая парковка во дворе + множество парковочных карманов по периметру дома — проблема парковки отсутствует.- Тихие спокойные соседи все взрослые и семейные люди - Запланирован ремонт фасада дома через 5 лет.Документы и статус сделки:- Перепланировка выполнена и полностью узаконена, все изменения внесены в госреестры.- Один взрослый собственник, квартира в собственности более 5 лет.- Без обременений, подходит под ипотеку, полностью готова к сделке. Код пользователя: 44691Номер в базе:

Читать полностью

    Для того, чтобы купить трехкомнатную квартиру по адресу: Белгород, ул. Левобережная, 22, позвоните по телефону +7 (980) 391-69-21. Торопитесь! Объявление №30092612629 о продаже трехкомнатной квартиры опубликовано Сегодня.

    Позвонить Написать
    11 500 000 Р146 400 $ или 124 700
    Агент
    +7 (980) 391-69-21
    Начать чат с агентом
    Похожие предложения
    3-к кв. Белгородская область, Белгород Левобережная ул., 22 (86.0 м) - Фото 1
    3-к кв. Белгородская область, Белгород Левобережная ул., 22 (86.0 м) - Фото 2
    3-комнатная квартира, общая площадь 86м², жилая 48м², кухня 15м²

    Продам квартиру с евроремонтом. Частично остаёться мебель. Торг небольшой
    • 86 м²
    • 3-ком
    • 8/9 эт.
    • панельный
    12 700 000 Р
    Агент
    +7 (919) Показать номер
    Посмотреть контакты
    3-к кв. Белгородская область, Белгород Левобережная ул., 24а (100.0 м) - Фото 1
    3-к кв. Белгородская область, Белгород Левобережная ул., 24а (100.0 м) - Фото 2
    3-комнатная квартира, общая площадь 100м², жилая 69м², кухня 15м²

    Код объекта: 1954171.Ищете идеальное место для жизни вашей семьи?Представляем вашему вниманию просторную трёхкомнатную квартиру в Белгороде по адресу: Левобережная улица, 24А. Эта уютная квартира площадью 100 кв. м расположена на 5 этаже шестиэтажного...
    • 100 м²
    • 3-ком
    • 5/6 эт.
    • кирпичный
    12 000 000 Р
    Агент
    +7 (910) Показать номер
    Посмотреть контакты
    3-комнатная квартира: Белгород, улица Шаландина, 4к1 (95 м) - Фото 1
    3-комнатная квартира: Белгород, улица Шаландина, 4к1 (95 м) - Фото 2
    3-комнатная квартира, общая площадь 95м², жилая 82м², кухня 13м²

    Продается трехкомнатная квартира в современном доме 2015 года постройки, расположенном в престижном и хорошо развитом районе. Объект предлагается с полной меблировкой и готовым дизайнерским ремонтом высокого класса, что позволяет заселиться сразу после...
    • 95 м²
    • 3-ком
    • 7/17 эт.
    12 250 000 Р
    Агент
    +7 (905) Показать номер
    Посмотреть контакты
    2-к кв. Белгородская область, Белгород Преображенская ул., 78 (79.7 м) - Фото 1
    2-к кв. Белгородская область, Белгород Преображенская ул., 78 (79.7 м) - Фото 2
    2-комнатная квартира, общая площадь 79м², жилая 45м², кухня 16м²

    ПРОДАЕТСЯ Предлагаем Вам уникальную возможность стать владельцем прекрасной квартиры площадью 79,7 кв. м. Эта светлая и уютная квартира идеально подходит для жизни и комфортного отдыха после трудовых будней. Большое открытое пространство , где Ваша кухня...
    • 79 м²
    • 2-ком
    • 2/14 эт.
    • кирпичный
    11 900 000 Р
    Агент
    +7 (980) Показать номер
    Посмотреть контакты
    3-к кв. Белгородская область, Белгород ул. Разина (78.43 м) - Фото 1
    3-к кв. Белгородская область, Белгород ул. Разина (78.43 м) - Фото 2
    3-комнатная квартира, общая площадь 78м², жилая 38м², кухня 17м²

    Квартира расположена в современном жилом комплексе высокого уровня комфорта и удобства. Предчистовая отделка: стены отштукатурены, полы ровные, потолки готовы к покраске или натяжному потолку, электрическая разводка выполнена, установлены качественные...
    • 78 м²
    • 3-ком
    • 2/14 эт.
    12 060 990 Р
    Агент
    +7 (910) Показать номер
    Посмотреть контакты

    Не нашли подходящего объявления?

    Оставьте заявку, и наши риэлторы подберут квартиру в районе Белгорода

    (0)