5 500 000 Р 67 790 $ или 57 830

Информация о квартире

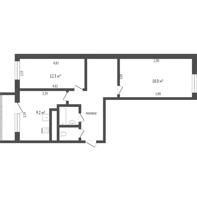
57 м2
Площадь
35 м2
Жилая
9 м2
Кухня
2
Комнаты
5
Этаж
6
Этажность

Дополнительная информация

Тип дома
блочный
Развернуть
Агент
+7 (980) 520-81-75
Начать чат с агентом

2-к кв. Белгородская область, Белгород Почтовая ул., 62 (57.0 м)

Продаётся уютная двухкомнатная квартира в спальном районе города на улице Почтовая. Этот жилой комплекс от застройщика ЖБК-1 является образцом качественного строительства. Особенностью этой квартиры является индивидуальное отопление, что обеспечивает комфорт и экономию на коммунальных платежах.Сделан качественный ремонт: пластиковые окна с зеркальным напылением, отлично защищают комнаты и кухню от нагревания солнечных лучей, на полу качественный ламинат, на стенах поклеены обои, везде натяжные потолки, дорогая качественная фурнитура, электрические выключатели и розетки фирмы schneidar Electric. Ванная и туалет раздельные, на кухне установлен качественный кухонный гарнитур со встроенной техникой: духовой шкаф, варочная поверхность, вытяжка, микроволновая печь. Также на кухне протянут дополнительный силовой кабель, установлено четыре автоматических выключателя.Планировка распашонка: комнаты расположены на противоположные стороны и между комнатами есть большая ниша, которую можно использовать как дополнительную комнату , на данный момент там встроен шкаф-купе. Кроме того, в подарок новому владельцу предоставляется кладовое помещение на цокольном этаже. Удобный тихий район, все необходимое есть рядом, включая магазины, школу, детский сад, остановки общественного транспорта. Прекрасная удобная парковка во дворе с достаточным количеством парковочных мест на всех жильцов. Управляющая компания ЖБК-1, обеспечивает качественное обслуживание и эксплуатацию жилого дома.Мы готовы помочь с одобрением ипотеки, а также предоставить полное юридическое сопровождение сделки. Работаем с жилищными сертификатами. Не упустите возможность стать счастливым обладателем этой замечательной квартиры Код пользователя: 81646Номер в базе: 7534890

Читать полностью

    Для того, чтобы купить двухкомнатную квартиру по адресу: Белгород, ул. Почтовая, 62, позвоните по телефону +7 (980) 520-81-75. Торопитесь! Объявление №30091716020 о продаже двухкомнатной квартиры опубликовано 15 ноября 2025.

    Позвонить Написать
    5 500 000 Р67 790 $ или 57 830
    Агент
    +7 (980) 520-81-75
    Начать чат с агентом
    Похожие предложения
    2-комнатная квартира: Белгород, Почтовая улица, 62 (57 м) - Фото 1
    2-комнатная квартира: Белгород, Почтовая улица, 62 (57 м) - Фото 2
    2-комнатная квартира, общая площадь 57м², жилая 35м², кухня 9м²

    Продаётся уютная двухкомнатная квартира в спальном районе города на улице Почтовая. Этот жилой комплекс от застройщика ЖБК-1 является образцом качественного строительства. Особенностью этой квартиры является индивидуальное отопление, что обеспечивает...
    • 57 м²
    • 2-ком
    • 5/6 эт.
    5 500 000 Р
    Агент
    +7 (903) Показать номер
    Посмотреть контакты
    2-к кв. Белгородская область, Белгород Почтовая ул., 52 (57.9 м) - Фото 1
    2-к кв. Белгородская область, Белгород Почтовая ул., 52 (57.9 м) - Фото 2
    2-комнатная квартира, общая площадь 57м², жилая 30м², кухня 9м²

    Привет, друзья Сегодня я расскажу вам о продаже квартиры, которая, честно говоря, выглядит так, будто её обустраивал дизайнер, который только что вышел из комы (ремонт от застройщика))) Итак, у нас есть уютная двухкомнатная квартира на седьмом этаже....
    • 57 м²
    • 2-ком
    • 7/9 эт.
    • кирпичный
    5 499 000 Р
    Агент
    +7 (952) Показать номер
    Посмотреть контакты
    2-к кв. Белгородская область, Белгород Почтовая ул., 52 (57.9 м) - Фото 1
    2-к кв. Белгородская область, Белгород Почтовая ул., 52 (57.9 м) - Фото 2
    2-комнатная квартира, общая площадь 57м², жилая 35м², кухня 10м²

    Продается 2х ком квартира по адресу: ул.Почтовая,52Квартира в кирпичном доме с хорошей планировкой: распашонка, большая кухня,индивид.отопление, окна ПВХ, лоджия, с/у разд, просторный коридор ( есть место под гардеробную).В шаговой доступности торговые...
    • 57 м²
    • 2-ком
    • 7/9 эт.
    • кирпичный
    5 500 000 Р
    Агент
    +7 (951) Показать номер
    Посмотреть контакты
    2-к кв. Белгородская область, Белгород Почтовая ул., 60 (55.5 м) - Фото 1
    2-к кв. Белгородская область, Белгород Почтовая ул., 60 (55.5 м) - Фото 2
    2-комнатная квартира, общая площадь 55м², жилая 28м², кухня 9м²

    Для Вас в районе Крейды, 2-к. квартира. Мебель, техника и кладовая остаются по договоренности с продавцом. Отделка: - Окна дерево/ПВХ; - Линолеум; - Высокие потолки; - Уютная кухня; - Металлическая дверь; Инфраструктура: - Благоустроенная территория;...
    • 55 м²
    • 2-ком
    • 3/5 эт.
    • кирпичный
    5 400 000 Р
    Агент
    +7 (910) Показать номер
    Посмотреть контакты
    2-к кв. Белгородская область, Белгород Почтовая ул., 52 (57.9 м) - Фото 1
    2-к кв. Белгородская область, Белгород Почтовая ул., 52 (57.9 м) - Фото 2
    2-комнатная квартира, общая площадь 57м², жилая 33м², кухня 9м²

    Код объекта: 1904352. Продается уютная двухкомнатная квартира на Почтовой улице, 52Квартира расположена на 7 этаже девятиэтажного кирпичного дома 2010 года постройки. Высота потолков 2,7 метра создаёт ощущение простора, а индивидуальный котёл позволяет...
    • 57 м²
    • 2-ком
    • 7/9 эт.
    • кирпичный
    5 500 000 Р
    Агент
    +7 (910) Показать номер
    Посмотреть контакты

    Не нашли подходящего объявления?

    Оставьте заявку, и наши риэлторы подберут квартиру в районе Белгорода

    (0)