3 999 999 Р 49 250 $ или 42 630

Информация о квартире

31 м2
Площадь
31 м2
Кухня
студия
Комнат
3
Этаж
5
Этажность

Дополнительная информация

Тип дома
блочный
Развернуть
Агент
+7 (980) 382-90-39
Начать чат с агентом

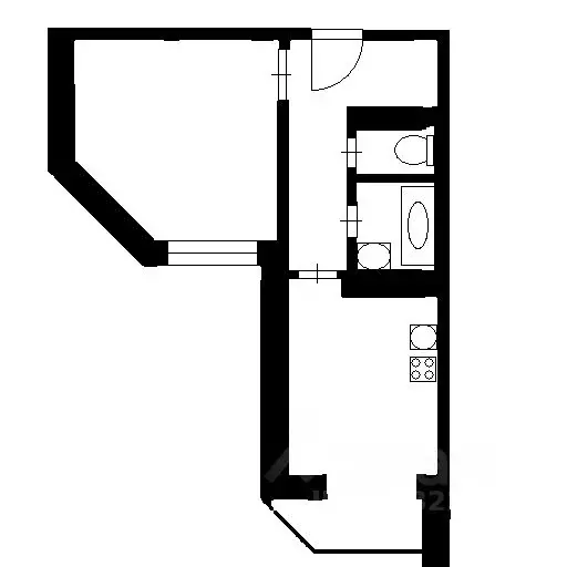
Студия Белгородская область, Белгород ул. Семейная, 13 (31.2 м)

В продаже прекрасная студия полностью готова к проживанию и предлагает комплексное решение для тех, кто ценит время и комфорт. Объект сдан с полной отделкой и укомплектован всей необходимой мебелью и техникой, включая плиту, вытяжку, стиральную машину и кондиционер, что позволяет заехать без дополнительных затрат и усилий. Важным преимуществом является расположение окон в тихий двор, что обеспечивает защиту от уличного шума и создает спокойную атмосферу. Энергоэффективность квартиры выражена в экономии на коммунальных платежах, которые составляют порядка, а благодаря удачной северо-западной ориентации и отсутствию прямого перегрева солнца в помещении сохраняется комфортный микроклимат даже в теплое время года. Свободная планировка без лишних перегородок визуально увеличивает пространство, делая его функциональным и практичным. Дополнительно в распоряжении собственника имеется изолированная кладовая площадью 3.9 м в подвале для организации хранения. Локация отличается развитой инфраструктурой: во дворе предусмотрена парковка, а в пешей доступности находятся остановка общественного транспорта, детский сад, школа, пункты выдачи заказов, салоны красоты и медицинские услуги. Это оптимальное предложение для тех кто ищет уютное жилье без необходимости его обустройства с нуля. Код пользователя: 190550Номер в базе:Этажи Чёрная пятница

Читать полностью

    Для того, чтобы купить студию по адресу: Белгород, ул. Семейная, 13, позвоните по телефону +7 (980) 382-90-39. Торопитесь! Объявление №30091472804 о продаже студии опубликовано 2 дня назад.

    Позвонить Написать
    3 999 999 Р49 250 $ или 42 630
    Агент
    +7 (980) 382-90-39
    Начать чат с агентом
    Похожие предложения
    Студия Белгородская область, Белгород ул. Семейная, 13 (31.2 м) - Фото 1
    Студия Белгородская область, Белгород ул. Семейная, 13 (31.2 м) - Фото 2
    студия, общая площадь 31м², жилая 17м², кухня 9м²

    ИДЕАЛЬНАЯ СТУДИЯ ДЛЯ КОМФОРТНОЙ ЖИЗНИ В РАЙОНЕ С РАЗВИТОЙ ИНФРАСТРУКТУРОЙ Адрес: мкр. Новая жизнь, ул. Семейная, 13 О квартире: Общая площадь 31,2 кв.м (жилая 17 кв.м) 3/5 этаж в блочном доме 2018 года постройки Полностью меблирована и оборудована - готовый...
    • 31 м²
    • студия-ком
    • 3/5 эт.
    3 900 000 Р
    Агент
    +7 (980) Показать номер
    Посмотреть контакты
    Студия Белгородская область, Белгород ул. Семейная, 13 (31.2 м) - Фото 1
    Студия Белгородская область, Белгород ул. Семейная, 13 (31.2 м) - Фото 2
    студия, общая площадь 31м², жилая 16м², кухня 9м²

    Код объекта: 1874710. Срочно продаём уютную студию в Белгороде — идеальный выбор для молодых специалистов и студентов Квартира расположена на третьем этаже пятиэтажного дома 2018 года постройки по адресу: Семейная улица, 13. Материал постройки — блочный,...
    • 31 м²
    • студия-ком
    • 3/5 эт.
    • блочный
    4 000 000 Р
    Агент
    +7 (910) Показать номер
    Посмотреть контакты
    1-комнатная квартира: Белгород, Сумская улица, 13 (34 м) - Фото 1
    1-комнатная квартира: Белгород, Сумская улица, 13 (34 м) - Фото 2
    1-комнатная квартира, общая площадь 34м², жилая 17м², кухня 9м²

    1 комн. квартира по ул. Славы проспект. Общей площадью: 34.00 кв.м. Продаётся однокомнатная квартира общая площадь 34 кв.м., кухня 9 кв.м.В квартире выполнен ремонт: окна ПВХ, на полу паркет и плитка, на стенах обои, полотки выровнены.С.у раздельный,...
    • 34 м²
    • 1-ком
    • 10/11 эт.
    3 900 000 Р
    Агент
    +7 (905) Показать номер
    Посмотреть контакты
    2-к кв. Белгородская область, Белгород ул. Мичурина, 58 (41.5 м) - Фото 1
    2-к кв. Белгородская область, Белгород ул. Мичурина, 58 (41.5 м) - Фото 2
    2-комнатная квартира, общая площадь 41м², жилая 28м², кухня 6м²

    Код объекта: 1834220. Срочно продаётся уютная двухкомнатная квартира в Белгороде Этот объект — идеальный выбор для тех, кто хочет не переплачивать за чужой ремонт и жить в центре города.Квартира расположена на третьем этаже пятиэтажного кирпичного дома...
    • 41 м²
    • 2-ком
    • 3/5 эт.
    • кирпичный
    3 900 000 Р
    Агент
    +7 (910) Показать номер
    Посмотреть контакты
    1-к кв. Белгородская область, Белгород пер. 1-й Мичуринский, 7 (44.6 ... - Фото 1
    1-к кв. Белгородская область, Белгород пер. 1-й Мичуринский, 7 (44.6 ... - Фото 2
    1-комнатная квартира, общая площадь 44м², жилая 27м², кухня 6м²

    Продается 2х ком квартира в центре города по адресу: 1й Мичуринский пер.,7Квартира в жилом состоянии, окна ПВХ, балкон остеклен металлическая рама, с/у разд. Хороший р-н, в шаговой доступности вся инфраструктура.
    • 44 м²
    • 1-ком
    • 4/5 эт.
    • панельный
    4 100 000 Р
    Агент
    +7 (910) Показать номер
    Посмотреть контакты

    Не нашли подходящего объявления?

    Оставьте заявку, и наши риэлторы подберут квартиру в районе Белгорода

    (0)