11 100 000 Р 141 400 $ или 120 900

Информация о квартире

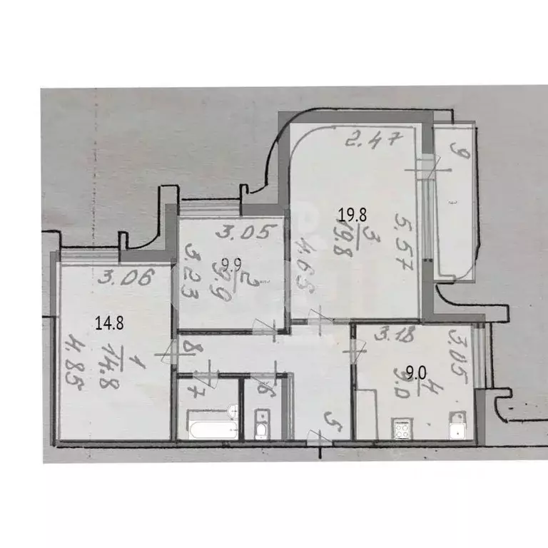
94 м2
Площадь
15 м2
Кухня
3
Комнаты
1
Этаж
17
Этажность

Дополнительная информация

Тип дома
кирпичный
Развернуть
Агент
+7 (910) 737-80-99
Начать чат с агентом

3-к кв. Белгородская область, Белгород ул. Костюкова, 36Г (94.3 м)

Продаётся уютная трёхкомнатная квартира — 94,3 м на первом этаже с высоким цоколем.Благодаря продуманной архитектуре окна расположены выше уровня земли, что обеспечивает отличную инсоляцию, естественное освещение в течение всего дня и полное ощущение приватности.Планировка — современная и функциональная:— Просторная кухня-гостиная объединена в единое светлое пространство, идеально подходящее как для семейных ужинов, так и для душевных встреч с друзьями.— Все три комнаты изолированы, гарантируя каждому члену семьи личное пространство и комфорт.— Две застеклённые лоджии (с выходом из гостиной и спальни) легко превращаются в дополнительную зону отдыха — будь то утренний кофе или вечернее чтение с видом на двор.Два санузла — особое преимущество для большой семьи или приёма гостей.Вся квартира оформлена в современном стиле: выполнен качественный ремонт с использованием проверенных, долговечных материалов. Встроенная мебель и бытовая техника остаются новым владельцам — можно заезжать и сразу начинать жить, без лишних хлопот и затрат.Юридическая чистота подтверждена: объект находится в собственности, обременений и долгов нет.Расположение — в тихом, зелёном спальном районе с развитой инфраструктурой:— Детские сады и школы — в шаговой доступности;— Остановка общественного транспорта — рядом, обеспечивая удобную связь со всем городом.Это предложение — редкое сочетание продуманного пространства, готовности к жизни под ключ и удачного местоположения.По всем вопросам — звоните Торг уместен. Код пользователя: 196598Номер в базе: 9993021

Читать полностью

    Для того, чтобы купить трехкомнатную квартиру по адресу: Белгород, ул. Костюкова, 36Г, позвоните по телефону +7 (910) 737-80-99. Торопитесь! Объявление №30090901502 о продаже трехкомнатной квартиры опубликовано Вчера.

    Позвонить Написать
    11 100 000 Р141 400 $ или 120 900
    Агент
    +7 (910) 737-80-99
    Начать чат с агентом
    Похожие предложения
    3-к кв. Белгородская область, Белгород ул. Костюкова, 36б (78.3 м) - Фото 1
    3-к кв. Белгородская область, Белгород ул. Костюкова, 36б (78.3 м) - Фото 2
    3-комнатная квартира, общая площадь 78м², кухня 12м²

    В элитном доме Белгорода в ЖК Владимирский продается дорогая трехкомнатная квартира с индивидуальной планировкой и дизайнерским ремонтом.Вся отделка в квартире выполнена из качественных материалов. На полу паркетная доска. Кухня изготовлена на заказ по...
    • 78 м²
    • 3-ком
    • 9/9 эт.
    • монолит
    10 900 000 Р
    Агент
    +7 (980) Показать номер
    Посмотреть контакты
    2-к кв. Белгородская область, Белгород ул. Костюкова, 11В (85.4 м) - Фото 1
    2-к кв. Белгородская область, Белгород ул. Костюкова, 11В (85.4 м) - Фото 2
    2-комнатная квартира, общая площадь 85м², жилая 35м², кухня 12м²

    В продаже видовая,светлая и уютная двухкомнатная квартира в современном доме бизнес-класса. Расположена на 9 этаже шестнадцатиэтажного монолитного дома. Дом 2015 года постройки. Есть наземный и подземным паркинги, два лифта: грузовой и пассажирский.Квартира...
    • 85 м²
    • 2-ком
    • 9/16 эт.
    • монолит
    10 500 000 Р
    Агент
    +7 (980) Показать номер
    Посмотреть контакты
    3-к кв. Белгородская область, Белгород ул. Губкина, 41 (60.4 м) - Фото 1
    3-к кв. Белгородская область, Белгород ул. Губкина, 41 (60.4 м) - Фото 2
    3-комнатная квартира, общая площадь 60м², жилая 40м², кухня 8м²

    Идеальная 3-комнатная квартира на Харьковской горе Губкина, д.41 — комфорт и удобство для всей семьи В продаже просторная трехкомнатная квартираВторой этаж в девятиэтажном панельном доме по адресу ул.Губкина,41.Год постройки 1990.общая площадь 60,4кв.м.Планировка:...
    • 60 м²
    • 3-ком
    • 2/9 эт.
    • панельный
    10 500 000 Р
    Агент
    +7 (910) Показать номер
    Посмотреть контакты
    3-к кв. Белгородская область, Белгород ул. Белгородского полка, 67 ... - Фото 1
    3-к кв. Белгородская область, Белгород ул. Белгородского полка, 67 ... - Фото 2
    3-комнатная квартира, общая площадь 92м², жилая 48м², кухня 14м²

    Код объекта: 1751691.Продаётся трёхкомнатная квартира в Белгороде на улице Белгородского Полка, 67 — идеальное решение для вашей семьи * Шикарное расположение в самом центре города* В квартире полностью сделан дорогостоящий ремонт* Остается все, кроме...
    • 92 м²
    • 3-ком
    • 10/16 эт.
    • кирпичный
    10 500 000 Р
    Агент
    +7 (910) Показать номер
    Посмотреть контакты
    2-к кв. Белгородская область, Белгород Гостенская ул., 12 (81.3 м) - Фото 1
    2-к кв. Белгородская область, Белгород Гостенская ул., 12 (81.3 м) - Фото 2
    2-комнатная квартира, общая площадь 81м², жилая 45м², кухня 12м²

    Продается видовая квартира в центре города. ЖК Гостенский Район нового корпуса БелГу. Дом кирпичный, качественный. Квартира общей площадью 91 квадратных метров ( 81 жилая + 10 метров лоджии). В квартире индивидуальное отопление. Что значительно экономит...
    • 81 м²
    • 2-ком
    • 6/16 эт.
    • кирпичный
    12 000 000 Р
    Агент
    +7 (919) Показать номер
    Посмотреть контакты

    Не нашли подходящего объявления?

    Оставьте заявку, и наши риэлторы подберут квартиру в районе Белгорода

    (0)