Реализация объекта недвижимости приостановлена

Информация о квартире

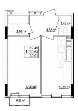
30.0 м2
Площадь
16.0 м2
Жилая
студия
Комнат
5
Этаж
8
Этажность
Развернуть

Квартира-студия: Белгород, ЖК Жемчужина (30.7 м)

Общая площадь квартиры — 30,7 кв.м, что делает её отличным вариантом как для первого собственного жилья, так и для инвестиций с целью сдачи в аренду.Эта квартира — удачное сочетание компактности, функциональности и уюта, с красивыми закатными видами из собственной лоджии.Грамотно продуманна жилая зона и зона кухни 21,2 кв.м — удобное пространство, где можно готовить, отдыхать и принимать гостей, не чувствуя ограничений по площади.Лоджия 3,8 кв.м с панорамным остеклением выходит на запад, открывая красивый вид на закат и создавая атмосферу уюта и спокойствия вечером.Вместительный коридор 3,5 кв.м позволяет разместить шкафы для хранения вещей, сохраняя порядок в квартире.Санузел 4,1 кв.м комфортно вмещает всё необходимое оборудование и обеспечивает удобство в повседневной жизни.

Читать полностью

    Реализация объекта недвижимости приостановлена

    Не нашли подходящего объявления?

    Оставьте заявку, и наши риэлторы подберут квартиру в новостройке в районе Белгорода

    (0)