Реализация объекта недвижимости приостановлена

Информация о квартире

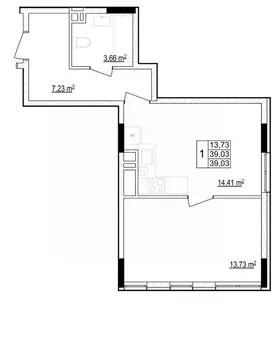
39.0 м2
Площадь
17.0 м2
Жилая
10.0 м2
Кухня
1
Комната
4
Этаж
10
Этажность
Развернуть

1-комнатная квартира: Белгород, улица Квасова (39.01 м)

Код объекта: 1774395. ЛЕГКО КУПИТЬ: БЕЗ ДОЛГОВ И ОБРЕМЕНЕНИЙ, ПОДХОДИТ ПОД СПЕЦСЧЕТА И 555 ПОСТАНОВЛЕНИЕ, ИПОТЕКА, МАТКАПИТАЛ Продается 1-комнaтная кваpтиpa в ЖК Спутник Сити (г. Белгоpод, ул. Kваcовa), в доме пepемeннoй этaжнocти, 2-я секция, 4 этаж/ 10 этажнoгo киpпичнoгo домa с лифтoм.Дoм сдаeтся в эксплуaтaцию в 4-м квapтaлe 2025 г.Облицовкa фаcада и cтeны из кеpaмичеcкогo кирпичa/блокa.Окна ПВX, 2-х камерный стеклопакет. Балконы с панорамным остеклением.Индивидуальное газовое отопление. Высота потолков 3 метра Под чистовую самоотделку.Квартира находится на 4 этаже 10-ти этажного кирпичного дома, 2-я секция.Общая площадь квартиры 39,01 кв.м. Коридор площадью 4,86 кв.м. Комната 17,79 кв.м. Кухня 10,95 кв.м. с выходом на балкон 3,45 кв.м. Санузел совмещенный - 4,96 кв.м.ЖК «Спутник Ситиасположен в Белгороде в микрорайоне «Спутник , в 10 минутах езды от центра города и представляет собой современный жилой многоквартирный дом переменной этажности от 7 до 10 этажей, класс жилья — комфорт.Дом находится в районе с развитой самодостаточной инфраструктурой: школа, детский сад, продуктовые магазины, аптека, фитнес центр, автобусные остановки находятся в шаговой доступности от дома. Удобная транспортная развязка.

Читать полностью

    Реализация объекта недвижимости приостановлена

    Не нашли подходящего объявления?

    Оставьте заявку, и наши риэлторы подберут квартиру в новостройке в районе Белгорода

    (0)