Реализация объекта недвижимости приостановлена

Информация о квартире

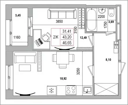
67.0 м2
Площадь
2
Комнаты
8
Этаж
9
Этажность
Развернуть

2-к кв. Белгородская область, Белгород ул. Квасова (67.11 м)

Продаётся 2-комнатная квартира в строящемся доме (Строение 1), срок сдачи: IV-кв. 2025, общей площадью 67.11 кв.м., на 8 этаже. ЖК Спутник-Ситиасположен в Белгороде в микрорайоне Спутник , в 10 минутах езды от центра города и представляет собой современный жилой многоквартирный дом переменной этажности от 7 до 9 этажей, класс жилья - комфорт. Предусмотренные коммерческие помещения, качественное благоустройство, детские площадки и выгодное месторасположение в полной мере обеспечат комфорт жителей жилого комплекса и их гостей. ЖК Спутник-Сити возводится в районе с самодостаточной развитой инфраструктурой: сразу несколько школ и детских садов находятся в пешей доступности от территории застройки. Супермаркеты, аптеки, магазины товаров народного потребления расположены в нескольких минутах ходьбы неспешным шагом. Благодаря недавнему открытию нового транспортного перехода от ул. Молодежной до ул. Есенина и бульв. Юности месторасположение ЖК приобрело еще бoльшую транспортную связанность и теперь позволяет добираться до крупных торговых центров СитиМолл , Леруа Мерлен , Галерея , МЕТРО за считанные минуты.

Читать полностью

    Реализация объекта недвижимости приостановлена

    Не нашли подходящего объявления?

    Оставьте заявку, и наши риэлторы подберут квартиру в новостройке в районе Белгорода

    (0)