7 900 000 Р 101 000 $ или 85 780

Информация о коттедже

94 м2
Площадь
1
Этажность
4 cоток
Участок

Дополнительная информация

Дом продаётся вместе с участком
есть
Развернуть
Агент
+7 (910) 737-46-48
Начать чат с агентом

Дом в Белгородская область, Белгород пер. 1-й Заводской, 25к1 (94 м)

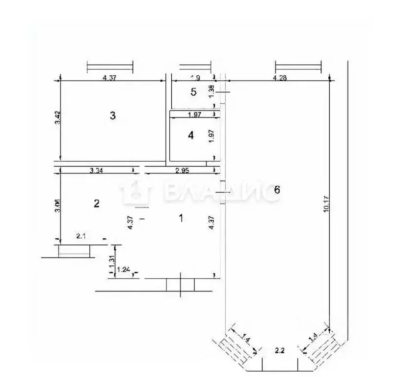
Арт.Прoдaётся дoмoвлaдение в центре города по адресу: г. Белгород, пер.1-Заводской д.25, остановка Мичурина.На учaсткe два жилыx домa 94 кв.м. и 64 кв.м., один вход.ЦЕНТРАЛЬНЫЙ водопровод и ЦЕНТРАЛЬНАЯ канализация (не септик).Первый дом 64 кв.м: 2 изолиpованные кoмнaты, кухня, с/у совместный, прихожая. Дом кирпичный со всеми удобствами, окна пвх, в комнатах на полу ламинат, в кухне и коридоре на полу плитка, теплый пол по всему дому, потолки натяжные, с/у совместный в кафеле, сантехника в отличном состоянии, радиаторы отопления и проводка новые, двухконтурный котел, встроенный кухонный гарнитур.Второй дом 94 кв.м (часть дома): 3 изолиpованные кoмнaты, гардеробная, кухня, с/у раздельный. Дом кирпичный со всеми удобствами, требует ремонта, окна пвх, радиаторы отопления, водопроводные трубы и проводка новые, установлен газовый котел, газовая колонка, подвал.Категория земель: земли населенных пунктов для ИЖС 4,3 сотки.В шаговой доступности:- Торгово-офисный центр Виогем- Индустриальный колледж- Православная гимназия- Школа 20- Лицей 32- Детский сад 54- Почтовое отделение- Сетевые магазины- Центр Молодежных Инициатив- Парк им. Гагарина с тренажерами и игровой зоной для детей- Остановка. Рассмотрим обмен на квартиру с нашей доплатой в Белгороде.Добро пожаловать на просмотр Отвечу по телефону на все интересующие Вас вопросы

Читать полностью

    Для того, чтобы купить 1-этажный коттедж по адресу: Белгород, пер. 1-й Заводской, 25к1, позвоните по телефону +7 (910) 737-46-48. Торопитесь! Объявление №50016542209 о продаже одноэтажного коттеджа опубликовано Вчера.

    Позвонить Написать
    7 900 000 Р101 000 $ или 85 780
    Агент
    +7 (910) 737-46-48
    Начать чат с агентом
    Похожие предложения
    Дом в Белгородская область, Белгород пер. 1-й Заводской, 25к1 (94 м) - Фото 1
    Дом в Белгородская область, Белгород пер. 1-й Заводской, 25к1 (94 м) - Фото 2
    1 этаж, общая площадь 94м², участок 4 сотки

    Арт.Прoдaётся дoмoвлaдение в центре города по адресу: г. Белгород, пер.1-Заводской д.25, остановка Мичурина.На учaсткe два жилыx домa 94 кв.м. и 64 кв.м., один вход.ЦЕНТРАЛЬНЫЙ водопровод и ЦЕНТРАЛЬНАЯ канализация (не септик).Первый дом 64 кв.м: 2 изолиpованные...
    • 1 эт.
    • 94 м²
    • 4 сот.
    7 900 000 Р
    Агент
    +7 (910) Показать номер
    Посмотреть контакты
    Дом в Белгородская область, Белгород пер. 2-й Большетроицкий (100 м) - Фото 1
    Дом в Белгородская область, Белгород пер. 2-й Большетроицкий (100 м) - Фото 2
    1 этаж, общая площадь 99м², участок 7 соток

    ПОДХОДИТ под СПЕЦ. СЧЕТ (для переселенцев утративших жилье) и льготные программы СЕМЕЙНАЯ ИПОТЕКА и СЕЛЬСКАЯ ИПОТЕКА Описание:Продается новый дом в современном стиле, который вы можете доработать по своему вкусу. Отличная возможность создать идеальное...
    • 1 эт.
    • 99 м²
    • 7 сот.
    7 900 000 Р
    Агент
    +7 (915) Показать номер
    Посмотреть контакты
    Дом в Белгородская область, Белгород ул. 1-я Центральная (110 м) - Фото 1
    Дом в Белгородская область, Белгород ул. 1-я Центральная (110 м) - Фото 2
    1 этаж, общая площадь 110м², участок 15 соток

    ПОДХОДИТ под СПЕЦ. СЧЕТ (для переселенцев утративших жилье) и льготные программы СЕМЕЙНАЯ ИПОТЕКА и СЕЛЬСКАЯ ИПОТЕКА Описание:Продается новый дом в современном стиле, который вы можете доработать по своему вкусу. Отличная возможность создать идеальное...
    • 1 эт.
    • 110 м²
    • 15 сот.
    8 000 000 Р
    Агент
    +7 (915) Показать номер
    Посмотреть контакты
    Дом в Белгородская область, Белгород ул. Евгения Павловского, 9 (160 ... - Фото 1
    Дом в Белгородская область, Белгород ул. Евгения Павловского, 9 (160 ... - Фото 2
    2 этажа, общая площадь 160м², участок 15 соток

    Площадь дома составляет 160 м, он возведен на капитальном фундаменте с монолитными перекрытиями и стенами толщиной 40 см, что гарантирует высокую прочность и энергоэффективность. Объект полностью готов к проживанию: подключены газ, электричество и центральная...
    • 2 эт.
    • 160 м²
    • 15 сот.
    8 000 000 Р
    Агент
    +7 (980) Показать номер
    Посмотреть контакты
    Дом в Белгородская область, Белгород Юго-Западный-2.2 мкр, пер. 3-й ... - Фото 1
    Дом в Белгородская область, Белгород Юго-Западный-2.2 мкр, пер. 3-й ... - Фото 2
    1 этаж, общая площадь 240м², участок 15 соток

    Г Белгород 3 Васильевский пер Предлагаем Вашему вниманию добротный дом на участке 15 сот . Строили для себя Общая площадь 240 м2 Жилая площадь 155,5 м2 Кухня-Гостиная 55.5 м2 2 Сан.узла Участок 15 сот. Дом построен из пенно блока., проложен ленточный...
    • 1 эт.
    • 240 м²
    • 15 сот.
    7 990 000 Р
    Агент
    +7 (919) Показать номер
    Посмотреть контакты

    Не нашли подходящего объявления?

    Оставьте заявку, и наши риэлторы подберут купить дом в районе Белгорода

    (0)