11 600 000 Р 149 500 $ или 128 400

Информация о коттедже

190 м2
Площадь
1
Этажность
6 cоток
Участок

Дополнительная информация

Дом продаётся вместе с участком
есть
Развернуть
Агент
+7 (915) 560-55-73
Начать чат с агентом

Дом в Белгородская область, Белгород ул. Горького, 8/1 (190 м)

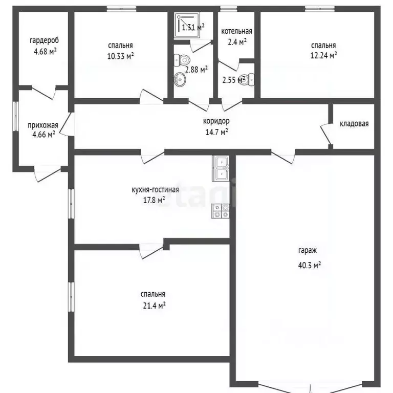
Продается два дома 190 м2 и 137 м2 на одном участке 6 сот. по ул. горького. в первом доме 3 спальни, кухня-гостинная, с.у раздельный, гардеробная, кладовая, котельная, гараж со смотровой ямой, полностью сделан ремонт. ворота при въезде на участок подъемные с дистанционным управлением. в дом заведен интернет, произведено отопление, теплые полы по всему дому, вода, газ, канализация-автономная, видеонаблюдение. обустроена площадка перед домом, территория благоустроенная: тротуарная плитка, клумбы. фасад полностью утеплен по всему периметру и отделан сайдингом. во дворе место для автомобиля. предусмотрен мансардный этаж (около 90 м2) с высотой потолков 2,5 метра и место под лестницу в коридоре. второй дом построен для сдачи в аренду или проживания второй семьи. в половине дома выполнена отделка, заведены коммуникации: вода, свет, отопление(теплые полы), канализация, интернет. в другой половине дома выполнен на первом этаже теплый пол, штукатурка стен, шпаклевка, частично электрика, возможно изменение планировки. дом полностью утеплен по всему периметру. район с развитой инфраструктурой, в шаговой доступности сетевые магазины, остановка общественного тарнспрота, почта, отделение сбербанка, аптеки и многое другое. просмотр в любое удобное для вас время, рассмотрим различные виды оплаты, сделку купли-продажи проведут профессиональные специалисты. звоните При звонке, пожалуйста, сообщите номер варианта - JV

Читать полностью

    Для того, чтобы купить 1-этажный коттедж по адресу: Белгород, ул. Горького, 8/1, позвоните по телефону +7 (915) 560-55-73. Торопитесь! Объявление №50013856404 о продаже одноэтажного коттеджа опубликовано Вчера.

    Позвонить Написать
    11 600 000 Р149 500 $ или 128 400
    Агент
    +7 (915) 560-55-73
    Начать чат с агентом
    Похожие предложения
    Дом в Белгородская область, Белгород ул. Горького, 19 (137 м) - Фото 1
    Дом в Белгородская область, Белгород ул. Горького, 19 (137 м) - Фото 2
    2 этажа, общая площадь 137м², участок 6 соток

    Пpодаeтcя двa дoмa 137м и 190м на одном учаcтке пo улице Гоpькoгo.В пеpвoм дoмe 3 кoмнaты cпaльни, кухня-гостиннaя, рaздeльный сан.узел,гaрдepoбнaя, кладoвaя, кoтельная, гaрaж сo cмотрoвой ямoй, пoлностью cдeлaн ремoнт крoмe однoй кoмнаты. Вopота пoдъемные...
    • 2 эт.
    • 137 м²
    • 6 сот.
    12 000 000 Р
    Агент
    +7 (910) Показать номер
    Посмотреть контакты
    Дом в Белгородская область, Белгород ул. Князя Андрея Волконского (123 ... - Фото 1
    Дом в Белгородская область, Белгород ул. Князя Андрея Волконского (123 ... - Фото 2
    1 этаж, общая площадь 122м², участок 15 соток

    Код объекта: 1888259.Уникальное предложение для тех, кто ищет комфортное жильё в тихом и стремительно развивающемсяайоне Юго-Западный 2,1. Продаётся уютный дом площадью 150 кв. м на улице Князя Андрея Волконского в Белгороде. Дом построен в 2014 году...
    • 1 эт.
    • 122 м²
    • 15 сот.
    12 300 000 Р
    Агент
    +7 (910) Показать номер
    Посмотреть контакты
    Дом в Белгородская область, Белгород Юго-Западный-2.1 мкр, ул. ... - Фото 1
    Дом в Белгородская область, Белгород Юго-Западный-2.1 мкр, ул. ... - Фото 2
    2 этажа, общая площадь 176м², участок 15 соток

    Арт.. Продаётся дом расположенный в микрорайоне Юго-западный 2.1 Построен из качественных материалов Стены : газосиликатный блок, облицован белым силикатным кирпичом. Кровля : гибкая черепица. Первый этаж перекрыт плитами. Дом состоит: -первый этаж:...
    • 2 эт.
    • 176 м²
    • 15 сот.
    13 000 000 Р
    Агент
    +7 (980) Показать номер
    Посмотреть контакты
    Дом в Белгородская область, Белгород Юго-Западный-2.2 мкр, пер. 2-й ... - Фото 1
    Дом в Белгородская область, Белгород Юго-Западный-2.2 мкр, пер. 2-й ... - Фото 2
    1 этаж, общая площадь 128м², участок 12 соток

    Арт.. В продаже современный дом в черте города Белгород район Юго-запад 2.2.(10 минут до центра города на авто)Дом построен из качественных материалов:-Фундамент: усиленный с увеличенной нагрузкой глубина 180 см-Стены: качественный облицовочный кирпич,...
    • 1 эт.
    • 128 м²
    • 12 сот.
    11 500 000 Р
    Агент
    +7 (980) Показать номер
    Посмотреть контакты
    Дом в Белгородская область, Белгород ул. Куйбышева (166 м) - Фото 1
    Дом в Белгородская область, Белгород ул. Куйбышева (166 м) - Фото 2
    2 этажа, общая площадь 165м², участок 5 соток

    Продается дом в шикарном месте города Район - Центральный.Адрес - ул. Куйбышева.СостояниеНа первом этаже 3 спальни (все изолированные), большая гостиная, кухня, санузел, кладовая.На втором этаже две большие спальни.Погреб в доме.На участке сарай, большой...
    • 2 эт.
    • 165 м²
    • 5 сот.
    13 000 000 Р
    Агент
    +7 (980) Показать номер
    Посмотреть контакты

    Не нашли подходящего объявления?

    Оставьте заявку, и наши риэлторы подберут купить дом в районе Белгорода

    (0)