1 050 000 Р 13 170 $ или 11 220

Информация об комнате

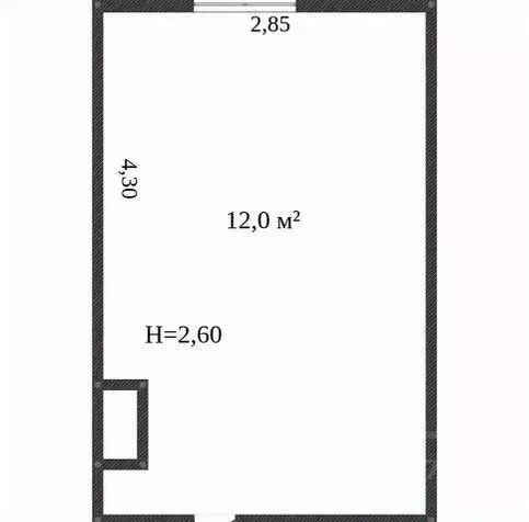
12 м2
Комната
1
Этаж
9
Этажность

Состояние и оснащение

Лифт
есть

Дополнительная информация

Количество комнат
2
Количество продаваемых комнат
1
Лифт
Развернуть
Агент
+7 (905) 879-96-87
Начать чат с агентом

1к в -комнатной квартире (12 м)

Код объекта: 1967396.Срочно продаётся комната в общежитии в Белгороде по адресу улица Горького, 63.Это отличная возможность для тех, кто ищет доступное жильё в развитом районе города.Комната расположена на первом этаже девятиэтажного кирпичного дома, построенного в 1977 году.Общая площадь составляет 12 квадратных метров.Окна выходят на улицу.Комната угловая, что может быть важно при выборе жилья.Дом имеет центральное отопление, что гарантирует комфорт в холодное время года.Расположение комнаты в общежитии позволяет быстро добраться до основных транспортных узлов и ключевых точек города.Мы гарантируем безопасную сделку и юридическую поддержку нашим клиентам.Поможем одобрить ипотеку с сниженной ставкой.Не упустите шанс стать собственником этой комнаты Звоните нам прямо сейчас, чтобы узнать больше и договориться о просмотре.

Читать полностью
    Позвонить Написать
    1 050 000 Р13 170 $ или 11 220
    Агент
    +7 (905) 879-96-87
    Начать чат с агентом
    Похожие предложения в Белгороде
    Комната Белгородская область, Белгород ул. Горького, 63 (12.0 м) - Фото 1
    Комната Белгородская область, Белгород ул. Горького, 63 (12.0 м) - Фото 2
    Продается комната 12 кв.м в квартире общежития на 3/9 этаже — готовое решение для самостоятельной жизни с перспективой роста. О комнате:Площадь 12 м, расположена на 3 этаже девятиэтажного кирпичного дома. В комнате светлое пластиковое окно с видом во...
    • 1 ком.
    • 3/9 эт.
    • 12 м²
    1 100 000 Р
    Агент
    +7 (980) Показать номер
    Посмотреть контакты
    Комната Белгородская область, Белгород ул. Горького, 63 (12.0 м) - Фото 1
    Комната Белгородская область, Белгород ул. Горького, 63 (12.0 м) - Фото 2
    Код объекта: 1967396.Срочно продаётся комната в общежитии в Белгороде по адресу улица Горького, 63.Это отличная возможность для тех, кто ищет доступное жильё в развитом районе города.Комната расположена на первом этаже девятиэтажного кирпичного дома,...
    • 1 ком.
    • 1/9 эт.
    • 12 м²
    1 050 000 Р
    Агент
    +7 (910) Показать номер
    Посмотреть контакты
    Комната Белгородская область, Белгород ул. Горького, 63 (12.0 м) - Фото 1
    Комната Белгородская область, Белгород ул. Горького, 63 (12.0 м) - Фото 2
    Продается чудесная комната, по адресу Горького 63, на комфортном 3 этаже в комнате сделан косметический ремонт ,пластиковое окно, мебель и техника остаются по договоренности.Чистая секция, с хорошими соседями.Парковка находится во дворе. Хорошо развита...
    • 1 ком.
    • 3/9 эт.
    • 12 м²
    1 050 000 Р
    Агент
    +7 (910) Показать номер
    Посмотреть контакты
    Комната Белгородская область, Белгород ул. Горького, 63 (12.5 м) - Фото 1
    Комната Белгородская область, Белгород ул. Горького, 63 (12.5 м) - Фото 2
    Продаётся уютная комната в общежитии Санузел на 2 комнаты, секция на 4.Вся инфраструктура в шаговой доступности Все вопросы по телефону
    • 1 ком.
    • 3/9 эт.
    • 12.5 м²
    1 090 000 Р
    Агент
    +7 (915) Показать номер
    Посмотреть контакты
    Комната Белгородская область, Белгород ул. Горького, 63 (11.9 м) - Фото 1
    Комната Белгородская область, Белгород ул. Горького, 63 (11.9 м) - Фото 2
    Продаётся комната в общежитии в самом сердце харьковской горы. Комната тплая, косметический ремонт. Секционного типа, секция на 4 комнаты, сама комната изолирована от остальных, с/у на четыре комнаты. Рядом находятся: пятёрочка, магнит, пиццерия Потапыч...
    • 1 ком.
    • 2/9 эт.
    • 11.9 м²
    1 050 000 Р
    Агент
    +7 (910) Показать номер
    Посмотреть контакты

    Не нашли подходящего объявления?

    Оставьте заявку, и наши риэлторы подберут комнату в районе Белгорода

    (0)